Land to the side of No 80, Wigan lower Road, Standish Lower Ground, WN6
By Thomas James Sales and Lettings
£ 125,000
Reviews
2 out of 5 stars
Thomas James Sales and Lettings says ..
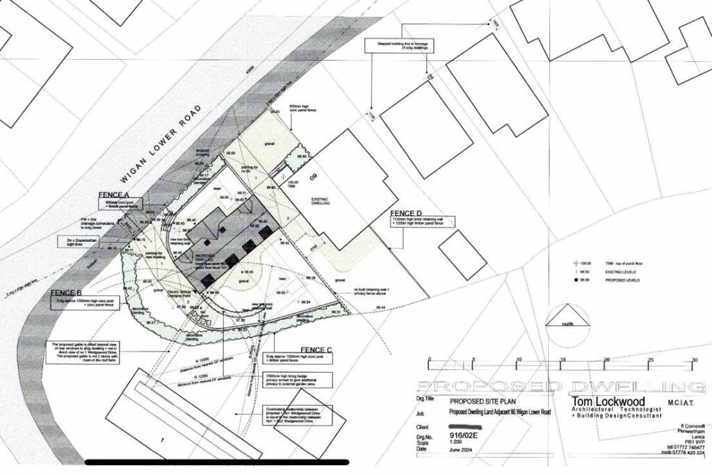
Building Plot with Planning Permission – Wigan Lower Road, Standish Lower Ground An excellent opportunity to purchase a prime plot of land with planning permission granted for a stylish three-bedroom detached home, perfectly situated on Wigan Lower Road in the desirable area of Standish Lower ...
Property Oracle says ..
This is a plot of land that requires full construction. It is located in a suburban area with nearby schools and amenities. The asking price reflects the condition and allows for construction costs.
Therefore, we give this property 5 / 10. *Disclaimer: This is our option and does constitute a recommendation or financial advice. Do your own research. *
- Price
- 7
- Condition
- 1
- Location
- 6
- Land
- 7
- Bedrooms
- 0
- Bathrooms
- 0
The heatmap indicates the level of crime in the area. The color of the heatmap indicates the crime severity and recency.
Metrics Year-on-Year
- Average area value
- 270,000.00 £Increased by 5.95 %
- Average area rental value
- 1,038.00 £/moDecreased by 7.73 %
- Est rental Yield
- 4.61 %Decreased by 13.02 %
- Crime Rate
- 0.00 %
Agent Activity
Thomas James Sales and Lettings created the listing.
Nearby Schools
| Name | Type | Ofsted | Distance |
|---|---|---|---|
| Standish Lower Ground St Anne'S Cofe Primary School | Voluntary Aided School | Good | 0.35 KM |
| Marsh Green Primary School | Community School | Good | 1.41 KM |
| St John Fisher Catholic High School | Voluntary Aided School | Good | 1.91 KM |
| Sacred Heart Catholic Primary School | Voluntary Aided School | Good | 2.03 KM |
| Millbrook Primary School | Community School | Good | 2.07 KM |
Images
Nearby Streets
| Name | Average Price | Average Sqft | Distance |
|---|---|---|---|
| Wedgewood Drive | £ 202,500 | 0 | 0.00 KM |
| Woodrush Road | £ 0 | 0 | 0.00 KM |
| Coronation Road | £ 169,950 | 0 | 0.00 KM |
| Princess Road | £ 200,000 | 0 | 0.00 KM |
| Martland Mill Lane | £ 0 | 0 | 0.00 KM |
Nearby Transport
| Name | NLC | TLC | Distance |
|---|---|---|---|
| Gathurst | 2397 | GST | 2.78 KM |
| Pemberton | 2403 | PEM | 3.42 KM |
| Wigan Wallgate | 2406 | WGW | 4.39 KM |
| Wigan North Western | 2363 | WGN | 4.44 KM |
| Orrell | 2259 | ORR | 5.55 KM |
Nearby Listings
| Address | Price | Type | Score | Distance |
|---|---|---|---|---|
| Land to the side of No 80, Wigan lower Road, Standish Lower Ground, WN6 | £ 125,000 | BUY | 5 / 10 | 0.00 KM |
| Wigan Lower Road, Standish Lower Ground, Wigan | £ 130,000 | BUY | 6 / 10 | 0.07 KM |
| Woodrush Road, Standish Lower Ground, WN6 | £ 350,000 | BUY | 6 / 10 | 0.13 KM |
| Wigan Lower Road, Standish Lower Ground, Wigan, WN6 8LD | £ 110,000 | BUY | 6 / 10 | 0.14 KM |
| Weston Park, Standish Lower Ground, WN6 | £ 270,000 | BUY | 7 / 10 | 0.15 KM |
Nearby Properties
| Address | Price | Distance |
|---|---|---|
| 18 Wedgewood Drive | £ 54,000 | 0.06 KM |
| 16 Wedgewood Drive | £ 120,000 | 0.06 KM |
| 197 Wigan Lower Road | £ 79,995 | 0.12 KM |
| 125 Wigan Lower Road | £ 155,000 | 0.12 KM |
| 201 Wigan Lower Road | £ 84,000 | 0.12 KM |