Links Estate Agents says ..
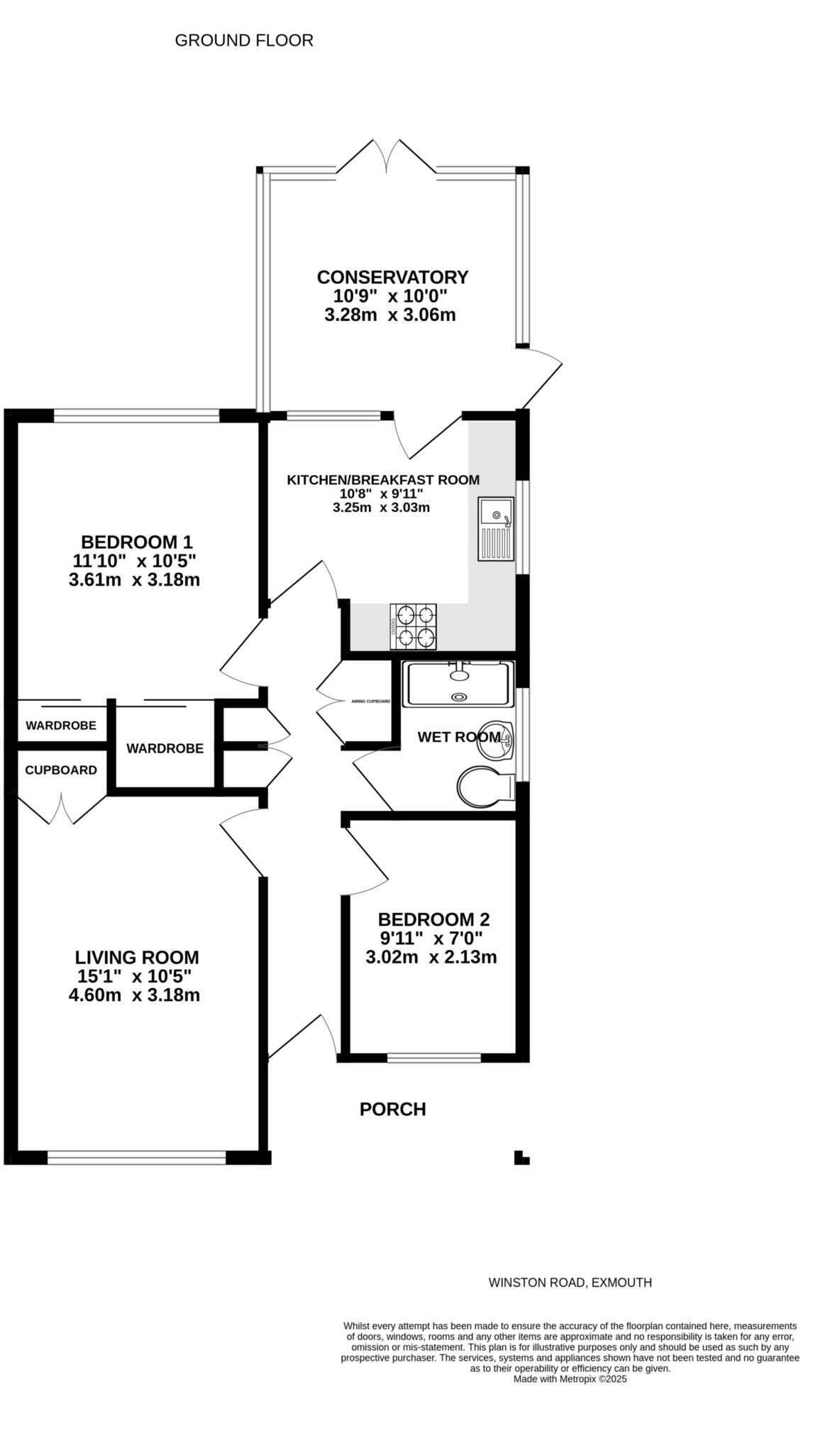
Offered for sale with NO ONWARD CHAIN and situated in a popular residential location that is handy for bus stops and Brixington shops is this 2 bedroom semi detached bungalow with a driveway and level gardens.
Property Oracle says ..
This is a semi-detached bungalow in Exmouth, Devon, listed by Links Estate Agents. The property features two bedrooms and one bathroom. While the square footage isn’t provided, it appears to be a standard size for this type of property. The bungalow includes a conservatory and a garden with a shed. The interior condition suggests that some modernisation would be beneficial, particularly in the kitchen and living areas. The location is convenient, with schools and amenities nearby. The asking price of £284,950 seems fair considering the location, condition, and local market data.
Therefore, we give this property 6 / 10. *Disclaimer: This is our option and does constitute a recommendation or financial advice. Do your own research. *
- Price
- 7
- Condition
- 5
- Location
- 7
- Land
- 7
- Bedrooms
- 2
- Bathrooms
- 1
The heatmap indicates the level of crime in the area. The color of the heatmap indicates the crime severity and recency.
Metrics Year-on-Year
- Average area value
- 412,759.00 £Increased by 3.22 %
- Average area rental value
- 1,432.00 £/moDecreased by 13.89 %
- Est rental Yield
- 4.16 %Decreased by 16.63 %
- Crime Rate
- 2.00 %Unchanged by 0.00 %
Agent Activity
Links Estate Agents created the listing.
Nearby Schools
| Name | Type | Ofsted | Distance |
|---|---|---|---|
| Bassetts Farm Primary School | Foundation School | Good | 0.50 KM |
| Brixington Primary Academy | Academy Sponsor Led | Requires improvement | 1.01 KM |
| Marpool Primary School | Foundation School | Good | 1.50 KM |
| Exmouth & District Children'S Centre | Children's Centre | 1.68 KM | |
| Withycombe Raleigh Church Of England Primary School | Voluntary Controlled School | Good | 1.80 KM |
Images
Nearby Streets
| Name | Average Price | Average Sqft | Distance |
|---|---|---|---|
| Spencer Close | £ 485,000 | 0 | 0.00 KM |
| Martins Road | £ 220,000 | 0 | 0.00 KM |
| Copse | £ 0 | 0 | 0.00 KM |
| Somerville Close | £ 0 | 0 | 0.00 KM |
| Shirley Close | £ 470,000 | 0 | 0.00 KM |
Nearby Transport
| Name | NLC | TLC | Distance |
|---|---|---|---|
| Exmouth | 5756 | EXM | 3.80 KM |
| Lympstone Village | 5761 | LYM | 5.20 KM |
| Lympstone Commando | 5762 | LYC | 6.71 KM |
| Starcross | 3413 | SCS | 7.03 KM |
| Exton | 5760 | EXN | 7.32 KM |
Nearby Listings
| Address | Price | Type | Score | Distance |
|---|---|---|---|---|
| Winston Road, Exmouth | £ 284,950 | BUY | 6 / 10 | 0.00 KM |
| Parkside Drive, Exmouth | £ 375,000 | BUY | 6 / 10 | 0.12 KM |
| PARKSIDE DRIVE, Exmouth, eX8 4LX | £ 380,000 | BUY | 6 / 10 | 0.12 KM |
| Martins Road, Exmouth | £ 290,000 | BUY | 6 / 10 | 0.15 KM |
| Martins Road, Exmouth, EX8 4LN | £ 275,000 | BUY | 7 / 10 | 0.15 KM |
Nearby Properties
| Address | Price | Distance |
|---|---|---|
| 6 Marlborough Close | £ 280,000 | 0.10 KM |
| 11 Marlborough Close | £ 215,650 | 0.10 KM |
| 1 Marlborough Close | £ 255,000 | 0.10 KM |
| 5 Marlborough Close | £ 179,000 | 0.10 KM |
| 4 Marlborough Close | £ 204,000 | 0.10 KM |