Chesham, Plot 5, St Marks Pavilion, Woodley, Stockport, Greater Manchester, SK6
By LSL Land & New Homes
£ 709,995
Reviews
3 out of 5 stars
LSL Land & New Homes says ..
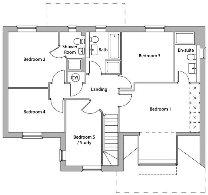
5 Bedroom Detached Home With Integral Double Garage
Property Oracle says ..
This is a modern, detached property located in Woodley, Stockport. It features 5 bedrooms, a well-maintained garden, and a garage. The property is situated in a convenient location with access to nearby schools and transportation. While the list price is higher than the average for the area, it is comparable to other new build detached properties in the vicinity. The property appears to be in excellent condition, making it a desirable option for potential buyers. The property is located close to Hyde Road, Springbank Close, and Savernake Road.
Therefore, we give this property 7 / 10. *Disclaimer: This is our option and does constitute a recommendation or financial advice. Do your own research. *
- Price
- 6
- Condition
- 9
- Location
- 7
- Land
- 7
- Bedrooms
- 5
- Bathrooms
- 0
- Sqft (est)
- 880.00
The heatmap indicates the level of crime in the area. The color of the heatmap indicates the crime severity and recency.
Metrics Year-on-Year
- Average area value
- 328,322.00 £Increased by 13.45 %
- Est sale value
- 253,440.00 £Increased by 2.86 %
- Average area rental value
- 5,891.00 £/moIncreased by 438.98 %
- Est letting value
- 4,400.00 £/moIncreased by 400.00 %
- Est rental Yield
- 21.53 %Increased by 375.28 %
- Crime Rate
- 0.00 %
Agent Activity
LSL Land & New Homes created the listing.
Nearby Schools
| Name | Type | Ofsted | Distance |
|---|---|---|---|
| Greave Primary School | Community School | Good | 0.40 KM |
| Woodley Primary School | Community School | Good | 0.68 KM |
| Romiley Primary School | Community School | Good | 1.33 KM |
| Dowson Primary Academy | Academy Converter | Good | 1.89 KM |
| St John Fisher Rc Primary School, Denton | Voluntary Aided School | Requires improvement | 2.17 KM |
Images
Nearby Streets
| Name | Average Price | Average Sqft | Distance |
|---|---|---|---|
| Hyde Road | £ 430,000 | 0 | 0.00 KM |
| Springbank Close | £ 0 | 0 | 0.00 KM |
| Savernake Road | £ 250,000 | 0 | 0.00 KM |
| Rushton Drive | £ 0 | 0 | 0.00 KM |
| Hilda Road | £ 0 | 0 | 0.00 KM |
Nearby Transport
| Name | NLC | TLC | Distance |
|---|---|---|---|
| Woodley | 2835 | WLY | 0.97 KM |
| Romiley | 2833 | RML | 1.54 KM |
| Hyde Central | 2829 | HYC | 2.76 KM |
| Bredbury | 2779 | BDY | 2.88 KM |
| Rose Hill Marple | 2873 | RSH | 3.55 KM |
Nearby Listings
| Address | Price | Type | Score | Distance |
|---|---|---|---|---|
| Chesham, Plot 5, St Marks Pavilion, Woodley, Stockport, Greater Manchester, SK6 | £ 709,995 | BUY | 7 / 10 | 0.00 KM |
| Woodhall, Plot 8, St Marks Pavilion, Woodley, Stockport, Greater Manchester, SK6 | £ 564,995 | BUY | 7 / 10 | 0.01 KM |
| Bunbury, Plot 2, St Marks Pavilion, Woodley, Stockport, Greater Manchester, SK6 | £ 524,995 | BUY | 7 / 10 | 0.01 KM |
| Palmerston, Plot 9, St Marks Pavilion, Woodley, Stockport, Greater Manchester, SK6 | £ 484,995 | BUY | 6 / 10 | 0.01 KM |
| Hillside Road, Woodley | £ 400,000 | BUY | 7 / 10 | 0.01 KM |
Nearby Properties
| Address | Price | Distance |
|---|---|---|
| 10 Hillside Road | £ 230,000 | 0.05 KM |
| 8 Hillside Road | £ 232,500 | 0.05 KM |
| 11 Hillside Road | £ 560,000 | 0.05 KM |
| 2 Hillside Road | £ 230,000 | 0.05 KM |
| 5 Hillside Road | £ 180,000 | 0.05 KM |