Fidler Taylor says ..
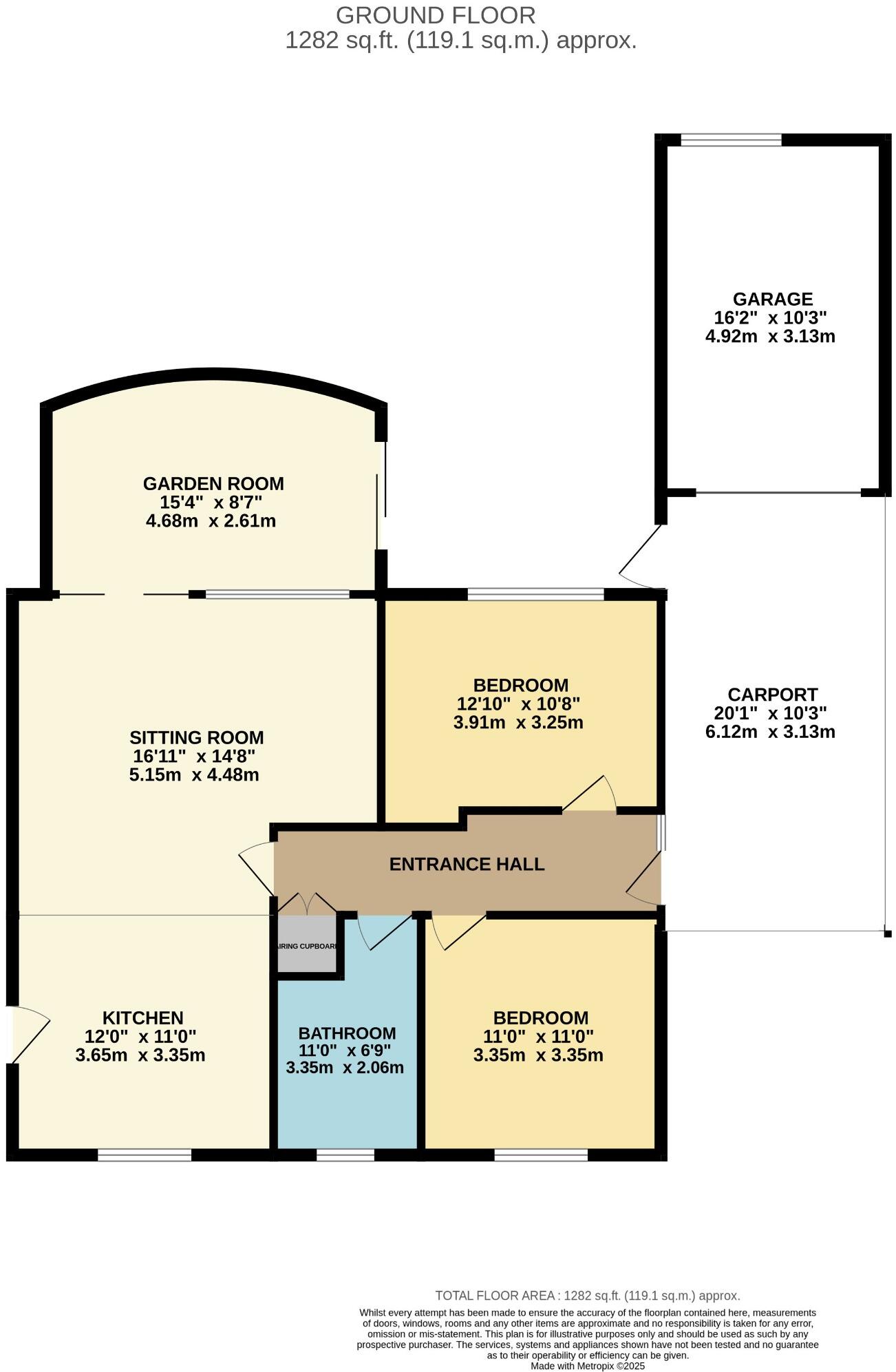
A well proportioned detached bungalow providing extended two bedroom recently upgraded and modernised accommodation and standing to a good sized garden plot, within this highly sought after residential location.
Property Oracle says ..
Therefore, we give this property 7 / 10. *Disclaimer: This is our option and does constitute a recommendation or financial advice. Do your own research. *
- Price
- 6
- Condition
- 8
- Location
- 7
- Land
- 7
- Bedrooms
- 2
- Bathrooms
- 1
- Sqft (est)
- 1,101.09
The heatmap indicates the level of crime in the area. The color of the heatmap indicates the crime severity and recency.
Metrics Year-on-Year
- Average area value
- 330,000.00 £Decreased by 13.09 %
- Est sale value
- 345,742.26 £Decreased by 3.09 %
- Average area rental value
- 1,750.00 £/moIncreased by 65.88 %
- Est letting value
- 1,101.09 £/mo
- Est rental Yield
- 6.36 %Increased by 90.99 %
- Crime Rate
- 17.00 %Unchanged by 0.00 %
from 379,715.00 £
from 356,753.16 £
from 1,055.00 £/mo
from 0.00 £/mo
from 3.33 %
from 17.00 %
Agent Activity
Fidler Taylor created the listing.
Nearby Schools
| Name | Type | Ofsted | Distance |
|---|---|---|---|
| Darley Dale Primary School | Community School | Good | 1.27 KM |
| Darley Churchtown Church Of England Primary School | Academy Converter | Good | 1.35 KM |
| South Darley Cofe Primary School | Voluntary Controlled School | Good | 1.99 KM |
| All Saints Cofe Junior School | Academy Converter | Good | 3.61 KM |
| Rowsley Cofe (Controlled) Primary School | Voluntary Controlled School | Good | 3.90 KM |
Images
Nearby Streets
| Name | Average Price | Average Sqft | Distance |
|---|---|---|---|
| Peveril Close | £ 410,000 | 0 | 0.00 KM |
| Darley Avenue | £ 182,500 | 0 | 0.00 KM |
| Weavers Road | £ 0 | 0 | 0.00 KM |
| Carraige Drive | £ 0 | 0 | 0.00 KM |
| Hardy Close | £ 0 | 0 | 0.00 KM |
Nearby Transport
| Name | NLC | TLC | Distance |
|---|---|---|---|
| Matlock | 1581 | MAT | 4.59 KM |
| Matlock Bath | 1582 | MTB | 6.04 KM |
| Cromford | 1822 | CMF | 7.38 KM |
Nearby Listings
| Address | Price | Type | Score | Distance |
|---|---|---|---|---|
| The Parkway, Matlock, Derbyshire, DE4 | £ 325,000 | BUY | 6 / 10 | 0.00 KM |
| The Parkway, Darley Dale, DE4 | £ 385,000 | BUY | 7 / 10 | 0.00 KM |
| Park Avenue, Darley Dale. Matlock. | £ 475,000 | BUY | 7 / 10 | 0.15 KM |
| Blagdon Close, Matlock, Derbyshire, DE4 | £ 365,000 | BUY | 7 / 10 | 0.15 KM |
| School Close, Matlock, Derbyshire, DE4 | £ 425,000 | BUY | 7 / 10 | 0.18 KM |
Nearby Properties
| Address | Price | Distance |
|---|---|---|
| 6 The Parkway | £ 325,000 | 0.00 KM |
| 39 The Parkway | £ 235,000 | 0.00 KM |
| 55 The Parkway | £ 250,000 | 0.00 KM |
| 51 The Parkway | £ 270,000 | 0.00 KM |
| 26 The Parkway | £ 270,000 | 0.00 KM |