MO
Somerset Close, Oswaldtwistle, Accrington, Lancashire, BB5
By Mortimers Chartered Surveyors
£ 259,950
Reviews
3 out of 5 stars
Mortimers Chartered Surveyors says ..
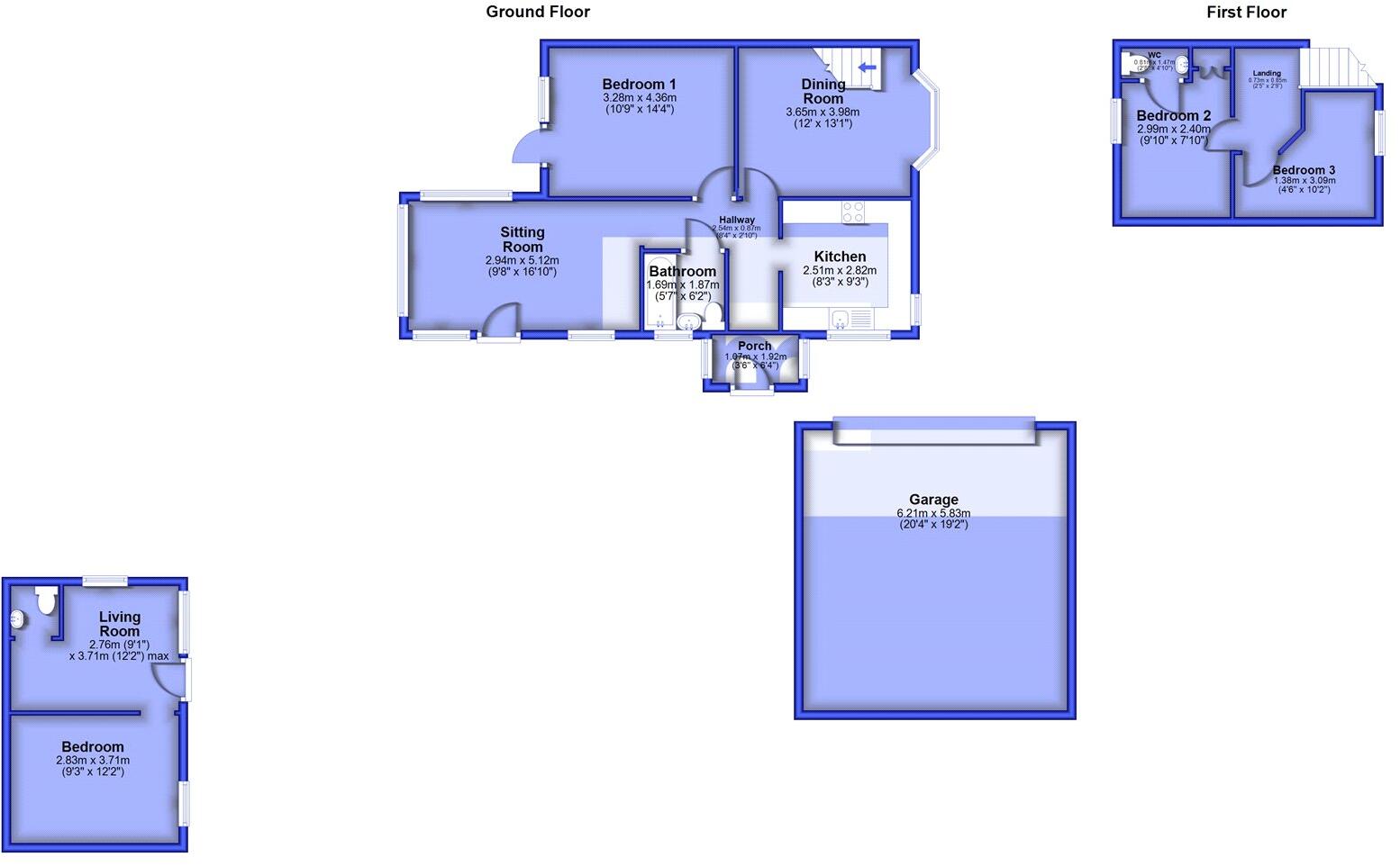
A tastefully decorated & extended three bedroom semi-detached dormer bungalow welcomed to the market. Situated at the end of a quiet & peaceful cul-de-sac, the property offers an abundance of outside space, outbuildings and stylish internal decor. (EPC-C)
Property Oracle says ..
Therefore, we give this property 7 / 10. *Disclaimer: This is our option and does constitute a recommendation or financial advice. Do your own research. *
- Price
- 7
- Condition
- 8
- Location
- 7
- Land
- 7
- Bedrooms
- 3
- Bathrooms
- 2
- Sqft (est)
- 1,364.54
The heatmap indicates the level of crime in the area. The color of the heatmap indicates the crime severity and recency.
Metrics Year-on-Year
- Average area value
- 151,238.00 £Decreased by 25.42 %
- Est sale value
- 222,420.02 £Decreased by 11.89 %
- Average area rental value
- 650.00 £/moDecreased by 10.34 %
- Est letting value
- 0.00 £/mo
- Est rental Yield
- 5.16 %Increased by 20.28 %
- Crime Rate
- 1.00 %Unchanged by 0.00 %
from 202,798.00 £
from 252,439.90 £
from 725.00 £/mo
from 0.00 £/mo
from 4.29 %
from 1.00 %
Agent Activity
Mortimers Chartered Surveyors created the listing.
Nearby Schools
| Name | Type | Ofsted | Distance |
|---|---|---|---|
| Broadfield Specialist School | Community Special School | Outstanding | 0.29 KM |
| St Mary'S Roman Catholic Primary School, Oswaldtwistle | Voluntary Aided School | Good | 0.50 KM |
| Fairfield Children'S Centre | Children's Centre | 0.62 KM | |
| Oswaldtwistle Hippings Methodist Voluntary Controlled Primary School | Voluntary Controlled School | Good | 0.78 KM |
| Fairfield Nursery School | Local Authority Nursery School | Outstanding | 0.86 KM |
Images
Nearby Streets
| Name | Average Price | Average Sqft | Distance |
|---|---|---|---|
| Somerset Close | £ 0 | 0 | 0.00 KM |
| The Meadows | £ 0 | 0 | 0.00 KM |
| Highfield Close | £ 0 | 0 | 0.00 KM |
| Fern Avenue | £ 0 | 0 | 0.00 KM |
| Pendleton Avenue | £ 0 | 0 | 0.00 KM |
Nearby Transport
| Name | NLC | TLC | Distance |
|---|---|---|---|
| Church And Oswaldtwistle | 2556 | CTW | 1.27 KM |
| Accrington | 2552 | ACR | 2.26 KM |
| Rishton | 2580 | RIS | 4.61 KM |
| Huncoat | 2558 | HCT | 5.47 KM |
| Hapton | 2557 | HPN | 8.88 KM |
Nearby Listings
| Address | Price | Type | Score | Distance |
|---|---|---|---|---|
| Somerset Close, Oswaldtwistle, Accrington, Lancashire, BB5 | £ 259,950 | BUY | 7 / 10 | 0.00 KM |
| Hawthorn Avenue, Oswaldtwistle | £ 160,000 | BUY | 6 / 10 | 0.11 KM |
| Somerset Close, Oswaldtwistle, BB5 | £ 189,950 | BUY | Unknown | 0.11 KM |
| Fielding Lane, Oswaldtwistle, BB5 | £ 170,000 | BUY | 7 / 10 | 0.12 KM |
| Hawthorn Avenue, Oswaldtwistle, Accrington | £ 160,000 | BUY | Unknown | 0.12 KM |
Nearby Properties
| Address | Price | Distance |
|---|---|---|
| 30 Queens Drive | £ 130,000 | 0.04 KM |
| 4 Queens Drive | £ 158,000 | 0.04 KM |
| 3 Queens Drive | £ 183,000 | 0.04 KM |
| 23 Queens Drive | £ 153,000 | 0.04 KM |
| 11 Queens Drive | £ 172,500 | 0.04 KM |