Stanley Close, New Eltham, SE9
By The London Property Partnership
£ 500,000
Reviews
3 out of 5 stars
The London Property Partnership says ..
Offered in excellent condition and completely chain free is this attractive three bedroom house
Property Oracle says ..
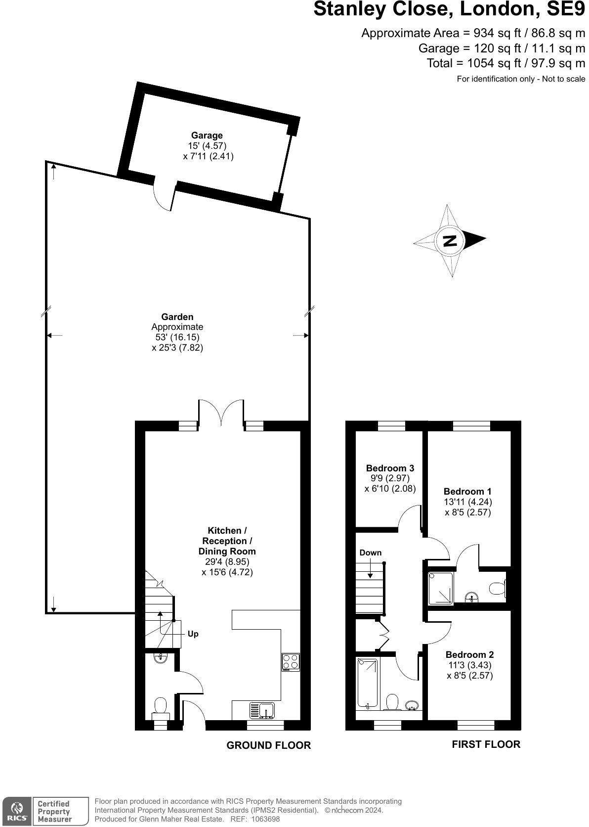
This is a three-bedroom end-of-terrace house in New Eltham, London. The property benefits from a modern interior, a garden, and proximity to local amenities and transportation links. The house appears to be in good condition, with a modern kitchen and bathrooms. The location is ideal for families, with several good schools nearby. The asking price of £500,000 seems reasonable given the property’s size, condition, and location. The property is located 0.36 KM from New Eltham station. Wyborne Primary School is located 0.44 KM away and has an Ofsted rating of ‘Good’. Dulverton Primary School is located 0.85 KM away and also has an Ofsted rating of ‘Good’. The average price of properties on Stanley Close is £300,000.
Therefore, we give this property 7 / 10. *Disclaimer: This is our option and does constitute a recommendation or financial advice. Do your own research. *
- Price
- 7
- Condition
- 8
- Location
- 7
- Land
- 6
- Bedrooms
- 3
- Bathrooms
- 2
- Sqft (est)
- 1,054.00
The heatmap indicates the level of crime in the area. The color of the heatmap indicates the crime severity and recency.
Metrics Year-on-Year
- Average area value
- 689,286.00 £Increased by 31.20 %
- Est sale value
- 767,312.00 £Increased by 48.88 %
- Average area rental value
- 1,774.00 £/moDecreased by 15.96 %
- Est letting value
- 1,054.00 £/moUnchanged by 0.00 %
- Est rental Yield
- 3.09 %Decreased by 35.89 %
- Crime Rate
- 10.00 %Unchanged by 0.00 %
Agent Activity
The London Property Partnership created the listing.
Nearby Schools
| Name | Type | Ofsted | Distance |
|---|---|---|---|
| Wyborne Primary School | Community School | Good | 0.44 KM |
| Dulverton Primary School | Community School | Good | 0.85 KM |
| St Olave'S Prep School | Other Independent School | 0.93 KM | |
| Stationers' Crown Woods Academy | Academy Converter | Good | 1.45 KM |
| Edgebury Primary School | Foundation School | Good | 1.56 KM |
Images
Nearby Streets
| Name | Average Price | Average Sqft | Distance |
|---|---|---|---|
| Roberts Close | £ 300,000 | 0 | 0.00 KM |
| Brendon Road | £ 0 | 0 | 0.00 KM |
| Braemar Gardens | £ 0 | 0 | 0.00 KM |
| Fairlands Court | £ 325,000 | 0 | 0.00 KM |
| Buckingham Drive | £ 0 | 0 | 0.00 KM |
Nearby Transport
| Name | NLC | TLC | Distance |
|---|---|---|---|
| New Eltham | 5119 | NEH | 0.36 KM |
| Falconwood | 5137 | FCN | 2.27 KM |
| Mottingham | 5118 | MTG | 2.59 KM |
| Eltham | 5103 | ELW | 2.93 KM |
| Sidcup | 5125 | SID | 3.41 KM |
Nearby Listings
| Address | Price | Type | Score | Distance |
|---|---|---|---|---|
| Stanley Close, New Eltham, SE9 | £ 500,000 | BUY | 7 / 10 | 0.00 KM |
| Stanley Close, New Eltham | £ 550,000 | BUY | 7 / 10 | 0.00 KM |
| Stanley Close, New Eltham | £ 500,000 | BUY | 7 / 10 | 0.00 KM |
| Stanley Close, Avery Hill, SE9 | £ 525,000 | BUY | 7 / 10 | 0.00 KM |
| Stanley Close, New Eltham | £ 285,000 | BUY | 7 / 10 | 0.03 KM |
Nearby Properties
| Address | Price | Distance |
|---|---|---|
| 31 Stanley Close | £ 250,000 | 0.01 KM |
| 52 Stanley Close | £ 265,000 | 0.01 KM |
| 38 Stanley Close | £ 450,000 | 0.01 KM |
| 15 Stanley Close | £ 245,000 | 0.01 KM |
| 24 Stanley Close | £ 249,950 | 0.01 KM |