Grange Road, London, SE25
By Stirling Ackroyd
£ 150,000
Reviews
2 out of 5 stars
Stirling Ackroyd says ..
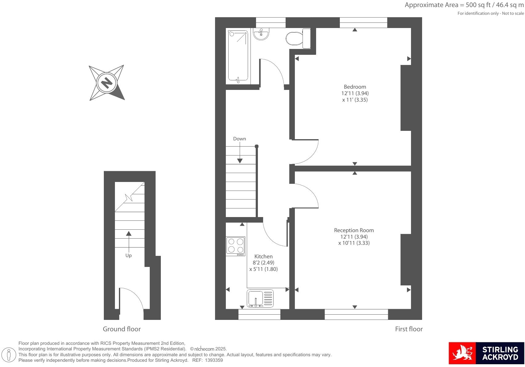
A one bedroom first floor maisonette – Grange Road, SE25. Offered to the market with no onward chain is this one bedroom first floor maisonette, an ideal opportunity for cash buyers, as the lease will require extending. The property would benefit from a programme of internal refu...
Property Oracle says ..
This is a one-bedroom apartment located on Grange Road in the Crystal Palace & Upper Norwood area of London. The property requires renovation, as evidenced by cracks in the walls and dated fixtures. It is situated on a busy main road. The apartment is 290.42 sqft. The list price is £150,000, which is significantly below the average for the area. The property is close to transportation links and schools.
Therefore, we give this property 4 / 10. *Disclaimer: This is our option and does constitute a recommendation or financial advice. Do your own research. *
- Price
- 8
- Condition
- 3
- Location
- 6
- Land
- 1
- Bedrooms
- 1
- Bathrooms
- 1
- Sqft (est)
- 290.42
The heatmap indicates the level of crime in the area. The color of the heatmap indicates the crime severity and recency.
Metrics Year-on-Year
- Average area value
- 455,333.00 £Decreased by 15.67 %
- Est sale value
- 171,638.22 £Increased by 10.47 %
- Average area rental value
- 1,777.00 £/moDecreased by 9.52 %
- Est letting value
- 580.84 £/moIncreased by 100.00 %
- Est rental Yield
- 4.68 %Increased by 7.09 %
- Crime Rate
- 2.00 %Unchanged by 0.00 %
Agent Activity
Stirling Ackroyd created the listing.
Nearby Schools
| Name | Type | Ofsted | Distance |
|---|---|---|---|
| All Saints Cofe Primary School | Voluntary Aided School | Good | 0.72 KM |
| Cypress Primary School | Academy Sponsor Led | Good | 0.75 KM |
| David Livingstone Academy | Academy Converter | Outstanding | 0.97 KM |
| Beulah Infants' School | Academy Sponsor Led | Good | 1.06 KM |
| Beulah Junior School | Community School | Good | 1.08 KM |
Images
Nearby Streets
| Name | Average Price | Average Sqft | Distance |
|---|---|---|---|
| Howberry Road | £ 535,000 | 0 | 0.00 KM |
| Holmewood Road | £ 0 | 0 | 0.00 KM |
| Laws Close | £ 390,000 | 0 | 0.00 KM |
| Westwood Avenue | £ 925,000 | 0 | 0.00 KM |
| Osborne Road | £ 305,000 | 0 | 0.00 KM |
Nearby Transport
| Name | NLC | TLC | Distance |
|---|---|---|---|
| Thornton Heath | 5388 | TTH | 1.47 KM |
| Selhurst | 5434 | SRS | 1.63 KM |
| Norwood Junction | 5376 | NWD | 1.91 KM |
| Gipsy Hill | 5363 | GIP | 2.10 KM |
| Crystal Palace | 5356 | CYP | 2.28 KM |
Nearby Listings
| Address | Price | Type | Score | Distance |
|---|---|---|---|---|
| Grange Road, London, SE25 | £ 150,000 | BUY | 4 / 10 | 0.00 KM |
| Grange Road, London | £ 375,000 | BUY | 7 / 10 | 0.05 KM |
| Mersham Road, Thornton Heath, CR7 | £ 225,000 | BUY | 7 / 10 | 0.06 KM |
| Annsworthy Crescent, South Norwood, London, SE25 | £ 525,000 | BUY | 6 / 10 | 0.10 KM |
| Annsworthy Crescent, London, SE25 | £ 700,000 | BUY | 6 / 10 | 0.12 KM |
Nearby Properties
| Address | Price | Distance |
|---|---|---|
| 301a Grange Road | £ 110,000 | 0.04 KM |
| 309 Grange Road | £ 210,000 | 0.04 KM |
| 307 Grange Road | £ 165,000 | 0.04 KM |
| 301 Grange Road | £ 330,000 | 0.04 KM |
| 313a Grange Road | £ 108,500 | 0.04 KM |