Bremer Road, Staines-upon-thames, TW18
By BAARTZ
£ 395,000
Reviews
3 out of 5 stars
BAARTZ says ..
This FREEHOLD Victorian character cottage is ideally located, just a short stroll from both Staines town centre and the mainline train station
Property Oracle says ..
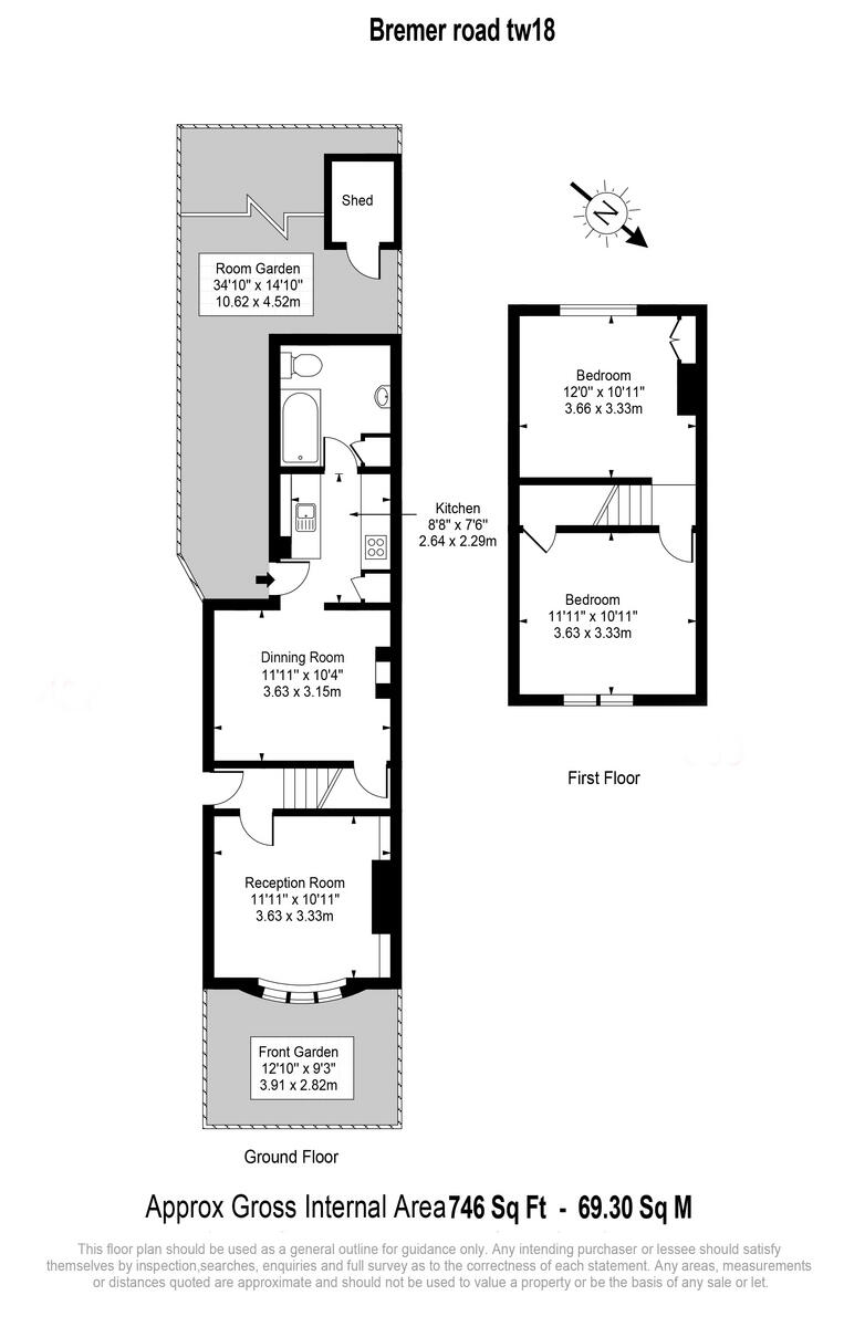
This two-bedroom Victorian cottage in Staines-upon-Thames presents a comfortable and convenient living space. Its location offers easy access to Staines town centre and the mainline train station, making commuting and daily errands straightforward. The property shows a mix of features; some areas, such as the kitchen and bathroom, seem recently updated, providing a modern feel. Other areas might benefit from cosmetic upgrades or minor renovations. The small garden offers a pleasant outdoor space, although not particularly extensive. The lack of detailed information regarding the sqft of comparable properties makes determining the exact value slightly more challenging. However, the price appears reasonable when considering the overall amenities and the desirable location within walking distance to town and the station. Overall, the property is suitable for various buyers, including first-time homebuyers and small families, seeking a property in a convenient and well-connected location. The house presents a well-maintained, if not entirely modern, aesthetic that could benefit from a few additional upgrades.
Therefore, we give this property 6 / 10. *Disclaimer: This is our option and does constitute a recommendation or financial advice. Do your own research. *
- Price
- 7
- Condition
- 6
- Location
- 7
- Land
- 4
- Bedrooms
- 2
- Bathrooms
- 1
- Sqft (est)
- 745.94
The heatmap indicates the level of crime in the area. The color of the heatmap indicates the crime severity and recency.
Metrics Year-on-Year
- Average area value
- 475,335.00 £Increased by 9.77 %
- Est sale value
- 463,974.68 £Increased by 17.36 %
- Average area rental value
- 1,773.00 £/moIncreased by 5.54 %
- Est letting value
- 1,491.88 £/moUnchanged by 0.00 %
- Est rental Yield
- 4.48 %Decreased by 3.86 %
- Crime Rate
- 11.00 %Unchanged by 0.00 %
Agent Activity
BAARTZ created the listing.
Nearby Schools
| Name | Type | Ofsted | Distance |
|---|---|---|---|
| Staines Preparatory School | Other Independent School | 0.73 KM | |
| Riverbridge Primary School | Academy Converter | Good | 1.28 KM |
| Our Lady Of The Rosary Rc Primary School | Voluntary Aided School | Good | 1.39 KM |
| The Matthew Arnold School | Academy Converter | Good | 1.84 KM |
| Ashford Park Primary School | Community School | Good | 2.19 KM |
Images
Nearby Streets
| Name | Average Price | Average Sqft | Distance |
|---|---|---|---|
| Billet Road | £ 0 | 0 | 0.00 KM |
| Dolphin Court | £ 475,000 | 0 | 0.00 KM |
| The Sidings | £ 0 | 0 | 0.00 KM |
| Pinewood Drive | £ 215,000 | 0 | 0.00 KM |
| Furlong Road | £ 0 | 0 | 0.00 KM |
Nearby Transport
| Name | NLC | TLC | Distance |
|---|---|---|---|
| Staines | 5670 | SNS | 0.77 KM |
| Ashford (Surrey) | 5667 | AFS | 3.47 KM |
| Heathrow Terminal 5 | 9846 | HWV | 3.67 KM |
| Wraysbury | 5673 | WRY | 5.17 KM |
| Egham | 5669 | EGH | 5.29 KM |
Nearby Listings
| Address | Price | Type | Score | Distance |
|---|---|---|---|---|
| Bremer Road, Staines-upon-thames, TW18 | £ 395,000 | BUY | 6 / 10 | 0.00 KM |
| Bremer Road, Staines-upon-Thames, Surrey, TW18 | £ 400,000 | BUY | 6 / 10 | 0.05 KM |
| Bremer Road, Staines, Surrey, TW18 | £ 400,000 | BUY | 7 / 10 | 0.05 KM |
| Bremer Road, Staines-upon-Thames, TW18 | £ 399,950 | BUY | 7 / 10 | 0.05 KM |
| Bremer Road, Staines-upon-Thames, TW18 | £ 450,000 | BUY | 7 / 10 | 0.05 KM |
Nearby Properties
| Address | Price | Distance |
|---|---|---|
| 45 Bremer Road | £ 350,000 | 0.04 KM |
| 36 Bremer Road | £ 385,000 | 0.04 KM |
| 32 Bremer Road | £ 75,000 | 0.04 KM |
| 28 Bremer Road | £ 340,000 | 0.04 KM |
| 39 Bremer Road | £ 250,000 | 0.04 KM |