Hillcrest Gardens, Esher
By Castor Bay Property Ltd
£ 1,750,000
Reviews
3 out of 5 stars
Castor Bay Property Ltd says ..
Magnificence Unleashed! A designer home experience in the catchment of Hinchley Wood. We are thrilled to share a truly magnificent property that embodies the pinnacle of interior design and luxurious family living. Open Home Saturday 1pm-2pm.
Property Oracle says ..
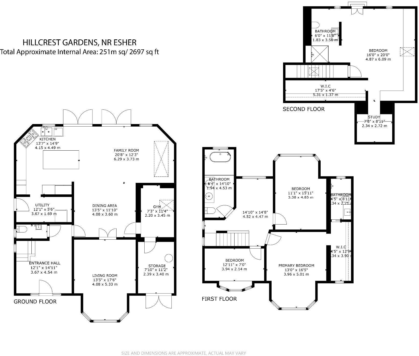
This is a detached property in Esher, Surrey. It features 4 bedrooms and 3 bathrooms. The property is in excellent condition, with modern interiors and a well-maintained garden. It is located close to schools and transportation links. The price seems high for the area.
Therefore, we give this property 7 / 10. *Disclaimer: This is our option and does constitute a recommendation or financial advice. Do your own research. *
- Price
- 6
- Condition
- 9
- Location
- 8
- Land
- 7
- Bedrooms
- 4
- Bathrooms
- 3
The heatmap indicates the level of crime in the area. The color of the heatmap indicates the crime severity and recency.
Metrics Year-on-Year
- Average area value
- 1,013,333.00 £Decreased by 0.35 %
- Average area rental value
- 1,500.00 £/moDecreased by 52.35 %
- Est rental Yield
- 1.78 %Decreased by 52.02 %
- Crime Rate
- 4.00 %Unchanged by 0.00 %
Agent Activity
Castor Bay Property Ltd created the listing.
Nearby Schools
| Name | Type | Ofsted | Distance |
|---|---|---|---|
| Hinchley Wood School | Academy Converter | 0.78 KM | |
| Hinchley Wood Primary School | Academy Converter | 0.83 KM | |
| Claygate & Oxshott Sure Start Children'S Centre | Children's Centre | 1.38 KM | |
| The Ditton'S Sure Start Children'S Centre | Children's Centre | 1.63 KM | |
| Weston Green Preparatory School | Other Independent School | 1.69 KM |
Images
Nearby Streets
| Name | Average Price | Average Sqft | Distance |
|---|---|---|---|
| Priors Wood | £ 0 | 0 | 0.00 KM |
| Newlands Avenue | £ 0 | 0 | 0.00 KM |
| Meadow Road | £ 0 | 0 | 0.00 KM |
| Kingston Bypass | £ 0 | 0 | 0.00 KM |
| Basing Close | £ 1,650,000 | 0 | 0.00 KM |
Nearby Transport
| Name | NLC | TLC | Distance |
|---|---|---|---|
| Hinchley Wood | 5591 | HYW | 0.56 KM |
| Thames Ditton | 5610 | THD | 1.85 KM |
| Claygate | 5556 | CLG | 1.88 KM |
| Esher | 5558 | ESH | 2.08 KM |
| Hampton Court | 5561 | HMC | 3.40 KM |
Nearby Listings
| Address | Price | Type | Score | Distance |
|---|---|---|---|---|
| Hillcrest Gardens, Esher | £ 1,750,000 | BUY | 7 / 10 | 0.00 KM |
| Hillcrest Gardens, Esher, KT10 | £ 950,000 | BUY | 7 / 10 | 0.04 KM |
| Hinchley Close, Esher, KT10 | £ 1,600,000 | BUY | Unknown | 0.10 KM |
| Hinchley Close, Esher, Surrey, KT10 | £ 1,625,000 | BUY | Unknown | 0.10 KM |
| Hillcrest Gardens, Esher | £ 1,150,000 | BUY | Unknown | 0.10 KM |
Nearby Properties
| Address | Price | Distance |
|---|---|---|
| 25 Hillcrest Gardens | £ 545,000 | 0.01 KM |
| 51 Hillcrest Gardens | £ 732,500 | 0.01 KM |
| 27 Hillcrest Gardens | £ 1,102,000 | 0.01 KM |
| 19 Hillcrest Gardens | £ 685,000 | 0.01 KM |
| 29 Hillcrest Gardens | £ 580,000 | 0.01 KM |