The Old Hare and Hounds, Cruckton, Shrewsbury
By Holland Broadbridge
£ 565,000
Reviews
3 out of 5 stars
Holland Broadbridge says ..
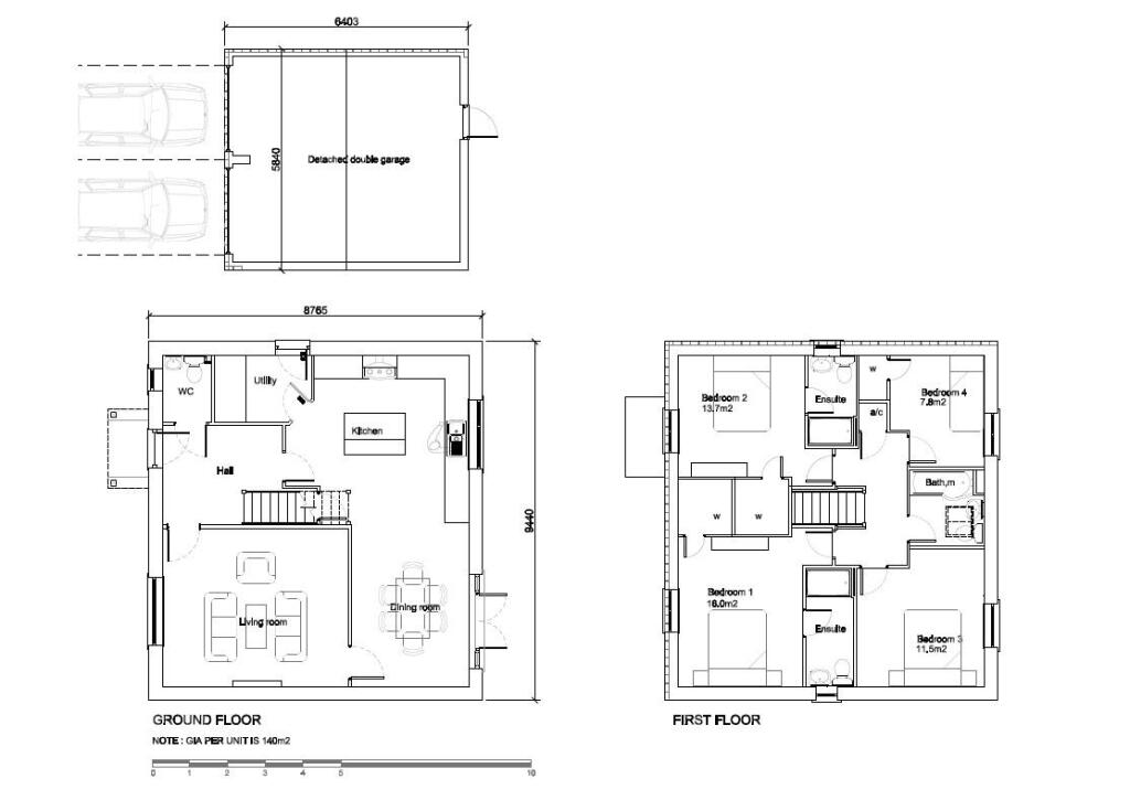
An opportunity to acquire one of four brand new contemporary 4 bedroom detached property's each thoughtfully designed to combine modern living with high energy sufficiency. Set within a select and excusive development in the sought after village of Cruckton these homes offer privacy, space, and ...
Property Oracle says ..
The property is a detached house located in a rural setting in Shropshire. It features four bedrooms and two bathrooms. The property appears to be in good condition, possibly recently renovated or well-maintained. It includes a garden and is situated near a primary school. The price is higher than the average for the area but seems reasonable for a barn conversion of this type and condition. The location offers a balance of rural living with proximity to Shrewsbury for amenities. The property is modern in style.
Therefore, we give this property 6 / 10. *Disclaimer: This is our option and does constitute a recommendation or financial advice. Do your own research. *
- Price
- 6
- Condition
- 8
- Location
- 7
- Land
- 6
- Bedrooms
- 4
- Bathrooms
- 2
The heatmap indicates the level of crime in the area. The color of the heatmap indicates the crime severity and recency.
Metrics Year-on-Year
- Average area value
- 243,278.00 £Decreased by 3.15 %
- Average area rental value
- 1,186.00 £/moIncreased by 12.42 %
- Est rental Yield
- 5.85 %Increased by 16.07 %
- Crime Rate
- 0.00 %
Agent Activity
Holland Broadbridge created the listing.
Nearby Schools
| Name | Type | Ofsted | Distance |
|---|---|---|---|
| St Thomas And St Anne Cofe Primary School | Voluntary Controlled School | Good | 1.52 KM |
| Trinity Cofe Primary School | Voluntary Controlled School | Good | 3.70 KM |
| Longden Cofe Primary School | Voluntary Aided School | Good | 4.53 KM |
| Bicton Cofe Primary School And Nursery | Voluntary Controlled School | Requires improvement | 4.69 KM |
| Oxon Cofe Primary School | Voluntary Controlled School | Outstanding | 4.73 KM |
Images
Nearby Listings
| Address | Price | Type | Score | Distance |
|---|---|---|---|---|
| The Old Hare and Hounds, Cruckton, Shrewsbury | £ 565,000 | BUY | 6 / 10 | 0.00 KM |
| The Old Hare and Hound, Cruckton, Shrewsbury | £ 595,000 | BUY | Unknown | 0.07 KM |
| Cruckton Hall Gardens, Cruckton, Shrewsbury | £ 450,000 | BUY | Unknown | 0.61 KM |
| The Gables, Cruckton, Shrewsbury, Shropshire, SY5 8PW | £ 615,000 | BUY | 7 / 10 | 0.91 KM |
| The Coach House, Horton Lodge Barns, Cruckton, Shrewsbury | £ 425,000 | BUY | 6 / 10 | 1.21 KM |
Nearby Properties
| Address | Price | Distance |
|---|---|---|
| 12 Church Close | £ 185,000 | 0.53 KM |
| 16 Church Close | £ 194,000 | 0.53 KM |
| 11 Church Close | £ 243,000 | 0.53 KM |
| Church House | £ 550,000 | 0.53 KM |
| 15 Church Close | £ 218,000 | 0.53 KM |