Portway, Street, Somerset
HO

Portway, Street, Somerset

By holland & odam

£ 299,950

Reviews

3 out of 5 stars

holland & odam says ..

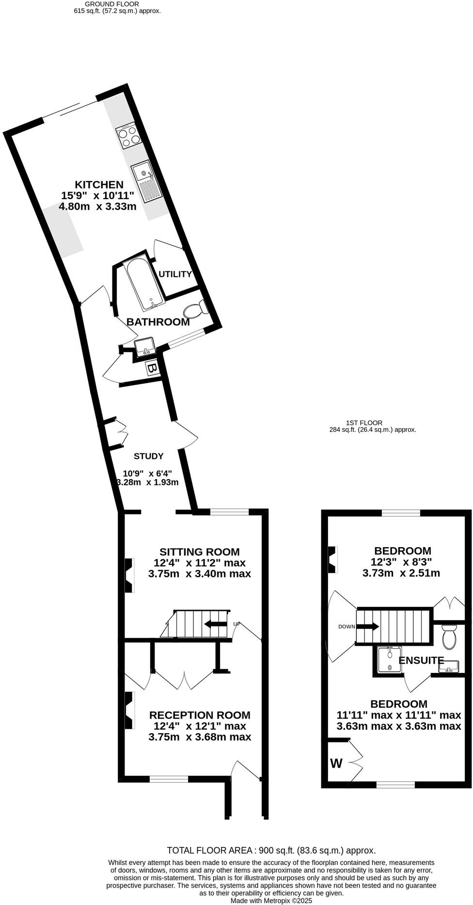
We are delighted to present this charming cottage to the market, offering spacious and versatile living accommodation. With two double bedrooms, two contemporary bathrooms and a beautifully mature garden that creates a tranquil outdoor haven.

Property Oracle says ..

This property is a charming cottage located in Street, Somerset. It benefits from a good location, with several schools within a short distance, including Hindhayes Infant School (Good Ofsted rating) and Crispin School Academy (Good Ofsted rating). The property itself is in reasonable condition, showing some signs of age but appearing well-maintained. The cottage has a pleasant garden, adding to its appeal. While the list price is slightly above the average price per square foot for the area, it is in line with prices of similar properties on Portway. The smaller plot size compared to the average might justify the slightly lower price per square foot compared to the area average.

Therefore, we give this property 7 / 10. *Disclaimer: This is our option and does constitute a recommendation or financial advice. Do your own research. *

Price
7
Condition
7
Location
8
Land
6
Bedrooms
2
Bathrooms
2
Sqft (est)
700.00
Lot (est)
900.00

The heatmap indicates the level of crime in the area. The color of the heatmap indicates the crime severity and recency.

Metrics Year-on-Year

Average area value
211,990.00 £
Decreased by 57.21 %
from 495,407.00 £
Est sale value
205,800.00 £
Decreased by 9.82 %
from 228,200.00 £
Average area rental value
1,750.00 £/mo
Increased by 95.75 %
from 894.00 £/mo
Est letting value
1,400.00 £/mo
from 0.00 £/mo
Est rental Yield
9.91 %
Increased by 356.68 %
from 2.17 %
Crime Rate
2.00 %
Unchanged by 0.00 %
from 2.00 %

Agent Activity

  • holland & odam created the listing.

Nearby Schools

NameTypeOfstedDistance
Hindhayes Infant SchoolCommunity SchoolGood0.52 KM
Elmhurst Junior SchoolCommunity SchoolRequires improvement0.59 KM
Millfield SchoolOther Independent School0.63 KM
Strode CollegeFurther EducationOutstanding1.07 KM
Crispin School AcademyAcademy ConverterGood1.08 KM

Images

TEK HiRes 250414 002 TEK HiRes 250414 005 TEK HiRes 250414 029 TEK HiRes 250414 030 TEK HiRes 250414 036 TEK HiRes 250414 031 TEK HiRes 250414 035 TEK HiRes 250414 034 TEK HiRes 250414 033 TEK HiRes 250414 032 TEK HiRes 250414 037 TEK HiRes 250414 039 TEK HiRes 250414 038 TEK HiRes 250414 040 TEK HiRes 250414 041 TEK HiRes 250414 018 TEK HiRes 250414 019 TEK HiRes 250414 020 TEK HiRes 250414 021 TEK HiRes 250414 022 TEK HiRes 250414 023 TEK HiRes 250414 027 TEK HiRes 250414 004

Nearby Streets

NameAverage PriceAverage SqftDistance
Portway £ 000.00 KM
Portway Crescent £ 729,95000.00 KM
East Road £ 362,50000.00 KM
Stoke Road £ 000.00 KM
Kingston Close £ 000.00 KM

Nearby Listings

AddressPriceTypeScoreDistance
Portway, Street, Somerset £ 299,950BUY7 / 100.00 KM
Portway, Street £ 435,000BUY7 / 100.04 KM
Housman Road, Street, Somerset, BA16 £ 900,000BUY7 / 100.13 KM
Housman Road, Street £ 700,000BUY7 / 100.15 KM
Housman Road, Street, BA16 £ 1,050,000BUYUnknown0.22 KM

Nearby Properties

AddressPriceDistance
40 Portway £ 220,0000.02 KM
23 Portway £ 314,0000.02 KM
Burnmoor £ 259,9500.02 KM
29 Portway £ 355,0000.02 KM
42 Portway £ 228,0000.02 KM