Taylor Street, Goldenhill , Stoke-on-Trent
By Findahome Online Ltd
£ 130,000
Reviews
3 out of 5 stars
Findahome Online Ltd says ..
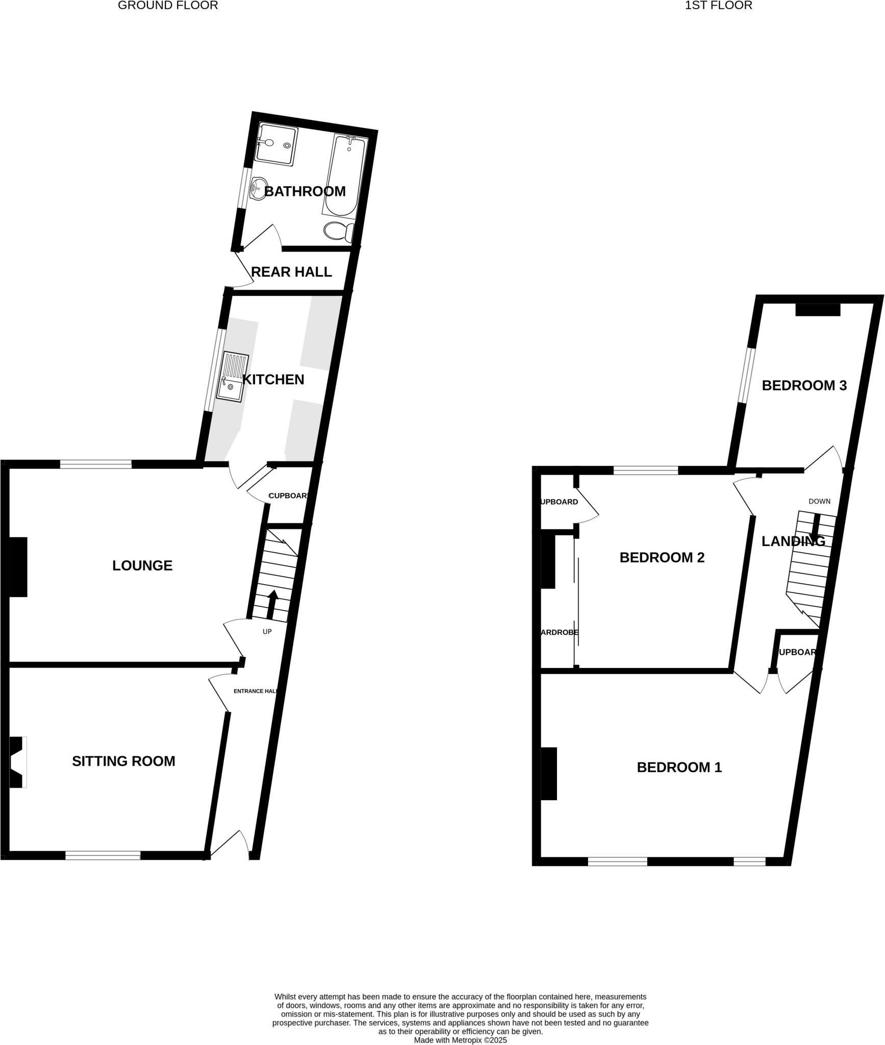
Findahome Online are delighted to offer this spacious three-bedroom end terrace house, available with No Upward Chain. The property has been refurbished to an exceptional standard and is ideal for first-time buyers, families, or buy-to-let investors. Key features include: Brand new kitchen New st...
Property Oracle says ..
The property is located in Goldenhill, Stoke-on-Trent. It’s an end-of-terrace house with 3 bedrooms and 1 bathroom. Nearby, there are several schools, including St Joseph’s Catholic Academy which has a ‘Good’ Ofsted rating and is within walking distance. There are also several transportation options within a reasonable distance, such as Kidsgrove and Longport train stations. Based on the images, the property appears to have been recently renovated with a modern kitchen and bathroom. The interior looks clean and well-maintained. The property has a paved garden. The list price is £130,000. The average price per square foot in the area is £230. The property has 872 square feet, which at the average price would be £200,560. However, nearby listings of similar properties are selling for between £75,000 and £110,000.
Therefore, we give this property 7 / 10. *Disclaimer: This is our option and does constitute a recommendation or financial advice. Do your own research. *
- Price
- 7
- Condition
- 8
- Location
- 7
- Land
- 6
- Bedrooms
- 3
- Bathrooms
- 1
- Sqft (est)
- 872.00
The heatmap indicates the level of crime in the area. The color of the heatmap indicates the crime severity and recency.
Metrics Year-on-Year
- Average area value
- 274,990.00 £Decreased by 21.89 %
- Est sale value
- 200,560.00 £Decreased by 31.55 %
- Average area rental value
- 838.00 £/moDecreased by 3.12 %
- Est letting value
- 0.00 £/mo
- Est rental Yield
- 3.66 %Increased by 24.07 %
- Crime Rate
- 24.00 %Unchanged by 0.00 %
Agent Activity
Findahome Online Ltd marked this listing as sold.
Findahome Online Ltd created the listing.
Nearby Schools
| Name | Type | Ofsted | Distance |
|---|---|---|---|
| St Joseph'S Catholic Academy, Goldenhill | Academy Converter | Good | 0.50 KM |
| Goldenhill Primary Academy | Academy Converter | 0.78 KM | |
| Star Academy, Sandyford | Academy Sponsor Led | Requires improvement | 0.78 KM |
| Summerbank Primary Academy | Academy Converter | 1.44 KM | |
| St Thomas' Cofe Primary Academy | Academy Converter | 2.09 KM |
Images
Nearby Streets
| Name | Average Price | Average Sqft | Distance |
|---|---|---|---|
| Albany Street | £ 0 | 0 | 0.00 KM |
| Sneyd Place | £ 99,975 | 0 | 0.00 KM |
| Russell Place | £ 110,000 | 0 | 0.00 KM |
| Ashover Grove | £ 310,000 | 0 | 0.00 KM |
| St. Aidan's Street | £ 90,000 | 0 | 0.00 KM |
Nearby Transport
| Name | NLC | TLC | Distance |
|---|---|---|---|
| Kidsgrove | 1229 | KDG | 3.16 KM |
| Longport | 1305 | LPT | 3.86 KM |
| Stoke-On-Trent | 1314 | SOT | 8.66 KM |
| Alsager | 1223 | ASG | 9.14 KM |
| Congleton | 1227 | CNG | 9.47 KM |
Nearby Listings
| Address | Price | Type | Score | Distance |
|---|---|---|---|---|
| Taylor Street, Stoke-on-Trent, Staffordshire, ST6 | £ 100,000 | BUY | Unknown | 0.00 KM |
| Taylor Street, Goldenhill , Stoke-on-Trent | £ 130,000 | BUY | 7 / 10 | 0.00 KM |
| Taylor Street, Goldenhill, Stoke-on-Trent, ST6 | £ 75,000 | BUY | 3 / 10 | 0.00 KM |
| Brakespeare Street, Goldenhill, Stoke-on-Trent, ST6 | £ 110,000 | BUY | 5 / 10 | 0.09 KM |
| Heath Street, Goldenhill, Stoke-on-Trent, Staffordshire, ST6 | £ 100,000 | BUY | 5 / 10 | 0.10 KM |
Nearby Properties
| Address | Price | Distance |
|---|---|---|
| 14 Taylor Street | £ 95,000 | 0.00 KM |
| 40 Taylor Street | £ 63,000 | 0.00 KM |
| 12 Taylor Street | £ 20,500 | 0.00 KM |
| 10 Taylor Street | £ 50,000 | 0.00 KM |
| 51 Taylor Street | £ 65,000 | 0.00 KM |