Jackson & Co says ..
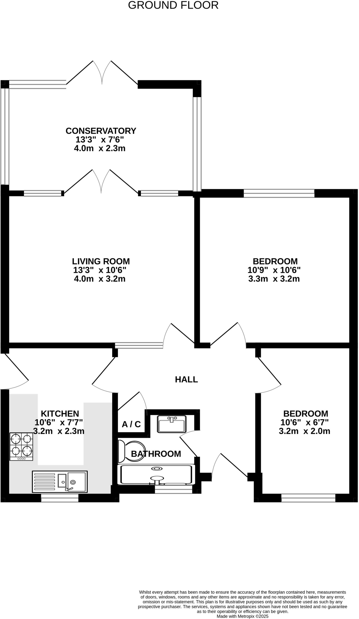
This detached bungalow features a living room that flows effortlessly into a bright conservatory, creating an inviting space for relaxation or entertaining. With two bedrooms and a practical layout, this property is perfect for first-time buyers, retirees, or those looking to downsize.
Property Oracle says ..
This property is a detached bungalow located in Thurston, Suffolk. The location is positive, with a nearby Thurston Community College (rated good) and other schools within a reasonable distance. The property itself appears to be in generally good condition, although some minor cosmetic updates might enhance its appeal. The presence of a garden is a plus. However, the lack of square footage data makes a definitive price assessment challenging. Compared to local averages and nearby listings, the list price of £270,000 could be considered reasonable, particularly given the bungalow style and the presence of a garden. More detailed information regarding the property’s size and condition would allow for a more precise evaluation.
Therefore, we give this property 7 / 10. *Disclaimer: This is our option and does constitute a recommendation or financial advice. Do your own research. *
- Price
- 7
- Condition
- 7
- Location
- 8
- Land
- 7
- Bedrooms
- 2
- Bathrooms
- 1
The heatmap indicates the level of crime in the area. The color of the heatmap indicates the crime severity and recency.
Metrics Year-on-Year
- Average area value
- 418,571.00 £Decreased by 7.66 %
- Average area rental value
- 1,600.00 £/moIncreased by 55.19 %
- Est rental Yield
- 4.59 %Increased by 68.13 %
- Crime Rate
- 7.00 %Unchanged by 0.00 %
Agent Activity
Jackson & Co created the listing.
Nearby Schools
| Name | Type | Ofsted | Distance |
|---|---|---|---|
| Thurston Community College | Community School | Good | 1.64 KM |
| Rougham Church Of England Primary School | Academy Sponsor Led | 3.67 KM | |
| Norton Cevc Primary School | Voluntary Controlled School | Outstanding | 4.97 KM |
| Thurston Church Of England Primary Academy | Academy Converter | Good | 5.03 KM |
| Ixworth Church Of England Primary School | Academy Sponsor Led | 5.56 KM |
Images
Nearby Streets
| Name | Average Price | Average Sqft | Distance |
|---|---|---|---|
| Cavendish Close | £ 0 | 0 | 0.00 KM |
| Gatekeeper Close | £ 500,000 | 0 | 0.00 KM |
| Rooks Mead | £ 0 | 0 | 0.00 KM |
| Skipper Close | £ 370,000 | 0 | 0.00 KM |
| Pond Field Road | £ 133,375 | 0 | 0.00 KM |
Nearby Transport
| Name | NLC | TLC | Distance |
|---|---|---|---|
| Thurston | 7356 | TRS | 1.67 KM |
| Elmswell | 7349 | ESW | 9.92 KM |
Nearby Listings
| Address | Price | Type | Score | Distance |
|---|---|---|---|---|
| Church Road, Thurston | £ 270,000 | BUY | 7 / 10 | 0.00 KM |
| Church Road, Thurston | £ 325,000 | BUY | 7 / 10 | 0.05 KM |
| Cavendish Close, Thurston | £ 230,000 | BUY | Unknown | 0.14 KM |
| Church Road, Thurston, Bury St. Edmunds | £ 350,000 | BUY | 6 / 10 | 0.19 KM |
| Post Office Lane, Thurston | £ 650,000 | BUY | 7 / 10 | 0.28 KM |
Nearby Properties
| Address | Price | Distance |
|---|---|---|
| 2 Cavendish Close | £ 181,000 | 0.16 KM |
| 6 Cavendish Close | £ 195,000 | 0.16 KM |
| 3 Cavendish Close | £ 162,000 | 0.16 KM |
| 4 Cavendish Close | £ 215,000 | 0.16 KM |
| 10 Cavendish Close | £ 162,000 | 0.16 KM |