Comeragh Road, West Kensington, W14 9HS
By Shaws Kensington
£ 725,000
Reviews
3 out of 5 stars
Shaws Kensington says ..
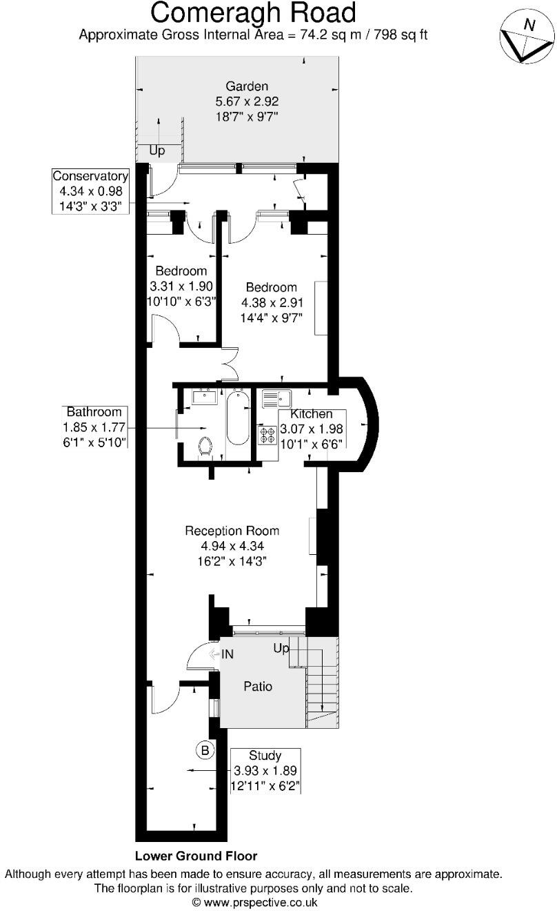
Having been architecturally designed and refurbished to a very high standard is this 891sqft two bedroom garden flat.
Property Oracle says ..
This is a well-presented two-bedroom apartment in a sought-after location. The property is in good condition and benefits from a patio area. The property is well-located for transport links, schools, and local amenities. The asking price is reasonable for the area.
Therefore, we give this property 7 / 10. *Disclaimer: This is our option and does constitute a recommendation or financial advice. Do your own research. *
- Price
- 7
- Condition
- 8
- Location
- 8
- Land
- 6
- Bedrooms
- 2
- Bathrooms
- 1
The heatmap indicates the level of crime in the area. The color of the heatmap indicates the crime severity and recency.
Metrics Year-on-Year
- Average area value
- 905,000.00 £Decreased by 9.28 %
- Average area rental value
- 3,185.00 £/moIncreased by 13.63 %
- Est rental Yield
- 4.22 %Increased by 25.22 %
- Crime Rate
- 2.00 %Unchanged by 0.00 %
Agent Activity
Shaws Kensington created the listing.
Nearby Schools
| Name | Type | Ofsted | Distance |
|---|---|---|---|
| The Fulham Prep School Ltd | Other Independent School | Good | 0.33 KM |
| Ealing, Hammersmith And West London College | Further Education | Good | 0.44 KM |
| James Lee Nursery School | Local Authority Nursery School | Outstanding | 0.46 KM |
| Bayonne Nursery School | Local Authority Nursery School | Outstanding | 0.53 KM |
| St Augustine'S Rc Primary School | Voluntary Aided School | Outstanding | 0.53 KM |
Images
Nearby Streets
| Name | Average Price | Average Sqft | Distance |
|---|---|---|---|
| Gliddon Road | £ 850,455 | 0 | 0.00 KM |
| Musard Road | £ 1,007,500 | 0 | 0.00 KM |
| May Street | £ 0 | 0 | 0.00 KM |
| Disbrowe Road | £ 0 | 0 | 0.00 KM |
| Williams Close | £ 525,000 | 0 | 0.00 KM |
Nearby Transport
| Name | NLC | TLC | Distance |
|---|---|---|---|
| Kensington (Olympia) | 3092 | KPA | 1.07 KM |
| West Brompton | 8875 | WBP | 1.82 KM |
| Shepherd'S Bush | 9587 | SPB | 1.98 KM |
| Putney | 5603 | PUT | 3.06 KM |
| Imperial Wharf | 9586 | IMW | 3.56 KM |
Nearby Listings
| Address | Price | Type | Score | Distance |
|---|---|---|---|---|
| Comeragh Road, West Kensington, W14 9HS | £ 725,000 | BUY | 7 / 10 | 0.00 KM |
| Comeragh Road, Barons Court, London, W14 | £ 525,000 | BUY | Unknown | 0.04 KM |
| Comeragh Road, Barons Court, London, W14 | £ 575,000 | BUY | Unknown | 0.04 KM |
| Comeragh Road, Barons Court, London, W14 | £ 625,000 | BUY | 6 / 10 | 0.04 KM |
| Comeragh Road, Barons Court, London, W14 | £ 575,000 | BUY | 7 / 10 | 0.04 KM |
Nearby Properties
| Address | Price | Distance |
|---|---|---|
| 105a Comeragh Road | £ 169,000 | 0.07 KM |
| 87a Comeragh Road | £ 750,000 | 0.07 KM |
| 99a Comeragh Road | £ 555,000 | 0.07 KM |
| 83 Comeragh Road | £ 475,000 | 0.07 KM |
| 103a Comeragh Road | £ 345,000 | 0.07 KM |