Simon Blyth says ..
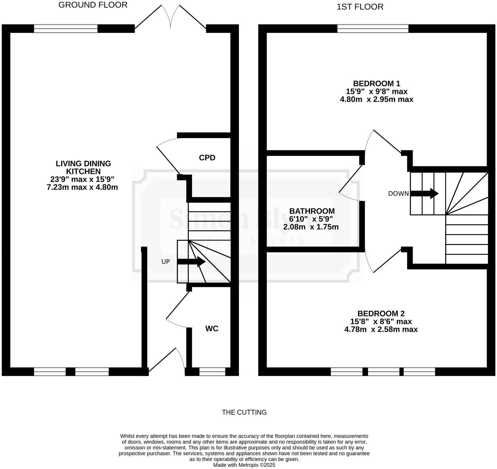
POSITIONED AT THE HEAD OF A PLEASANT CUL-DE-SAC SETTING IS THIS SUPERBLY PRESENTED, TWO DOUBLE BEDROOM MID-TERRACE HOME.
Property Oracle says ..
This terraced property in Brockholes presents a well-maintained modern living space with a garden. Its location offers a balance of rural living and accessibility to amenities. The property’s condition appears to be good, with updated kitchen and bathroom. The asking price of £250,000 seems reasonable in comparison to other properties in the area. Overall, this property offers a comfortable and convenient living environment.
Therefore, we give this property 7 / 10. *Disclaimer: This is our option and does constitute a recommendation or financial advice. Do your own research. *
- Price
- 7
- Condition
- 8
- Location
- 7
- Land
- 7
- Bedrooms
- 2
- Bathrooms
- 1
The heatmap indicates the level of crime in the area. The color of the heatmap indicates the crime severity and recency.
Metrics Year-on-Year
- Average area value
- 398,889.00 £Increased by 13.84 %
- Average area rental value
- 2,250.00 £/moIncreased by 153.09 %
- Est rental Yield
- 6.77 %Increased by 122.70 %
- Crime Rate
- 49.00 %Unchanged by 0.00 %
Agent Activity
Simon Blyth created the listing.
Nearby Schools
| Name | Type | Ofsted | Distance |
|---|---|---|---|
| Brockholes Church Of England Voluntary Controlled Junior And Infant School | Voluntary Controlled School | Outstanding | 0.64 KM |
| Holmfirth High School | Community School | Good | 0.92 KM |
| New Mill Infant School | Academy Sponsor Led | 1.31 KM | |
| New Mill Junior School | Academy Converter | 1.55 KM | |
| Thurstonland Endowed Voluntary Controlled First School | Voluntary Controlled School | Outstanding | 1.99 KM |
Images
Nearby Streets
| Name | Average Price | Average Sqft | Distance |
|---|---|---|---|
| Lancaster Lane | £ 0 | 0 | 0.00 KM |
| Elm Avenue | £ 0 | 0 | 0.00 KM |
| Woodlands Avenue | £ 0 | 0 | 0.00 KM |
| Rock Terrace | £ 0 | 0 | 0.00 KM |
| Lime Avenue | £ 0 | 0 | 0.00 KM |
Nearby Transport
| Name | NLC | TLC | Distance |
|---|---|---|---|
| Brockholes | 8429 | BHS | 0.82 KM |
| Honley | 8436 | HOY | 2.52 KM |
| Berry Brow | 8431 | BBW | 4.50 KM |
| Stocksmoor | 8451 | SSM | 4.90 KM |
| Lockwood | 8443 | LCK | 6.20 KM |
Nearby Listings
| Address | Price | Type | Score | Distance |
|---|---|---|---|---|
| The Cutting, Brockholes, HD9 | £ 250,000 | BUY | 7 / 10 | 0.00 KM |
| Oakes Avenue, Brockholes, Holmfirth, West Yorkshire, HD9 | £ 160,000 | BUY | Unknown | 0.06 KM |
| The Cutting, Brockholes, Holmfirth | £ 400,000 | BUY | 7 / 10 | 0.12 KM |
| The Cutting, Brockholes, Holmfirth, West Yorkshire, HD9 | £ 300,000 | BUY | 7 / 10 | 0.15 KM |
| New Mill Road, Brockholes, Holmfirth, HD9 | £ 450,000 | BUY | 6 / 10 | 0.18 KM |
Nearby Properties
| Address | Price | Distance |
|---|---|---|
| 67 The Cutting | £ 220,000 | 0.12 KM |
| 3 The Cutting | £ 169,950 | 0.12 KM |
| 23 The Cutting | £ 170,000 | 0.12 KM |
| 1 The Cutting | £ 210,000 | 0.12 KM |
| 27 The Cutting | £ 247,000 | 0.12 KM |