Station Road, New Longton, Preston
By Ben Rose
£ 139,950
Reviews
3 out of 5 stars
Ben Rose says ..
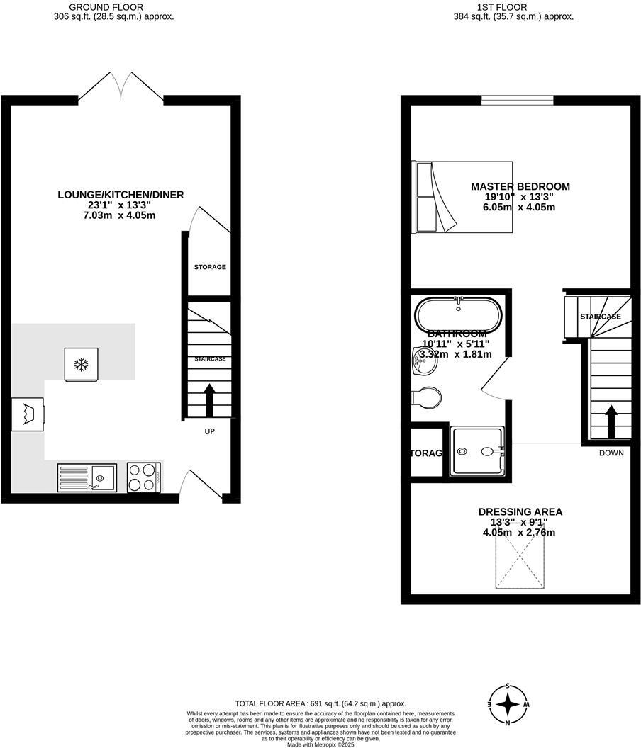
Ben Rose Estate Agents are pleased to present to market this beautifully presented one-bedroom apartment, arranged over two floors within a sought-after apartment development in the popular village of New Longton. Situated close to the heart of the village, residents can enjoy the conven...
Property Oracle says ..
This is a one-bedroom apartment located on Station Road in New Longton, Preston. The property is in good condition and benefits from its proximity to local amenities, schools, and transportation links. The apartment features a modern kitchen and bathroom, and the living spaces are well-presented. While the property offers limited land, its convenient location and overall condition make it an attractive option for first-time buyers or investors. The nearby school and transport links will be a consideration for many. The price appears competitive given the local market and the property’s features.
Therefore, we give this property 6 / 10. *Disclaimer: This is our option and does constitute a recommendation or financial advice. Do your own research. *
- Price
- 7
- Condition
- 8
- Location
- 7
- Land
- 3
- Bedrooms
- 1
- Bathrooms
- 1
- Sqft (est)
- 691.04
The heatmap indicates the level of crime in the area. The color of the heatmap indicates the crime severity and recency.
Metrics Year-on-Year
- Average area value
- 472,750.00 £Decreased by 21.88 %
- Est sale value
- 531,409.76 £Increased by 27.74 %
- Average area rental value
- 1,418.00 £/moDecreased by 35.04 %
- Est letting value
- 1,382.08 £/moUnchanged by 0.00 %
- Est rental Yield
- 3.60 %Decreased by 16.86 %
- Crime Rate
- 18.00 %Unchanged by 0.00 %
Agent Activity
Ben Rose created the listing.
Nearby Schools
| Name | Type | Ofsted | Distance |
|---|---|---|---|
| New Longton All Saints Cofe Primary School | Voluntary Aided School | Good | 0.27 KM |
| Ashbridge Independent School | Other Independent School | 1.35 KM | |
| All Hallows Catholic High School | Voluntary Aided School | Outstanding | 1.62 KM |
| Howick Church Endowed Primary School | Voluntary Controlled School | Good | 1.64 KM |
| Whitefield Primary School | Community School | Good | 2.03 KM |
Images
Nearby Streets
| Name | Average Price | Average Sqft | Distance |
|---|---|---|---|
| Churchside | £ 225,000 | 0 | 0.00 KM |
| The Cedars | £ 0 | 0 | 0.00 KM |
| Lindle Lane | £ 0 | 0 | 0.00 KM |
| Cage Lane | £ 519,983 | 0 | 0.00 KM |
| Whitebeam Close | £ 0 | 0 | 0.00 KM |
Nearby Transport
| Name | NLC | TLC | Distance |
|---|---|---|---|
| Preston (Lancs) | 2753 | PRE | 5.43 KM |
| Lostock Hall | 2689 | LOH | 6.40 KM |
| Leyland | 2710 | LEY | 7.07 KM |
| Croston | 2313 | CSO | 7.33 KM |
| Bamber Bridge | 2561 | BMB | 9.36 KM |
Nearby Listings
| Address | Price | Type | Score | Distance |
|---|---|---|---|---|
| Station Road, New Longton, Preston | £ 139,950 | BUY | 6 / 10 | 0.00 KM |
| Station Road, New Longton | £ 230,000 | BUY | 6 / 10 | 0.04 KM |
| Land To Rear Of All Saints Church, Off Spinney Close, New Longton, Preston, Lancashire | £ 1 | BUY | 7 / 10 | 0.04 KM |
| The Vinery, New Longton, Preston | £ 274,950 | BUY | 6 / 10 | 0.15 KM |
| Mill Lodge, New Longton, Preston | £ 129,950 | BUY | 5 / 10 | 0.17 KM |
Nearby Properties
| Address | Price | Distance |
|---|---|---|
| 48 Station Road | £ 427,500 | 0.04 KM |
| 28 Station Road | £ 197,500 | 0.04 KM |
| 30 Station Road | £ 77,500 | 0.05 KM |
| 52 Station Road | £ 277,500 | 0.05 KM |
| 36 Station Road | £ 295,000 | 0.05 KM |