New Mills Road, Hayfield, High Peak
By Gascoigne Halman
£ 240,000
Reviews
3 out of 5 stars
Gascoigne Halman says ..
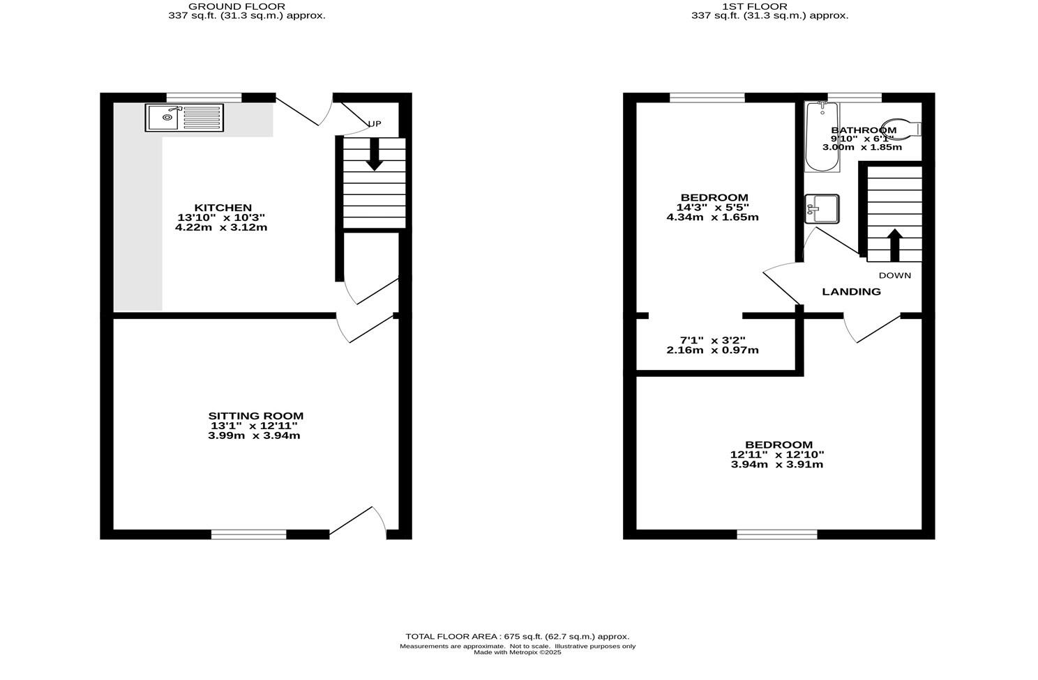
STONE MID TERRACE with the privilege of a GARDEN, VIEWS and PARKING. The property has excellent LIVING AND DINING KITCHEN SPACES and TWO BEDROOMS. Located within a popular area and close to the picturesque village of HAYFIELD.
Property Oracle says ..
This property is a two bedroom terraced house located in Hayfield, High Peak. The property benefits from being close to local amenities and transport links, with Hayfield Primary School within a short distance. While the property is in need of some modernisation, it is habitable and offers a small garden. The list price is below the average for the area, making it potentially good value for money, however, the lack of plot size information and the overall condition of the property need to be considered.
Therefore, we give this property 6 / 10. *Disclaimer: This is our option and does constitute a recommendation or financial advice. Do your own research. *
- Price
- 7
- Condition
- 6
- Location
- 7
- Land
- 4
- Bedrooms
- 2
- Bathrooms
- 1
- Sqft (est)
- 663.70
The heatmap indicates the level of crime in the area. The color of the heatmap indicates the crime severity and recency.
Metrics Year-on-Year
- Average area value
- 334,167.00 £Increased by 24.23 %
- Est sale value
- 170,570.90 £Decreased by 19.44 %
- Average area rental value
- 1,252.00 £/moIncreased by 4.33 %
- Est letting value
- 0.00 £/moDecreased by 100.00 %
- Est rental Yield
- 4.50 %Decreased by 15.89 %
- Crime Rate
- 89.00 %Unchanged by 0.00 %
Agent Activity
Gascoigne Halman created the listing.
Nearby Schools
| Name | Type | Ofsted | Distance |
|---|---|---|---|
| Hayfield Primary School | Community School | Good | 0.77 KM |
| Thornsett Primary School (High Peak Federation) | Community School | Good | 4.10 KM |
| Peak School | Academy Special Converter | 4.66 KM | |
| Chinley Primary School | Foundation School | Good | 5.01 KM |
| Buxworth Primary School | Community School | Good | 5.12 KM |
Images
Nearby Streets
| Name | Average Price | Average Sqft | Distance |
|---|---|---|---|
| Sett Valley Trail | £ 0 | 0 | 0.00 KM |
| Bluebell Close | £ 0 | 0 | 0.00 KM |
| Station Road | £ 475,000 | 0 | 0.00 KM |
| Morland Road | £ 0 | 0 | 0.00 KM |
| Park Lane | £ 0 | 0 | 0.00 KM |
Nearby Transport
| Name | NLC | TLC | Distance |
|---|---|---|---|
| Chinley | 2823 | CLY | 4.30 KM |
| Furness Vale | 2952 | FNV | 5.57 KM |
| New Mills Central | 2974 | NMC | 6.51 KM |
| Whaley Bridge | 2772 | WBR | 6.71 KM |
| New Mills Newtown | 2769 | NMN | 6.97 KM |
Nearby Listings
| Address | Price | Type | Score | Distance |
|---|---|---|---|---|
| New Mills Road, Hayfield, High Peak | £ 240,000 | BUY | 6 / 10 | 0.00 KM |
| New Mills Road, Hayfield, High Peak, Derbyshire, SK22 | £ 285,000 | BUY | 5 / 10 | 0.18 KM |
| Ridge Top Lane, Hayfield, SK22 | £ 200,000 | BUY | 6 / 10 | 0.19 KM |
| New Mills Road, Hayfield, High Peak, Derbyshire, SK22 | £ 250,000 | BUY | 6 / 10 | 0.23 KM |
| Walk Mill Road, Hayfield, SK22 | £ 605,000 | BUY | 7 / 10 | 0.23 KM |
Nearby Properties
| Address | Price | Distance |
|---|---|---|
| 9 Meadows Road | £ 255,000 | 0.12 KM |
| 2 Meadows Road | £ 245,000 | 0.12 KM |
| 14 Meadows Road | £ 205,000 | 0.12 KM |
| 1 Meadows Road | £ 200,000 | 0.12 KM |
| 10 Meadows Road | £ 225,000 | 0.12 KM |