Lynwood Road, Blackburn
By Keenans Estate Agents
£ 199,950
Reviews
2 out of 5 stars
Keenans Estate Agents says ..
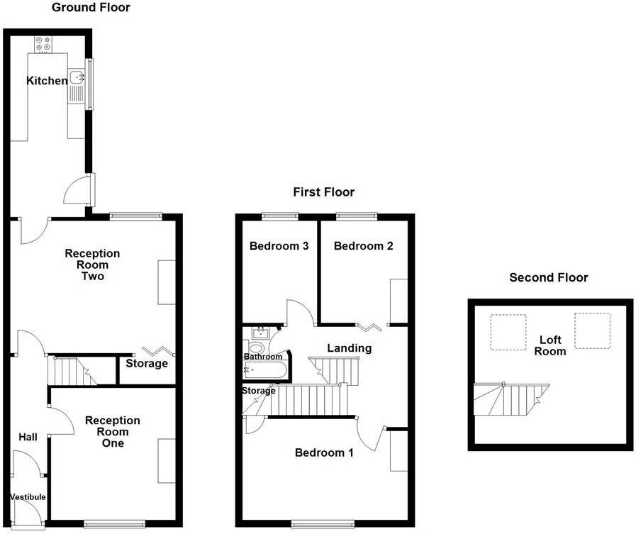
A FANTASTIC FAMILY HOME Located in the desirable area of Lynwood Road, Blackburn, this charming three-bedroom end terrace house presents an exceptional opportunity for families seeking a modern and stylish home. Recently fully renovated, the property boasts a versatile loft conversion, ...
Property Oracle says ..
This end-of-terrace property on Lynwood Road, Blackburn, offers three bedrooms and one bathroom within 960 sqft of living space. Marketed by Keenans Estate Agents, the house is listed at £199,950. While the interior showcases modern touches in some rooms, the kitchen could benefit from updating. The property’s location provides access to nearby schools and transportation, though the quality of some schools may be a concern. With a limited amount of land, this property may appeal to buyers seeking a low-maintenance urban lifestyle. The price is on the higher end compared to the average for the area, but it aligns with similar properties in the vicinity.
Therefore, we give this property 5 / 10. *Disclaimer: This is our option and does constitute a recommendation or financial advice. Do your own research. *
- Price
- 6
- Condition
- 7
- Location
- 6
- Land
- 3
- Bedrooms
- 3
- Bathrooms
- 1
- Sqft (est)
- 960.00
The heatmap indicates the level of crime in the area. The color of the heatmap indicates the crime severity and recency.
Metrics Year-on-Year
- Crime Rate
- 11.00 %Unchanged by 0.00 %
Agent Activity
Keenans Estate Agents created the listing.
Nearby Schools
| Name | Type | Ofsted | Distance |
|---|---|---|---|
| St Silas'S Cofe Primary School | Academy Sponsor Led | 0.28 KM | |
| Sacred Heart Roman Catholic Primary School Blackburn | Voluntary Aided School | Requires improvement | 0.28 KM |
| Dar Ul Madinah | Other Independent School | Inadequate | 0.55 KM |
| Wensley Fold Children'S Centre | Children's Centre | 0.72 KM | |
| Wensley Fold Cofe Primary Academy | Academy Converter | 0.78 KM |
Images
Nearby Streets
| Name | Average Price | Average Sqft | Distance |
|---|---|---|---|
| Merlin Road | £ 0 | 0 | 0.00 KM |
| Granville Road | £ 0 | 0 | 0.00 KM |
| Billinge Close | £ 320,000 | 0 | 0.00 KM |
| Leamington Road | £ 210,000 | 0 | 0.00 KM |
| Granville Road | £ 210,000 | 0 | 0.00 KM |
Nearby Transport
| Name | NLC | TLC | Distance |
|---|---|---|---|
| Mill Hill (Lancs) | 2750 | MLH | 2.17 KM |
| Cherry Tree | 2573 | CYT | 2.79 KM |
| Blackburn | 2737 | BBN | 3.06 KM |
| Ramsgreave And Wilpshire | 2734 | RGW | 4.13 KM |
| Pleasington | 2752 | PLS | 5.00 KM |
Nearby Listings
| Address | Price | Type | Score | Distance |
|---|---|---|---|---|
| Lynwood Road, Blackburn | £ 199,950 | BUY | 5 / 10 | 0.00 KM |
| Leamington Road, Revidge, Blackburn, Lancashire, BB2 | £ 90,000 | BUY | Unknown | 0.08 KM |
| Lynwood Road, Blackburn | £ 160,000 | BUY | 4 / 10 | 0.08 KM |
| Beardwood Brow, Blackburn, BB2 | £ 140,000 | BUY | 6 / 10 | 0.09 KM |
| Revidge Road, Blackburn | £ 99,950 | BUY | 6 / 10 | 0.10 KM |
Nearby Properties
| Address | Price | Distance |
|---|---|---|
| 116 Lynwood Road | £ 125,000 | 0.07 KM |
| 103 Lynwood Road | £ 140,000 | 0.07 KM |
| 85 Lynwood Road | £ 117,000 | 0.07 KM |
| 105 Lynwood Road | £ 110,000 | 0.07 KM |
| 97 Lynwood Road | £ 45,000 | 0.07 KM |