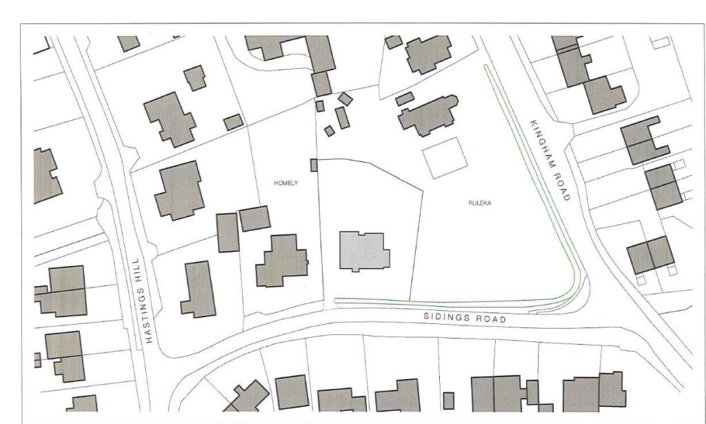
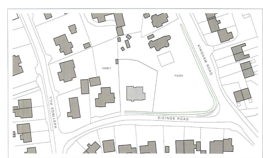
Sidings Road, Churchill, Chipping Norton, Oxfordshire, OX7
By Knight Frank
£ 700,000
Reviews
2 out of 5 stars
Knight Frank says ..
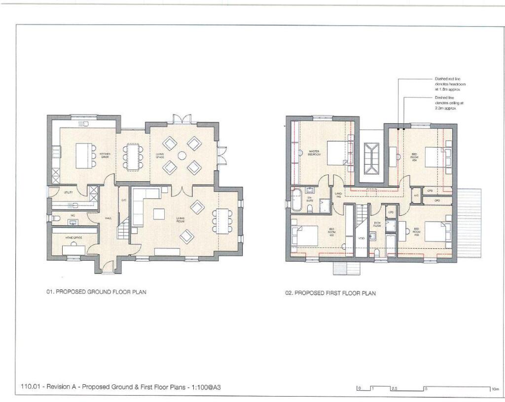
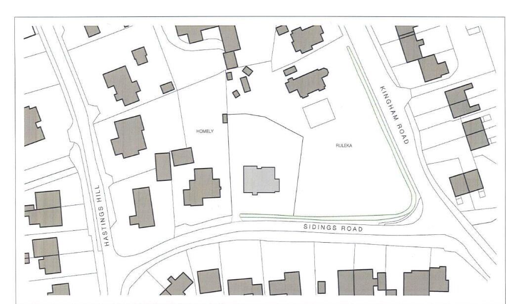
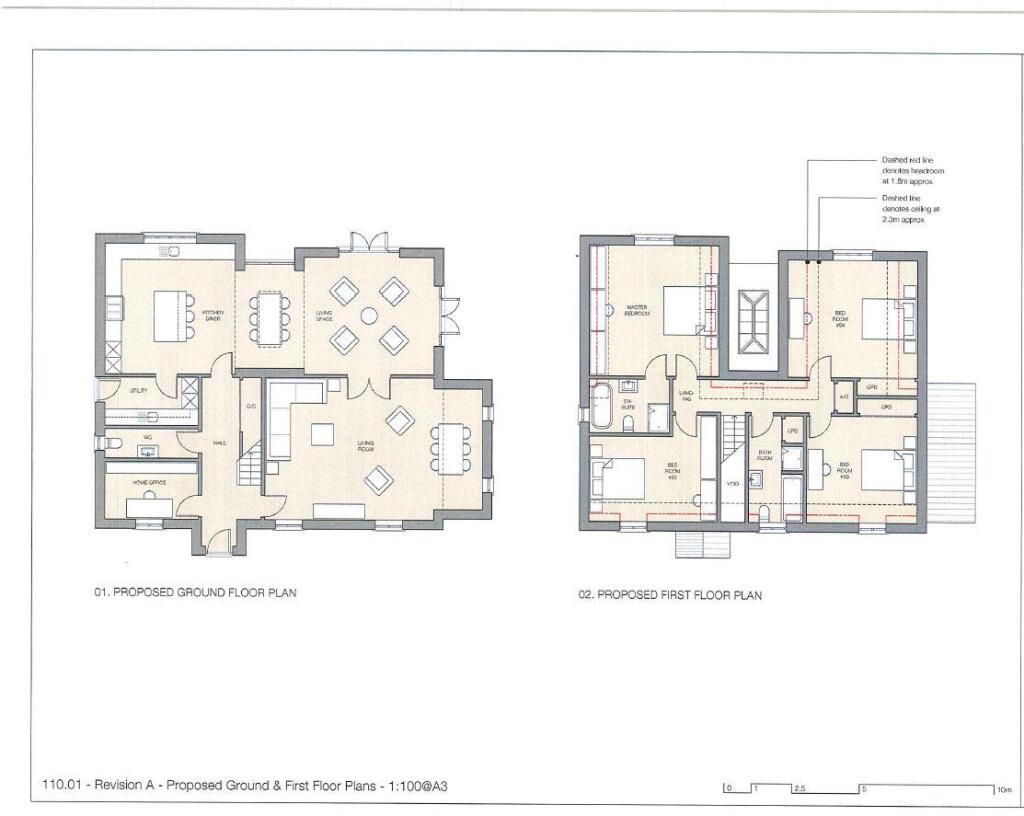
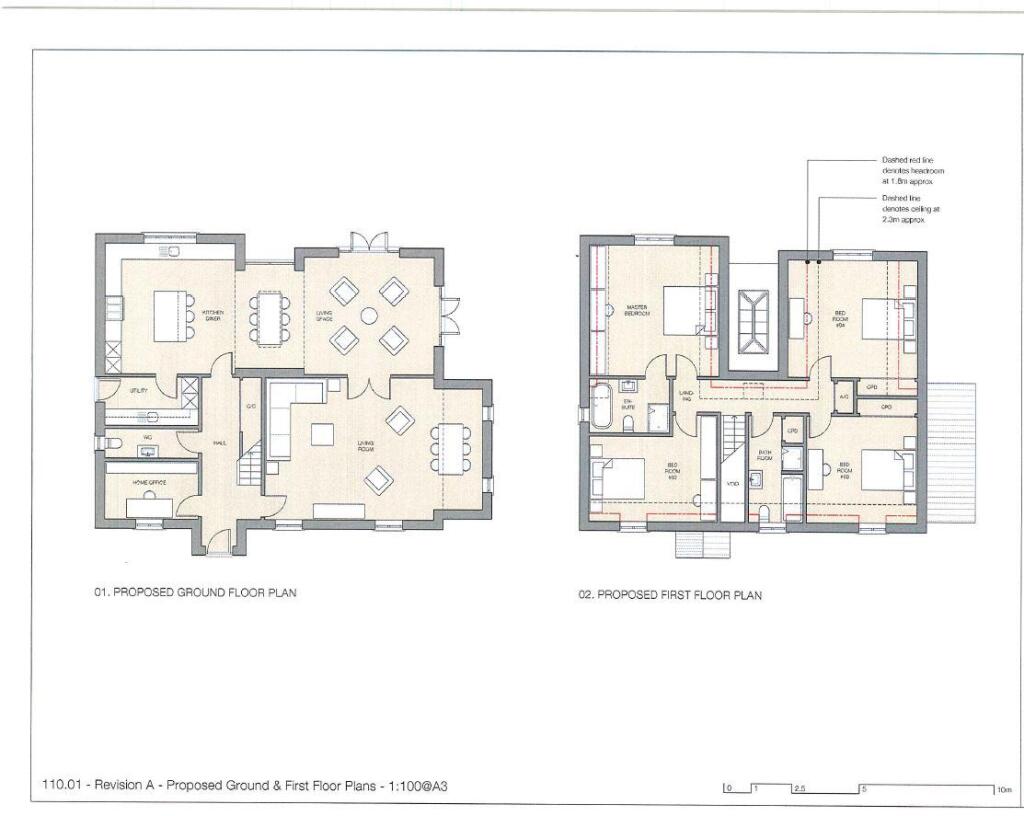
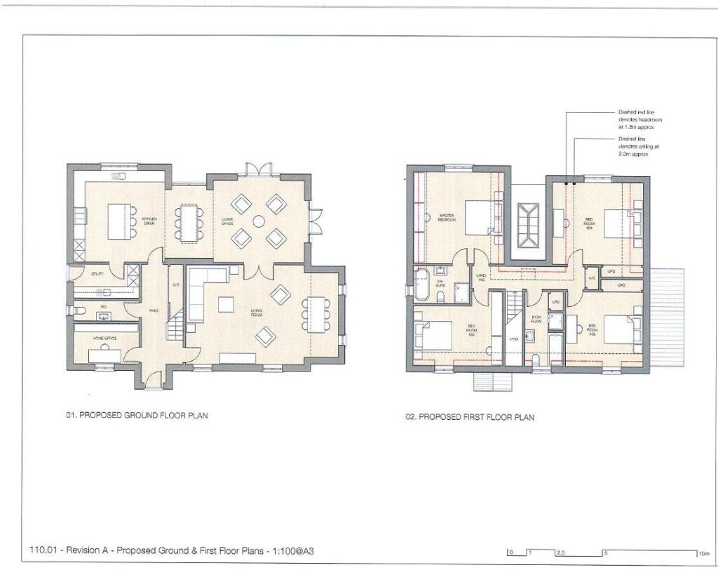
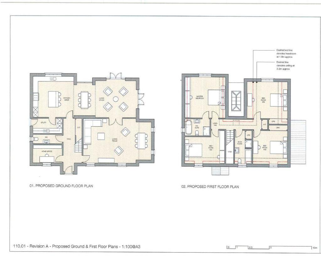
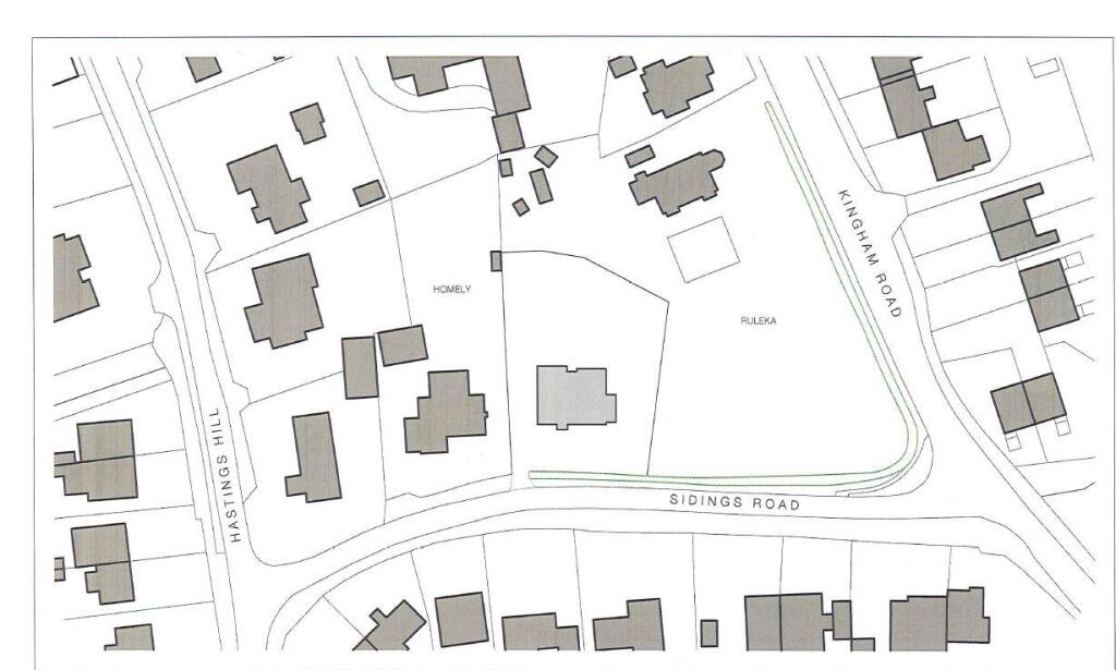
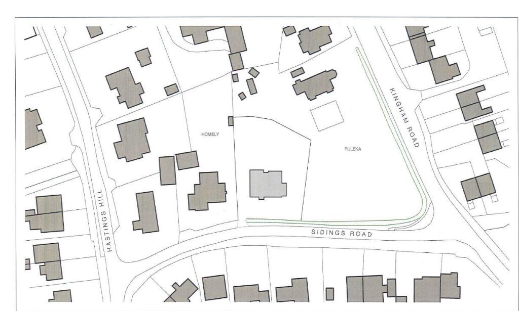
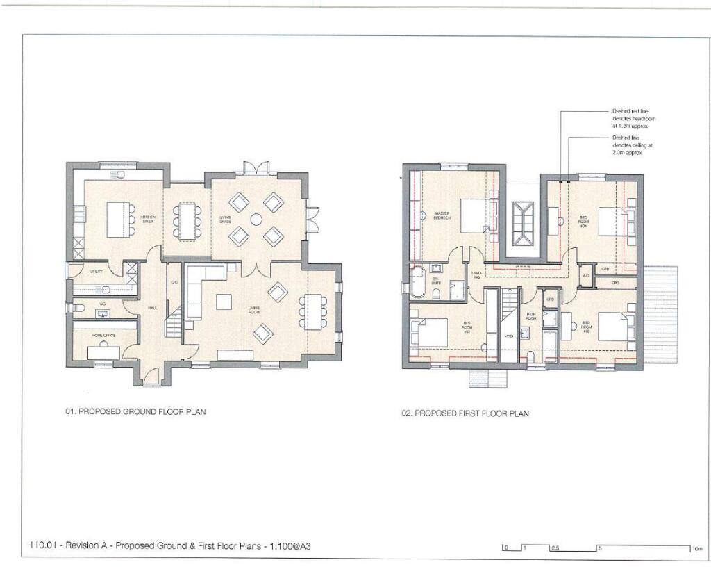
An exceptional opportunity to build a detached 4 bedroom stone house in this highly sought after village Approved plans, designed by Tom Gristwood Architects to provide a unique opportunity to create a wonderful new home. The Cotswold stone and glass build will provide a traditional stone proper...
Property Oracle says ..
This listing from Knight Frank presents an opportunity to construct a detached four-bedroom stone house in the desirable village of Churchill, Oxfordshire. The approved plans, designed by Tom Gristwood Architects, indicate a well-considered design that aims to blend traditional Cotswold style with contemporary living. The location itself benefits from its rural charm and the amenities offered in the nearby town of Chipping Norton, as well as the convenience of having Kingham train station providing access to other parts of the country. The sizable plot provides a substantial area for the house and garden, making it a potentially attractive proposition for buyers seeking a new build in a sought-after location. However, the lack of specific details regarding the final size of the house and the absence of existing structures limits a full evaluation. The relatively high price in this location is largely driven by demand and the prestige of the area. Potential buyers should carefully consider the final construction costs in addition to the purchase price before making an informed decision. The existing surrounding properties, while varied in type and price, highlight the demand and value of the Churchill area. The provided maps and plans provide a clear picture of the location and design but buyers would need to investigate further details of the build with Knight Frank to conduct a comprehensive due diligence and understand all associated costs.
Therefore, we give this property 5 / 10. *Disclaimer: This is our option and does constitute a recommendation or financial advice. Do your own research. *
- Price
- 7
- Condition
- 1
- Location
- 7
- Land
- 6
- Bedrooms
- 0
- Bathrooms
- 0
The heatmap indicates the level of crime in the area. The color of the heatmap indicates the crime severity and recency.
Metrics Year-on-Year
- Average area value
- 270,000.00 £Increased by 41.58 %
- Average area rental value
- 936.00 £/moDecreased by 3.51 %
- Est rental Yield
- 4.16 %Decreased by 31.80 %
- Crime Rate
- 63.00 %Unchanged by 0.00 %
Agent Activity
Knight Frank created the listing.
Nearby Schools
| Name | Type | Ofsted | Distance |
|---|---|---|---|
| Kingham Hill School | Other Independent School | 2.67 KM | |
| Kingham Primary School | Community School | Outstanding | 2.86 KM |
| Bledington Primary School | Community School | Outstanding | 5.47 KM |
| St Mary'S Church Of England (Aided) Primary School, Chipping Norton | Voluntary Aided School | Good | 5.81 KM |
| The Ace Centre Nursery School | Local Authority Nursery School | Outstanding | 5.96 KM |
Images
Nearby Streets
| Name | Average Price | Average Sqft | Distance |
|---|---|---|---|
| Lowfield Cottages | £ 0 | 0 | 0.00 KM |
Nearby Transport
| Name | NLC | TLC | Distance |
|---|---|---|---|
| Kingham | 3008 | KGM | 4.17 KM |
| Shipton | 3009 | SIP | 5.73 KM |
| Ascott-Under-Wychwood | 3003 | AUW | 6.46 KM |
Nearby Listings
| Address | Price | Type | Score | Distance |
|---|---|---|---|---|
| Sidings Road, Churchill, Chipping Norton, Oxfordshire, OX7 | £ 700,000 | BUY | 5 / 10 | 0.00 KM |
| Kingham Road, Churchill, Chipping Norton, Oxfordshire, OX7 | £ 795,000 | BUY | Unknown | 0.28 KM |
| Kingham Road, Churchill, Chipping Norton, Oxfordshire, OX7 | £ 800,000 | BUY | 7 / 10 | 0.32 KM |
| Hastings Hill, Churchill, OX7 | £ 625,000 | BUY | 7 / 10 | 0.43 KM |
| Hackers Lane, Churchill | £ 775,000 | BUY | 8 / 10 | 0.46 KM |
Nearby Properties
| Address | Price | Distance |
|---|---|---|
| 4 Meadow Place | £ 85,000 | 0.11 KM |
| 8 Meadow Place | £ 300,000 | 0.11 KM |
| 10 Meadow Place | £ 235,000 | 0.11 KM |
| The Cottage | £ 295,000 | 0.15 KM |
| Old Woolmans | £ 1,250,000 | 0.15 KM |