New Haw, Surrey, KT15
Hodders logo

New Haw, Surrey, KT15

By Hodders

£ 675,000

Reviews

3 out of 5 stars

Hodders says ..

Welcome to this stunning and beautifully presented detached bungalow on the ever-popular Woodham Lane — a true gem offering flexible modern living all on one level. With its contemporary design, spacious layout, and high-quality finish throughout, this home is ready to move straight into. S...

Property Oracle says ..

This four-bedroom bungalow in New Haw, Surrey, presents a modern living space with a well-maintained garden. The property benefits from its proximity to local schools and transportation links, making it an attractive option for families and commuters alike. The interior has been recently renovated to a high standard.

Therefore, we give this property 7 / 10. *Disclaimer: This is our option and does constitute a recommendation or financial advice. Do your own research. *

Price
6
Condition
9
Location
8
Land
7
Bedrooms
4
Bathrooms
2
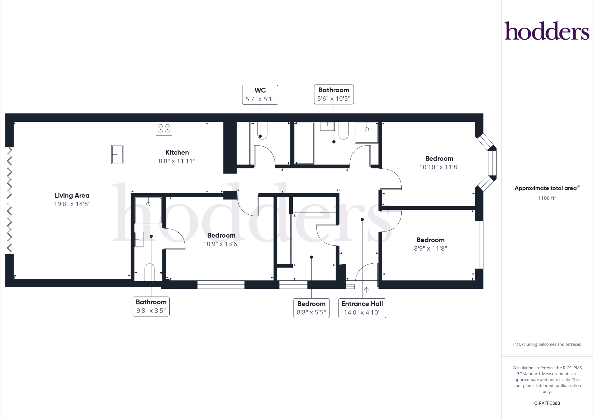
Sqft (est)
1,106.00

The heatmap indicates the level of crime in the area. The color of the heatmap indicates the crime severity and recency.

Metrics Year-on-Year

Average area value
497,268.00 £
Increased by 4.06 %
from 477,886.00 £
Est sale value
557,424.00 £
Increased by 51.81 %
from 367,192.00 £
Average area rental value
2,350.00 £/mo
Increased by 60.19 %
from 1,467.00 £/mo
Est letting value
2,212.00 £/mo
Increased by 100.00 %
from 1,106.00 £/mo
Est rental Yield
5.67 %
Increased by 54.08 %
from 3.68 %
Crime Rate
10.00 %
Unchanged by 0.00 %
from 10.00 %

Agent Activity

  • Hodders created the listing.

Nearby Schools

NameTypeOfstedDistance
The Grange Community Infant SchoolCommunity SchoolGood0.91 KM
The Poplars Sure Start Children'S CentreChildren's Centre0.91 KM
New Haw Community Junior SchoolAcademy Converter1.01 KM
West Byfleet Infant SchoolCommunity SchoolOutstanding1.06 KM
West Byfleet Junior SchoolCommunity SchoolGood1.06 KM

Images

Picture No. 05 Picture No. 21 Picture No. 02 Picture No. 13 Picture No. 08 Picture No. 23 Picture No. 25 Picture No. 35 Picture No. 03 Picture No. 29 Picture No. 30 Picture No. 12 Picture No. 06 Picture No. 07 Picture No. 10 Picture No. 11 Picture No. 14 Picture No. 15 Picture No. 17 Picture No. 18 Picture No. 19 Picture No. 20 Picture No. 24 Picture No. 22 Picture No. 26 Picture No. 27 Picture No. 04 Picture No. 28

Nearby Streets

NameAverage PriceAverage SqftDistance
Eden Close £ 000.00 KM
Heatherfields £ 000.00 KM
Braeside £ 000.00 KM
The Broadway £ 315,00000.00 KM
Briar Close £ 1,200,00000.00 KM

Nearby Transport

NameNLCTLCDistance
West Byfleet5684WBY1.42 KM
Byfleet And New Haw5689BFN1.82 KM
Addlestone5550ASN3.01 KM
Chertsey5553CHY4.37 KM
Weybridge5577WYB4.64 KM

Nearby Listings

AddressPriceTypeScoreDistance
New Haw, Surrey, KT15 £ 675,000BUY7 / 100.00 KM
Woodham Lane, New Haw £ 650,000BUY7 / 100.04 KM
The Woodhams, Grange Road, New Haw, KT15 £ 650,000BUYUnknown0.06 KM
Grange Road, New Haw, KT15 £ 600,000BUYUnknown0.07 KM
Pinewood Grove, New Haw, Addlestone, Surrey, KT15 £ 500,000BUY6 / 100.08 KM

Nearby Properties

AddressPriceDistance
199 Woodham Lane £ 440,0000.02 KM
197 Woodham Lane £ 485,0000.02 KM
227 Woodham Lane £ 310,0000.02 KM
219 Woodham Lane £ 297,3200.02 KM
201 Woodham Lane £ 515,0000.02 KM