Ash Bank Road, Stoke-On-Trent, ST9
By Nicholas Humphreys
£ 170,000
Reviews
2 out of 5 stars
Nicholas Humphreys says ..
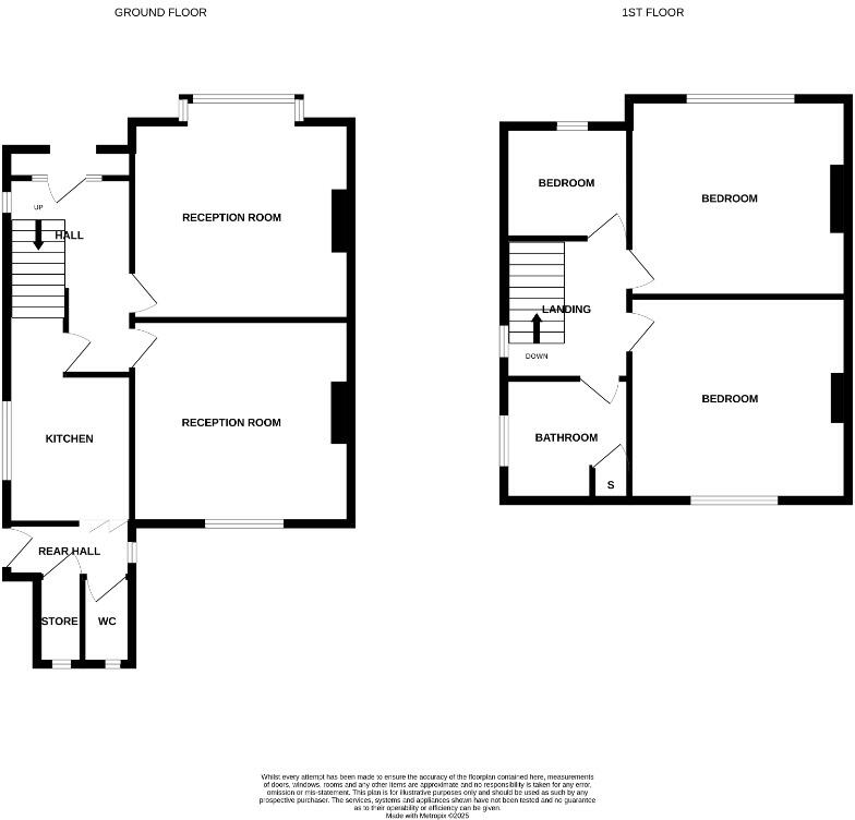
Nicholas Humphreys present this semi detached property located in the popular area of Werrington, Stoke-on-Trent. In need of modernisation, this traditional property has family home potential.The accommodation includes entrance hall, two reception rooms kitchen, rear hall, ground ...
Property Oracle says ..
This three-bedroom, one-bathroom house in Werrington, Stoke-on-Trent, is listed at £170,000. The property’s age is evident from the interior photographs. The kitchen and bathroom appear outdated and require modernization. The overall condition of the property needs improvement. Several rooms shown are cluttered and require cleaning. The property includes a modest garden, which is overgrown and will require effort to maintain. The surrounding area seems residential, with Werrington Primary School relatively close. However, other amenities and secondary schools are at a distance. The lack of comparative data on nearby properties makes it challenging to ascertain the accuracy of the list price in relation to comparable properties in the area. Potential buyers should be prepared for substantial renovation costs. A thorough survey and assessment of required repairs should be undertaken before purchasing this property. The distance to nearby transport links is a factor that should be considered by potential buyers. Overall, this property is presented as a fixer-upper with potential for improvement, but it requires careful consideration of costs and the location’s suitability. The absence of detailed information on nearby properties and schools hinders a more comprehensive evaluation.
Therefore, we give this property 4 / 10. *Disclaimer: This is our option and does constitute a recommendation or financial advice. Do your own research. *
- Price
- 6
- Condition
- 4
- Location
- 4
- Land
- 3
- Bedrooms
- 3
- Bathrooms
- 1
- Sqft (est)
- 1,100.00
The heatmap indicates the level of crime in the area. The color of the heatmap indicates the crime severity and recency.
Metrics Year-on-Year
- Average area value
- 260,000.00 £Increased by 0.96 %
- Est sale value
- 343,200.00 £Increased by 13.87 %
- Average area rental value
- 1,035.00 £/moDecreased by 3.36 %
- Est letting value
- 1,100.00 £/moUnchanged by 0.00 %
- Est rental Yield
- 4.78 %Decreased by 4.21 %
- Crime Rate
- 31.00 %Unchanged by 0.00 %
Agent Activity
Nicholas Humphreys created the listing.
Nearby Schools
| Name | Type | Ofsted | Distance |
|---|---|---|---|
| Werrington Primary School | Academy Converter | 0.29 KM | |
| Moorside High School | Academy Converter | 2.40 KM | |
| Discovery Academy | Academy Sponsor Led | Good | 3.23 KM |
| Weston Infant Academy | Academy Converter | 3.27 KM | |
| Maple Court Academy | Academy Sponsor Led | Requires improvement | 3.48 KM |
Images
Nearby Streets
| Name | Average Price | Average Sqft | Distance |
|---|---|---|---|
| Brentwood Grove | £ 0 | 0 | 0.00 KM |
| Stone House Crescent | £ 150,000 | 0 | 0.00 KM |
| Moorland Close | £ 265,000 | 0 | 0.00 KM |
| Draw-Well Path | £ 0 | 0 | 0.00 KM |
| Uplands Avenue | £ 320,000 | 0 | 0.00 KM |
Nearby Transport
| Name | NLC | TLC | Distance |
|---|---|---|---|
| Longton | 1306 | LGN | 6.16 KM |
| Blythe Bridge | 1282 | BYB | 6.78 KM |
| Stoke-On-Trent | 1314 | SOT | 9.91 KM |
Nearby Listings
| Address | Price | Type | Score | Distance |
|---|---|---|---|---|
| Ash Bank Road, Stoke-On-Trent, ST9 | £ 170,000 | BUY | 4 / 10 | 0.00 KM |
| Ash Bank Road, Werrington, Staffordshire | £ 460,000 | BUY | 7 / 10 | 0.02 KM |
| Salters Close, Werrington, Stoke-On-Trent | £ 165,000 | BUY | Unknown | 0.11 KM |
| Stonehouse Road, Stoke On Trent | £ 220,000 | BUY | Unknown | 0.11 KM |
| Stonehouse Road, Stoke on Trent | £ 25,000 | BUY | 3 / 10 | 0.12 KM |
Nearby Properties
| Address | Price | Distance |
|---|---|---|
| 400 Ash Bank Road | £ 110,000 | 0.00 KM |
| 361 Ash Bank Road | £ 177,500 | 0.00 KM |
| 343 Ash Bank Road | £ 155,000 | 0.00 KM |
| 357 Ash Bank Road | £ 198,000 | 0.00 KM |
| 362 Ash Bank Road | £ 123,750 | 0.00 KM |