DA
Fairview Road, Halesworth
By David Burr Estate Agents
£ 550,000
Reviews
3 out of 5 stars
David Burr Estate Agents says ..
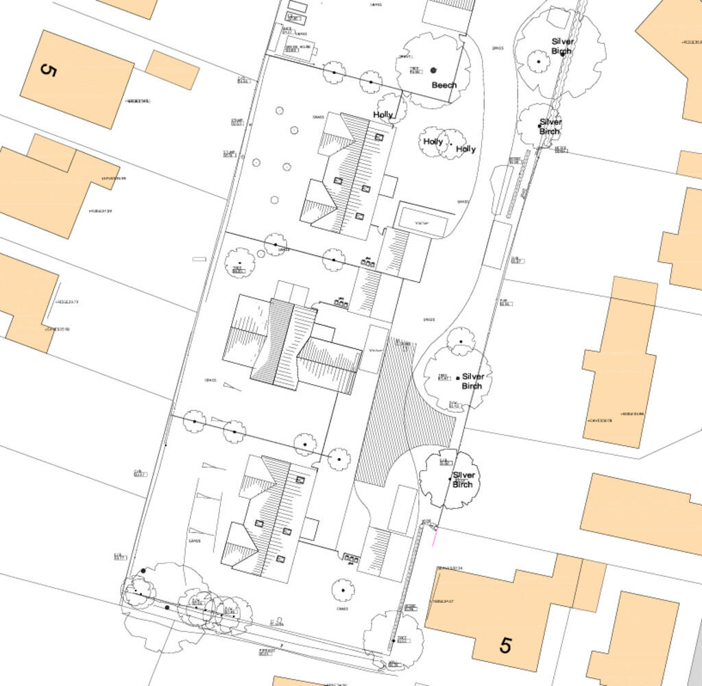
A prime development opportunity located in the heart of the highly sought-after village of Halesworth. Planning permission was granted in 2023 for the construction of three detached dwellings on a parcel of land extending to approximately 0.6 acres (subject to survey). Reference: DC/22/3020/AME.
Property Oracle says ..
Therefore, we give this property 7 / 10. *Disclaimer: This is our option and does constitute a recommendation or financial advice. Do your own research. *
- Price
- 6
- Condition
- 0
- Location
- 7
- Land
- 8
- Bedrooms
- 0
- Bathrooms
- 0
The heatmap indicates the level of crime in the area. The color of the heatmap indicates the crime severity and recency.
Metrics Year-on-Year
- Average area value
- 443,333.00 £Increased by 30.05 %
- Average area rental value
- 1,033.00 £/moIncreased by 16.33 %
- Est rental Yield
- 2.80 %Decreased by 10.54 %
- Crime Rate
- 0.00 %
from 340,889.00 £
from 888.00 £/mo
from 3.13 %
from 0.00 %
Agent Activity
David Burr Estate Agents created the listing.
Nearby Schools
| Name | Type | Ofsted | Distance |
|---|---|---|---|
| Edgar Sewter Community Primary School | Academy Converter | Requires improvement | 1.35 KM |
| Reydon & Southwold Children'S Centre | Children's Centre | 1.41 KM | |
| Dragonflies Children'S Centre | Children's Centre | 1.41 KM | |
| Holton St Peter Community Primary School | Academy Converter | Good | 1.47 KM |
| Bramfield Church Of England Primary School | Academy Sponsor Led | Good | 4.77 KM |
Images
Nearby Streets
| Name | Average Price | Average Sqft | Distance |
|---|---|---|---|
| Sparrowhawk Road | £ 0 | 0 | 0.00 KM |
| Buxton Way | £ 370,000 | 0 | 0.00 KM |
| Pine Tree Close | £ 160,000 | 0 | 0.00 KM |
| Lodge Road | £ 275,000 | 0 | 0.00 KM |
| Saint Peter's Path | £ 240,000 | 0 | 0.00 KM |
Nearby Transport
| Name | NLC | TLC | Distance |
|---|---|---|---|
| Halesworth | 7266 | HAS | 1.06 KM |
| Brampton (Suffolk) | 7259 | BRP | 5.90 KM |
| Darsham | 7211 | DSM | 8.80 KM |
Nearby Listings
| Address | Price | Type | Score | Distance |
|---|---|---|---|---|
| Fairview Road, Halesworth | £ 550,000 | BUY | 7 / 10 | 0.00 KM |
| Douglas Close, Halesworth | £ 425,000 | BUY | Unknown | 0.05 KM |
| Greenbank, Halesworth, Suffolk, IP19 | £ 350,000 | BUY | 7 / 10 | 0.11 KM |
| Warwick Avenue, Halesworth | £ 290,000 | BUY | 6 / 10 | 0.13 KM |
| Green Bank, Halesworth | £ 375,000 | BUY | 6 / 10 | 0.14 KM |
Nearby Properties
| Address | Price | Distance |
|---|---|---|
| 7 Warwick Avenue | £ 209,000 | 0.14 KM |
| 14 Warwick Avenue | £ 55,000 | 0.14 KM |
| 6 Warwick Avenue | £ 180,000 | 0.14 KM |
| 13 Warwick Avenue | £ 280,000 | 0.14 KM |
| 5 Warwick Avenue | £ 325,000 | 0.14 KM |