Springfield Way, Millhouse Green, Sheffield, S36 9AH
By Mallinson and Co
£ 495,000
Reviews
3 out of 5 stars
Mallinson and Co says ..
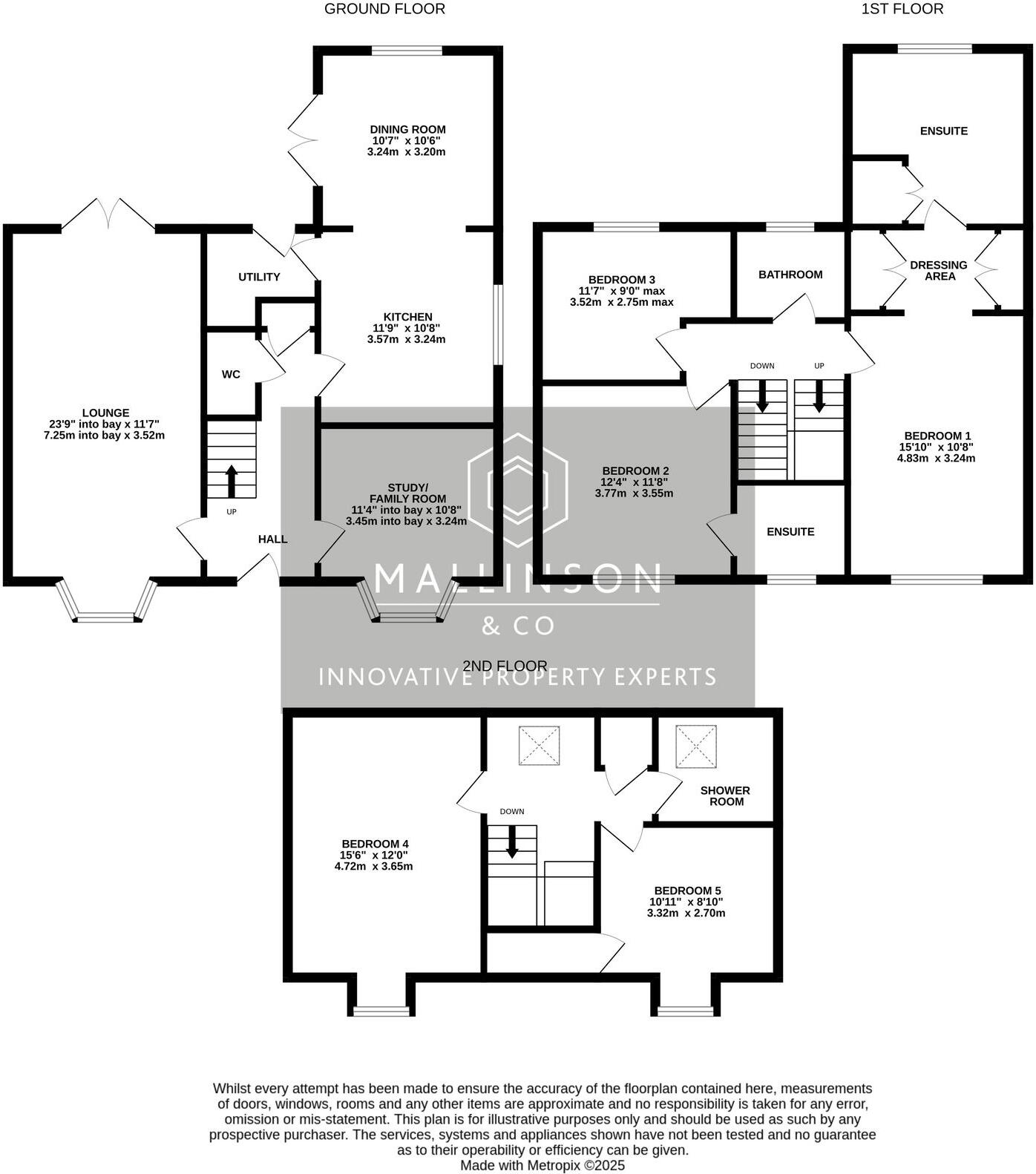
TAKE A LOOK AT THIS … AN OUTSTANDING FAMILY HOME OFFERING STUNNING ACCOMMODATION OVER THREE LEVELS IS THIS BEAUTIFULLY APPOINTED, FIVE BEDROOM DETACHED HOUSE, FEATURING AMPLE OFF STREET PARKING AND A DOUBLE GARAGE WHICH HAS BEEN CONVERTED TO AN ANNEX WITH AN OPEN SHOWER ROOM. THE PROPER...
Property Oracle says ..
This property is a 5 bedroom, 4 bathroom house located in Millhouse Green, Sheffield. The property is in good condition and benefits from a garden. Millhouse Green is a desirable village location close to good schools and transport links. The asking price is within the range of similar properties in the area, making it a reasonable price.
Therefore, we give this property 7 / 10. *Disclaimer: This is our option and does constitute a recommendation or financial advice. Do your own research. *
- Price
- 7
- Condition
- 8
- Location
- 9
- Land
- 7
- Bedrooms
- 5
- Bathrooms
- 4
- Sqft (est)
- 1,554.10
The heatmap indicates the level of crime in the area. The color of the heatmap indicates the crime severity and recency.
Metrics Year-on-Year
- Average area value
- 172,500.00 £Decreased by 41.14 %
- Est sale value
- 422,715.20 £Increased by 22.52 %
- Average area rental value
- 825.00 £/moDecreased by 3.73 %
- Est letting value
- 1,554.10 £/mo
- Est rental Yield
- 5.74 %Increased by 63.53 %
- Crime Rate
- 117.00 %Unchanged by 0.00 %
Agent Activity
Mallinson and Co created the listing.
Nearby Schools
| Name | Type | Ofsted | Distance |
|---|---|---|---|
| Millhouse Primary School | Community School | Good | 0.66 KM |
| Thurlstone Primary School | Community School | Outstanding | 1.75 KM |
| Penistone Grammar School | Community School | Good | 3.49 KM |
| Penistone St John'S Voluntary Aided Primary School | Voluntary Aided School | Outstanding | 3.81 KM |
| Denby Church Of England Voluntary Aided First School | Voluntary Aided School | Good | 4.00 KM |
Images
Nearby Streets
| Name | Average Price | Average Sqft | Distance |
|---|---|---|---|
| Birks Cottages | £ 0 | 0 | 0.00 KM |
| Kennedy Close | £ 335,000 | 0 | 0.00 KM |
| Field Lane | £ 0 | 0 | 0.00 KM |
| Savile Lane | £ 0 | 0 | 0.00 KM |
| Sandringham Close | £ 0 | 0 | 0.00 KM |
Nearby Transport
| Name | NLC | TLC | Distance |
|---|---|---|---|
| Penistone | 6634 | PNS | 4.81 KM |
| Denby Dale | 8432 | DBD | 5.35 KM |
| Shepley | 8448 | SPY | 8.32 KM |
| Stocksmoor | 8451 | SSM | 9.97 KM |
Nearby Listings
| Address | Price | Type | Score | Distance |
|---|---|---|---|---|
| Springfield Way, Millhouse Green, Sheffield, S36 9AH | £ 495,000 | BUY | 7 / 10 | 0.00 KM |
| Ashtree Gardens, Millhouse Green, Sheffield, S36 9AD | £ 225,000 | BUY | 7 / 10 | 0.07 KM |
| Low Rocha Grove, Millhouse Green, S36 9AN | £ 379,950 | BUY | 6 / 10 | 0.11 KM |
| Copperas Close, Millhouse Green, Sheffield, S36 9SA | £ 85,000 | BUY | Unknown | 0.20 KM |
| Copperas Close, Millhouse Green | £ 275,000 | BUY | 7 / 10 | 0.22 KM |
Nearby Properties
| Address | Price | Distance |
|---|---|---|
| 3 Ashtree Gardens | £ 207,500 | 0.08 KM |
| 7 Ashtree Gardens | £ 172,000 | 0.08 KM |
| 27 Ashtree Gardens | £ 149,995 | 0.08 KM |
| 22 Ashtree Gardens | £ 188,000 | 0.08 KM |
| 14 Ashtree Gardens | £ 136,695 | 0.08 KM |