Beulah Road, Thornton Heath, CR7 8JF
By eXp UK
£ 230,000
Reviews
3 out of 5 stars
eXp UK says ..
Nestled in the vibrant Thornton Heath, this exceptional one-bedroom ground floor garden flat presents a rare opportunity for first-time buyers and astute investors alike. Boasting a substantial private south-facing garden, perfect for outdoor relaxation and entertaining, this property offers a...
Property Oracle says ..
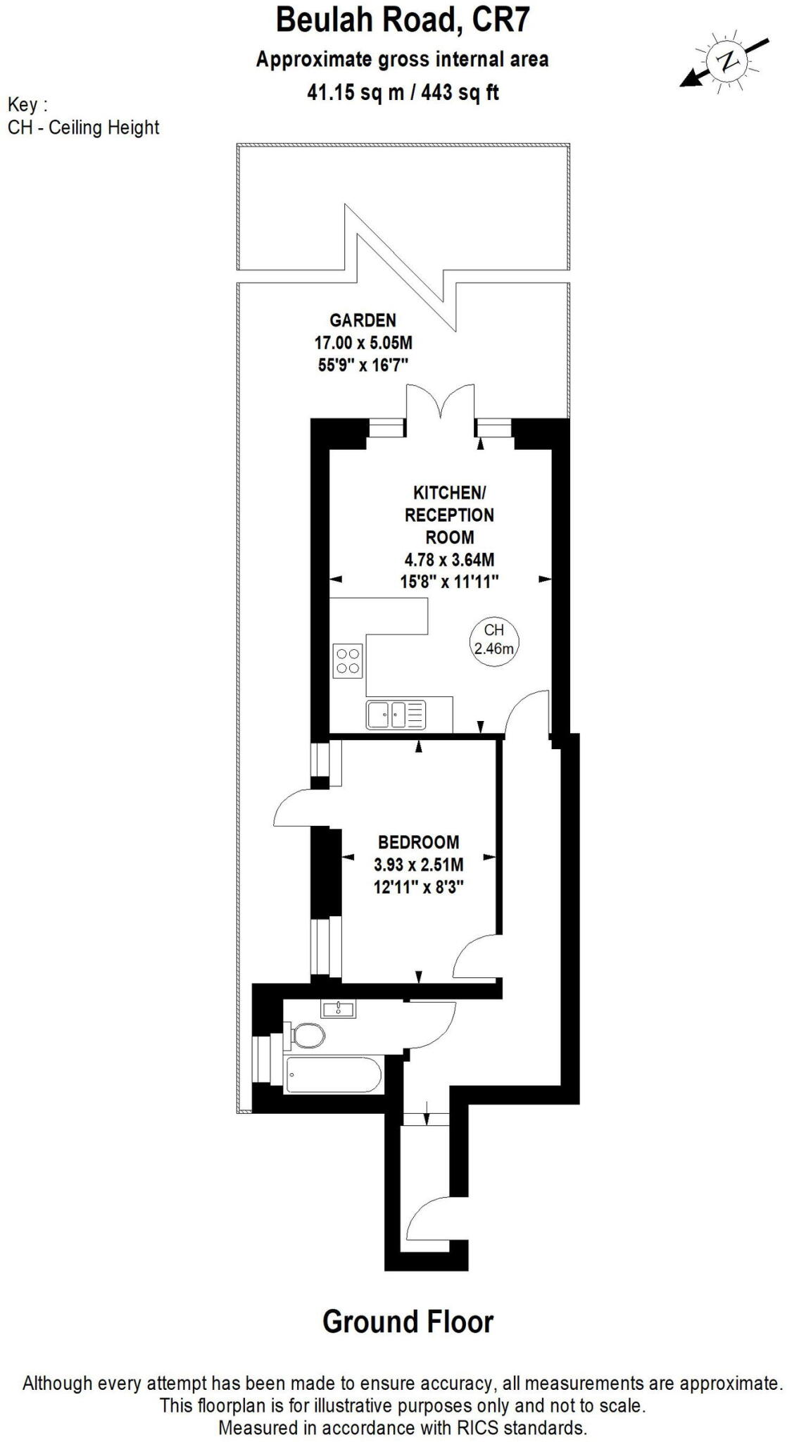
The property is a 1-bedroom flat located on Beulah Road in Thornton Heath, Croydon. It’s a relatively small property with 403.55 sqft of living space and a 443 sqft plot. The property benefits from a private garden, which is a desirable feature in a busy urban area. The flat appears to be in good condition, with a recently updated kitchen and bathroom. The interior design is modern and well-presented.
The location is positive, with Beulah Junior School and Beulah Infants’ School both within a short walking distance. Thornton Heath train station is also nearby, providing convenient access to central London. The presence of several other schools nearby, including David Livingstone Academy (rated Outstanding by Ofsted), further enhances the location’s appeal.
Considering the average price per sqft in the area is £437, and this property is listed at £230,000, the price seems reasonable. However, the average property price in the area is significantly higher (£397,171), suggesting that this property may be undervalued, potentially due to its smaller size. Nearby comparable properties (though sqft data is missing for these) support this, with some similar properties selling for more and some less. The lack of sqft data for nearby properties makes a precise comparison challenging.
The property’s modern condition, desirable garden, and convenient location near good schools and transport links are key strengths. The relatively low price compared to the area average could make it attractive to first-time buyers or investors.
Therefore, we give this property 7 / 10. *Disclaimer: This is our option and does constitute a recommendation or financial advice. Do your own research. *
- Price
- 7
- Condition
- 9
- Location
- 8
- Land
- 7
- Bedrooms
- 1
- Bathrooms
- 1
- Sqft (est)
- 403.55
- Lot (est)
- 443.00
The heatmap indicates the level of crime in the area. The color of the heatmap indicates the crime severity and recency.
Metrics Year-on-Year
- Average area value
- 441,150.00 £Increased by 9.36 %
- Est sale value
- 125,504.05 £Decreased by 30.89 %
- Average area rental value
- 2,134.00 £/moIncreased by 27.18 %
- Est letting value
- 403.55 £/moUnchanged by 0.00 %
- Est rental Yield
- 5.80 %Increased by 16.23 %
- Crime Rate
- 8.00 %Unchanged by 0.00 %
Agent Activity
eXp UK created the listing.
Nearby Schools
| Name | Type | Ofsted | Distance |
|---|---|---|---|
| Beulah Junior School | Community School | Good | 0.10 KM |
| Beulah Infants' School | Academy Sponsor Led | Good | 0.13 KM |
| Cacfo Uk Education Centre | Other Independent School | Requires improvement | 0.55 KM |
| St Cyprian'S Greek Orthodox Primary Academy | Academy Converter | Good | 0.62 KM |
| David Livingstone Academy | Academy Converter | Outstanding | 0.65 KM |
Images
Nearby Streets
| Name | Average Price | Average Sqft | Distance |
|---|---|---|---|
| Parchmore Road | £ 0 | 0 | 0.00 KM |
| Osborne Road | £ 305,000 | 0 | 0.00 KM |
| Bedser Close | £ 0 | 0 | 0.00 KM |
| Goulding Gardens | £ 265,000 | 0 | 0.00 KM |
| Stuart Road | £ 0 | 0 | 0.00 KM |
Nearby Transport
| Name | NLC | TLC | Distance |
|---|---|---|---|
| Thornton Heath | 5388 | TTH | 0.58 KM |
| Selhurst | 5434 | SRS | 1.86 KM |
| Norbury | 5428 | NRB | 2.57 KM |
| Norwood Junction | 5376 | NWD | 2.84 KM |
| West Croydon | 5411 | WCY | 2.86 KM |
Nearby Listings
| Address | Price | Type | Score | Distance |
|---|---|---|---|---|
| Beulah Road, Thornton Heath, CR7 8JF | £ 230,000 | BUY | 7 / 10 | 0.00 KM |
| Beulah Road, Thornton Heath, CR7 | £ 220,000 | BUY | 7 / 10 | 0.02 KM |
| Beulah Road, Thornton Heath, CR7 | £ 195,000 | BUY | 5 / 10 | 0.06 KM |
| Beulah Road, Thornton Heath, CR7 | £ 375,000 | BUY | 6 / 10 | 0.07 KM |
| Bensham Grove, Thornton Heath, CR7 | £ 300,000 | BUY | 5 / 10 | 0.13 KM |
Nearby Properties
| Address | Price | Distance |
|---|---|---|
| 110a Beulah Road | £ 270,000 | 0.01 KM |
| 116 Beulah Road | £ 91,000 | 0.01 KM |
| 114 Beulah Road | £ 195,000 | 0.01 KM |
| 126c Beulah Road | £ 150,000 | 0.02 KM |
| 106b Beulah Road | £ 98,000 | 0.02 KM |