SE
Highclere Gardens, Knaphill, Woking, Surrey, GU21
By Seymours Estate Agents
£ 400,000
Reviews
3 out of 5 stars
Seymours Estate Agents says ..
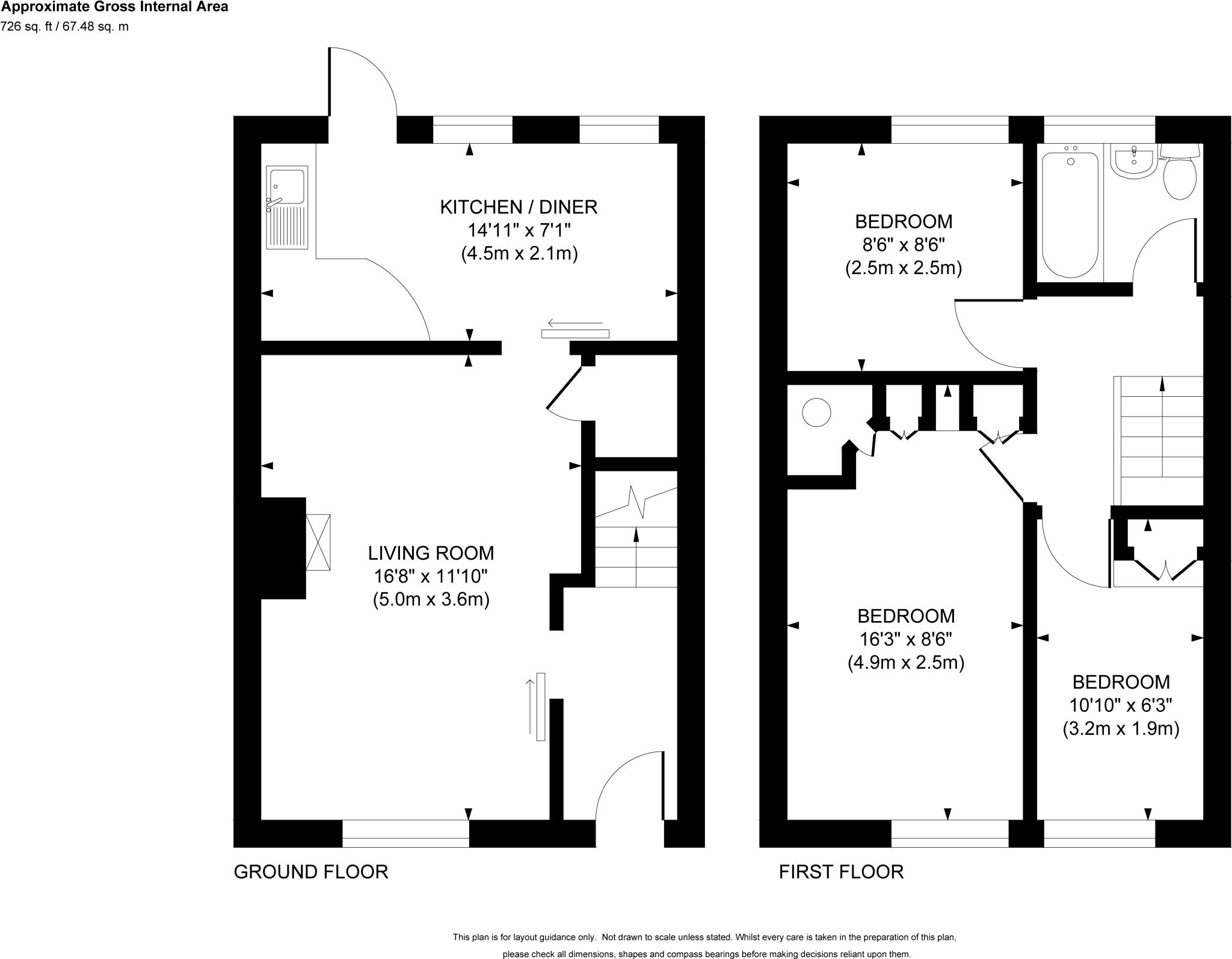
This beautifully presented terraced home is offered to the market in immaculate condition, having been fully renovated by the current owner. Situated in a popular cul-de-sac, it is just a short walk from the village centre, which boasts a wide range of amenities and excellent bus links providing ...
Property Oracle says ..
Therefore, we give this property 7 / 10. *Disclaimer: This is our option and does constitute a recommendation or financial advice. Do your own research. *
- Price
- 7
- Condition
- 8
- Location
- 7
- Land
- 6
- Bedrooms
- 3
- Bathrooms
- 1
- Sqft (est)
- 726.00
The heatmap indicates the level of crime in the area. The color of the heatmap indicates the crime severity and recency.
Metrics Year-on-Year
- Average area value
- 586,400.00 £Increased by 18.76 %
- Est sale value
- 345,576.00 £Increased by 6.01 %
- Average area rental value
- 2,150.00 £/moIncreased by 9.47 %
- Est letting value
- 726.00 £/moUnchanged by 0.00 %
- Est rental Yield
- 4.40 %Decreased by 7.76 %
- Crime Rate
- 1.00 %Unchanged by 0.00 %
from 493,776.00 £
from 325,974.00 £
from 1,964.00 £/mo
from 726.00 £/mo
from 4.77 %
from 1.00 %
Agent Activity
Seymours Estate Agents created the listing.
Nearby Schools
| Name | Type | Ofsted | Distance |
|---|---|---|---|
| Knaphill School | Academy Converter | 0.81 KM | |
| The Knaphill Lower School | Academy Converter | 1.09 KM | |
| St John'S Primary School And Sure Start Children'S Centre | Children's Centre | 1.16 KM | |
| St John'S Primary School | Academy Sponsor Led | Requires improvement | 1.16 KM |
| St Hugh Of Lincoln Catholic Primary School | Academy Converter | Good | 1.18 KM |
Images
Nearby Streets
| Name | Average Price | Average Sqft | Distance |
|---|---|---|---|
| Rose Lodge | £ 0 | 0 | 0.00 KM |
| Barton Close | £ 0 | 0 | 0.00 KM |
| Beechwood Close | £ 0 | 0 | 0.00 KM |
| Elmgrove Close | £ 425,000 | 0 | 0.00 KM |
| Trinity Road | £ 660,000 | 0 | 0.00 KM |
Nearby Transport
| Name | NLC | TLC | Distance |
|---|---|---|---|
| Brookwood | 5687 | BKO | 2.81 KM |
| Worplesdon | 5686 | WPL | 5.10 KM |
| Woking | 5685 | WOK | 6.58 KM |
| Longcross | 5674 | LNG | 7.63 KM |
| Sunningdale | 5671 | SNG | 8.20 KM |
Nearby Listings
| Address | Price | Type | Score | Distance |
|---|---|---|---|---|
| Highclere Gardens, Knaphill, Woking, Surrey, GU21 | £ 400,000 | BUY | 7 / 10 | 0.00 KM |
| Knaphill. | £ 399,950 | BUY | 7 / 10 | 0.06 KM |
| Knaphill. | £ 375,000 | BUY | 6 / 10 | 0.06 KM |
| Highclere Gardens, Knaphill, Woking, Surrey, GU21 | £ 425,000 | BUY | 7 / 10 | 0.07 KM |
| Highclere Gardens, Knaphill, Woking, Surrey, GU21 | £ 425,000 | BUY | 6 / 10 | 0.07 KM |
Nearby Properties
| Address | Price | Distance |
|---|---|---|
| 14 Highclere Gardens | £ 415,000 | 0.01 KM |
| 12a Highclere Gardens | £ 336,000 | 0.01 KM |
| 11 Highclere Gardens | £ 510,000 | 0.01 KM |
| 5 Highclere Gardens | £ 400,000 | 0.01 KM |
| 24 Highclere Gardens | £ 210,000 | 0.01 KM |