MA
Queens Road, Farnborough, Hampshire, GU14
By Mackenzie Smith
£ 350,000
Reviews
3 out of 5 stars
Mackenzie Smith says ..
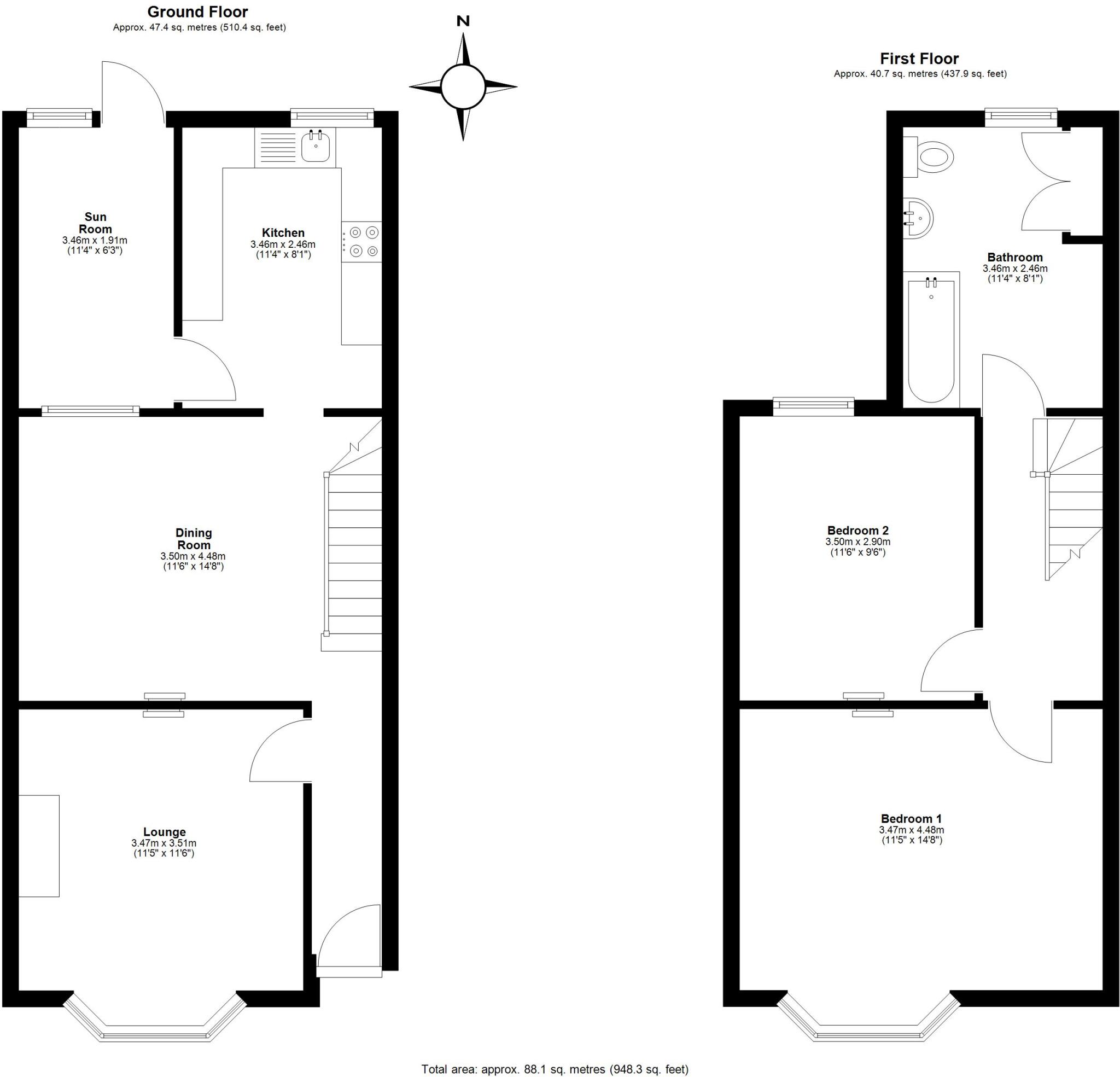
A well-presented, bay-fronted Victorian house featuring two generous double bedrooms and first floor bathroom situated in the heart of North Camp. The property also offers two reception rooms and a kitchen, no onward chain.
Property Oracle says ..
Therefore, we give this property 7 / 10. *Disclaimer: This is our option and does constitute a recommendation or financial advice. Do your own research. *
- Price
- 8
- Condition
- 7
- Location
- 8
- Land
- 7
- Bedrooms
- 2
- Bathrooms
- 1
- Sqft (est)
- 948.30
The heatmap indicates the level of crime in the area. The color of the heatmap indicates the crime severity and recency.
Metrics Year-on-Year
- Average area value
- 401,729.00 £Decreased by 10.51 %
- Est sale value
- 489,322.80 £Increased by 7.28 %
- Average area rental value
- 1,630.00 £/moDecreased by 14.30 %
- Est letting value
- 1,896.60 £/moUnchanged by 0.00 %
- Est rental Yield
- 4.87 %Decreased by 4.13 %
- Crime Rate
- 15.00 %Unchanged by 0.00 %
from 448,918.00 £
from 456,132.30 £
from 1,902.00 £/mo
from 1,896.60 £/mo
from 5.08 %
from 15.00 %
Agent Activity
Mackenzie Smith created the listing.
Nearby Schools
| Name | Type | Ofsted | Distance |
|---|---|---|---|
| South Farnborough Infant School | Community School | Outstanding | 0.07 KM |
| Salesian College | Other Independent School | 0.33 KM | |
| St Mark'S Church Of England Aided Primary School | Voluntary Aided School | Outstanding | 0.44 KM |
| Sycamore Children'S Centre | Children's Centre | 0.71 KM | |
| South Farnborough Junior School | Community School | Outstanding | 0.72 KM |
Images
Nearby Streets
| Name | Average Price | Average Sqft | Distance |
|---|---|---|---|
| Canterbury Walk | £ 630,000 | 0 | 0.00 KM |
| RAE Road | £ 0 | 0 | 0.00 KM |
| Mytchett Farm Park | £ 180,000 | 0 | 0.00 KM |
| Bedford Court | £ 0 | 0 | 0.00 KM |
| Enterprise Estate | £ 0 | 0 | 0.00 KM |
Nearby Transport
| Name | NLC | TLC | Distance |
|---|---|---|---|
| North Camp | 5636 | NCM | 1.24 KM |
| Ash Vale | 5547 | AHV | 2.36 KM |
| Farnborough (Main) | 5521 | FNB | 2.62 KM |
| Farnborough North | 5688 | FNN | 2.77 KM |
| Frimley | 5683 | FML | 3.89 KM |
Nearby Listings
| Address | Price | Type | Score | Distance |
|---|---|---|---|---|
| Queens Road, Farnborough, Hampshire, GU14 | £ 350,000 | BUY | 7 / 10 | 0.00 KM |
| Briarleas Court, Morris Road, Farnborough , GU14 | £ 210,000 | BUY | Unknown | 0.11 KM |
| Morris Road, Farnborough, GU14 | £ 275,000 | BUY | 6 / 10 | 0.11 KM |
| Queens Road, Farnborough, Hampshire, GU14 | £ 399,000 | BUY | 8 / 10 | 0.14 KM |
| Queens Road, Farnborough , GU14 | £ 340,000 | BUY | 5 / 10 | 0.20 KM |
Nearby Properties
| Address | Price | Distance |
|---|---|---|
| 110 Queens Road | £ 345,000 | 0.06 KM |
| 118 Queens Road | £ 192,500 | 0.06 KM |
| 99 Queens Road | £ 169,950 | 0.07 KM |
| 75 Queens Road | £ 275,000 | 0.07 KM |
| 81 Queens Road | £ 290,000 | 0.07 KM |