Woolmers Lane, Bickington, Barnstaple, Devon, EX31
By Jackson-Stops
£ 350,000
Reviews
3 out of 5 stars
Jackson-Stops says ..
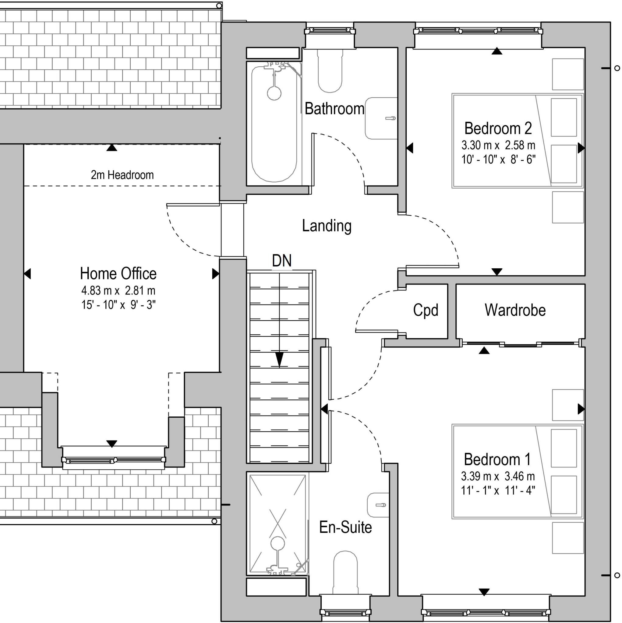
Nightingale – A versatile semi-detached property offering two/three-bedroom accommodation with off road parking and a garage. The property boasts either a third bedroom above the garage, home office or studio which could be used for a variety of uses. We are extremely excited to ...
Property Oracle says ..
The property is a modern semi-detached house located in Bickington, Barnstaple. The location benefits from being relatively close to local schools and Barnstaple train station, providing convenient access to transportation links. While the plot size is small, the house itself appears to be in excellent condition based on the provided images. The list price of £350,000 seems reasonable when compared to other properties in the area, particularly considering the modern condition and proximity to amenities. However, the lack of information regarding the actual plot size and the limited data on comparable properties make a definitive assessment challenging. More information on the property’s specific features and the local market would enhance the analysis.
Therefore, we give this property 7 / 10. *Disclaimer: This is our option and does constitute a recommendation or financial advice. Do your own research. *
- Price
- 8
- Condition
- 10
- Location
- 7
- Land
- 3
- Bedrooms
- 3
- Bathrooms
- 2
- Sqft (est)
- 524.60
The heatmap indicates the level of crime in the area. The color of the heatmap indicates the crime severity and recency.
Metrics Year-on-Year
- Average area value
- 661,000.00 £Increased by 29.29 %
- Est sale value
- 284,333.20 £Increased by 47.28 %
- Average area rental value
- 2,410.00 £/moIncreased by 120.90 %
- Est letting value
- 524.60 £/mo
- Est rental Yield
- 4.38 %Increased by 71.09 %
- Crime Rate
- 11.00 %Unchanged by 0.00 %
Agent Activity
Jackson-Stops created the listing.
Nearby Schools
| Name | Type | Ofsted | Distance |
|---|---|---|---|
| Roundswell Community Primary Academy | Free Schools | 0.84 KM | |
| The Shoreline Academy | Academy Alternative Provision Sponsor Led | 1.31 KM | |
| Sticklepath Community Primary Academy | Academy Converter | 1.69 KM | |
| Barnstaple (Sticklepath) | Children's Centre | 1.83 KM | |
| Petroc | Further Education | Good | 3.13 KM |
Images
Nearby Streets
| Name | Average Price | Average Sqft | Distance |
|---|---|---|---|
| Old Bakery Cottages | £ 0 | 0 | 0.00 KM |
| The Orchard | £ 0 | 0 | 0.00 KM |
| Muddle Brook | £ 0 | 0 | 0.00 KM |
| Spinney Close | £ 393,000 | 0 | 0.00 KM |
| Honeysuckle Close | £ 0 | 0 | 0.00 KM |
Nearby Transport
| Name | NLC | TLC | Distance |
|---|---|---|---|
| Barnstaple | 5725 | BNP | 3.82 KM |
Nearby Listings
| Address | Price | Type | Score | Distance |
|---|---|---|---|---|
| Woolmers Lane, Bickington, Barnstaple, Devon, EX31 | £ 350,000 | BUY | 7 / 10 | 0.00 KM |
| Woolmers Lane, Bickington, Barnstaple, Devon, EX31 | £ 425,000 | BUY | 8 / 10 | 0.00 KM |
| Woolmers Lane, Bickington, Barnstaple, Devon, EX31 | £ 425,000 | BUY | 8 / 10 | 0.00 KM |
| Woolmers Lane, Bickington, Barnstaple, Devon, EX31 | £ 560,000 | BUY | 7 / 10 | 0.00 KM |
| Woolmers Lane, Bickington, Barnstaple, Devon, EX31 | £ 335,000 | BUY | 7 / 10 | 0.00 KM |
Nearby Properties
| Address | Price | Distance |
|---|---|---|
| 9 Holland Close | £ 175,000 | 0.10 KM |
| 8 Holland Close | £ 327,000 | 0.10 KM |
| 7 Holland Close | £ 298,000 | 0.10 KM |
| 6 Holland Close | £ 210,000 | 0.10 KM |
| 4 Holland Close | £ 215,000 | 0.10 KM |