Vine Street, Winkleigh
ST

Vine Street, Winkleigh

By Stags

£ 265,000

Reviews

3 out of 5 stars

Stags says ..

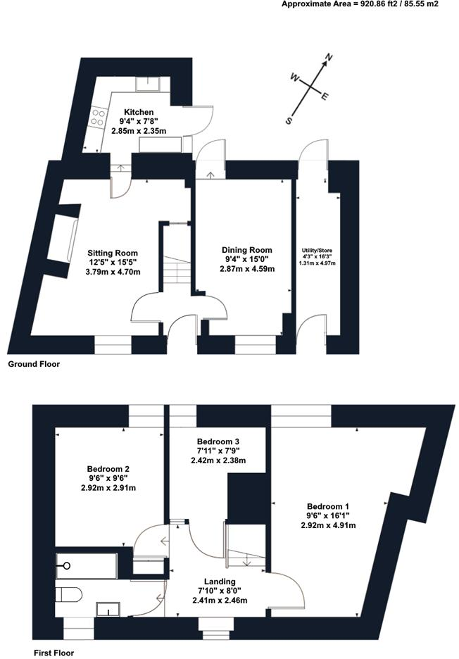
A charming Grade II listed three bedroom terraced cottage in the heart of the popular and sought after mid Devon village of Winkleigh. Three Bedrooms. Sitting Room. Dining Room. Enclosed Rear Courtyard. Original Features Throughout. Grade II Listed. Close Proximity of Village Centre. Council ...

Property Oracle says ..

This property is a 3-bedroom, 1-bathroom house located in Winkleigh, Devon. The list price is £265,000, and the property has a plot size of 0.00 sqft. The average price for a property in the area is £321,495, with an average price per sqft of £287. The property appears to be in good condition, with a well-maintained interior and exterior. It benefits from a small, enclosed courtyard garden. While the property is smaller than the average size for the area, its location in Winkleigh, proximity to local amenities, and good condition may justify the list price. However, potential buyers should carefully consider the smaller plot size relative to other properties in the area.

Therefore, we give this property 6 / 10. *Disclaimer: This is our option and does constitute a recommendation or financial advice. Do your own research. *

Price
6
Condition
8
Location
7
Land
3
Bedrooms
3
Bathrooms
1
Sqft (est)
920.86

The heatmap indicates the level of crime in the area. The color of the heatmap indicates the crime severity and recency.

Metrics Year-on-Year

Average area value
363,000.00 £
Increased by 18.88 %
from 305,360.00 £
Est sale value
394,128.08 £
Increased by 70.52 %
from 231,135.86 £
Average area rental value
850.00 £/mo
Decreased by 24.98 %
from 1,133.00 £/mo
Est letting value
920.86 £/mo
from 0.00 £/mo
Est rental Yield
2.81 %
Decreased by 36.85 %
from 4.45 %
Crime Rate
81.00 %
Unchanged by 0.00 %
from 81.00 %

Agent Activity

  • Stags created the listing.

Nearby Schools

NameTypeOfstedDistance
Winkleigh Primary SchoolFoundation SchoolGood0.24 KM
Acorn SchoolOther Independent Special SchoolGood1.21 KM
Exbourne Church Of England Primary SchoolAcademy Converter7.51 KM
North Tawton Community Primary School And NurseryAcademy Converter8.46 KM

Images

PXL_20240722_102859523~2.jpg PXL_20240722_101922634.MP~2.jpg PXL_20240722_101635120~2 2.jpg PXL_20240722_101857985~2.jpg PXL_20240722_100741609.MP~2.jpg PXL_20240722_100836970~2.jpg PXL_20240722_100919431~2.jpg PXL_20240722_100447252~2.jpg PXL_20240722_101014703~2.jpg PXL_20240722_100318470~2.jpg PXL_20240722_101852804~2.jpg

Nearby Streets

NameAverage PriceAverage SqftDistance
Castle Street £ 425,00000.00 KM
Lower Town £ 370,00000.00 KM
Church Hill £ 580,00000.00 KM
Lendon Way £ 000.00 KM
Carrionpit Lane £ 000.00 KM

Nearby Transport

NameNLCTLCDistance
Eggesford5822EGG8.61 KM
Sampford Courtenay8724SMC9.46 KM

Nearby Listings

AddressPriceTypeScoreDistance
Vine Street, Winkleigh £ 265,000BUY6 / 100.00 KM
South Street, Winkleigh, Devon £ 300,000BUYUnknown0.06 KM
Castle Street, Winkleigh, EX19 £ 240,000BUYUnknown0.06 KM
Fore Street, Winkleigh, EX19 £ 180,000BUY4 / 100.09 KM
Barnstaple Street, Winkleigh £ 290,000BUYUnknown0.09 KM

Nearby Properties

AddressPriceDistance
Vineyard Cottage £ 229,0000.00 KM
Vine Cottage £ 150,0000.00 KM
Honey Cottage £ 171,0000.02 KM
Vinecroft £ 90,0000.02 KM
Clover Cottage £ 125,0000.02 KM