Woodville Court, Broxburn, EH52
By KnightBain Estate Agents
£ 185,000
Reviews
3 out of 5 stars
KnightBain Estate Agents says ..
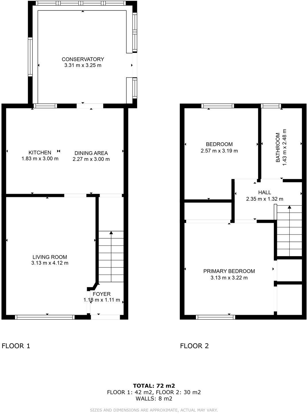
Nestled in a cul-de-sac, this 2-bed semi-detached house is chain-free. Features: 2 double bedrooms, front living room, modern kitchen/dining area, conservatory. (Ample storage with built-in wardrobes.) Outside: front & rear garden perfect for outdoor activities and relaxation.
Property Oracle says ..
Therefore, we give this property 7 / 10. *Disclaimer: This is our option and does constitute a recommendation or financial advice. Do your own research. *
- Price
- 9
- Condition
- 8
- Location
- 6
- Land
- 7
- Bedrooms
- 2
- Bathrooms
- 1
- Sqft (est)
- 669.50
The heatmap indicates the level of crime in the area. The color of the heatmap indicates the crime severity and recency.
Metrics Year-on-Year
- Average area value
- 294,275.00 £Increased by 4.32 %
- Est sale value
- 356,843.50 £Increased by 75.33 %
- Average area rental value
- 1,350.00 £/moIncreased by 9.49 %
- Est letting value
- 1,339.00 £/moIncreased by 100.00 %
- Est rental Yield
- 5.51 %Increased by 5.15 %
- Crime Rate
- 0.00 %
from 282,099.00 £
from 203,528.00 £
from 1,233.00 £/mo
from 669.50 £/mo
from 5.24 %
from 0.00 %
Agent Activity
KnightBain Estate Agents created the listing.
Images
Nearby Streets
| Name | Average Price | Average Sqft | Distance |
|---|---|---|---|
| Kirkhill Court | £ 0 | 0 | 0.00 KM |
| Mcintosh Court | £ 0 | 0 | 0.00 KM |
| Mauldeth Road | £ 0 | 0 | 0.00 KM |
| Galmeilen | £ 0 | 0 | 0.00 KM |
| Holmes Holdings | £ 0 | 0 | 0.00 KM |
Nearby Transport
| Name | NLC | TLC | Distance |
|---|---|---|---|
| Uphall | 9373 | UHA | 2.79 KM |
| Livingston South | 9372 | LVG | 7.14 KM |
| Kirknewton | 9230 | KKN | 7.23 KM |
| Livingston North | 9371 | LSN | 7.83 KM |
Nearby Listings
| Address | Price | Type | Score | Distance |
|---|---|---|---|---|
| Woodville Court, Broxburn, EH52 | £ 185,000 | BUY | 7 / 10 | 0.00 KM |
| Woodville Court, Broxburn, EH52 | £ 185,000 | BUY | 7 / 10 | 0.06 KM |
| Woodville Court, Broxburn, EH52 | £ 210,000 | BUY | 7 / 10 | 0.08 KM |
| Ashbank, Broxburn | £ 285,000 | BUY | Unknown | 0.13 KM |
| West Main Street, Broxburn, EH52 | £ 155,000 | BUY | 7 / 10 | 0.13 KM |