Midlock Street, Cessnock
VA

Midlock Street, Cessnock

By Vanilla Square

£ 70,000

Reviews

3 out of 5 stars

Vanilla Square says ..

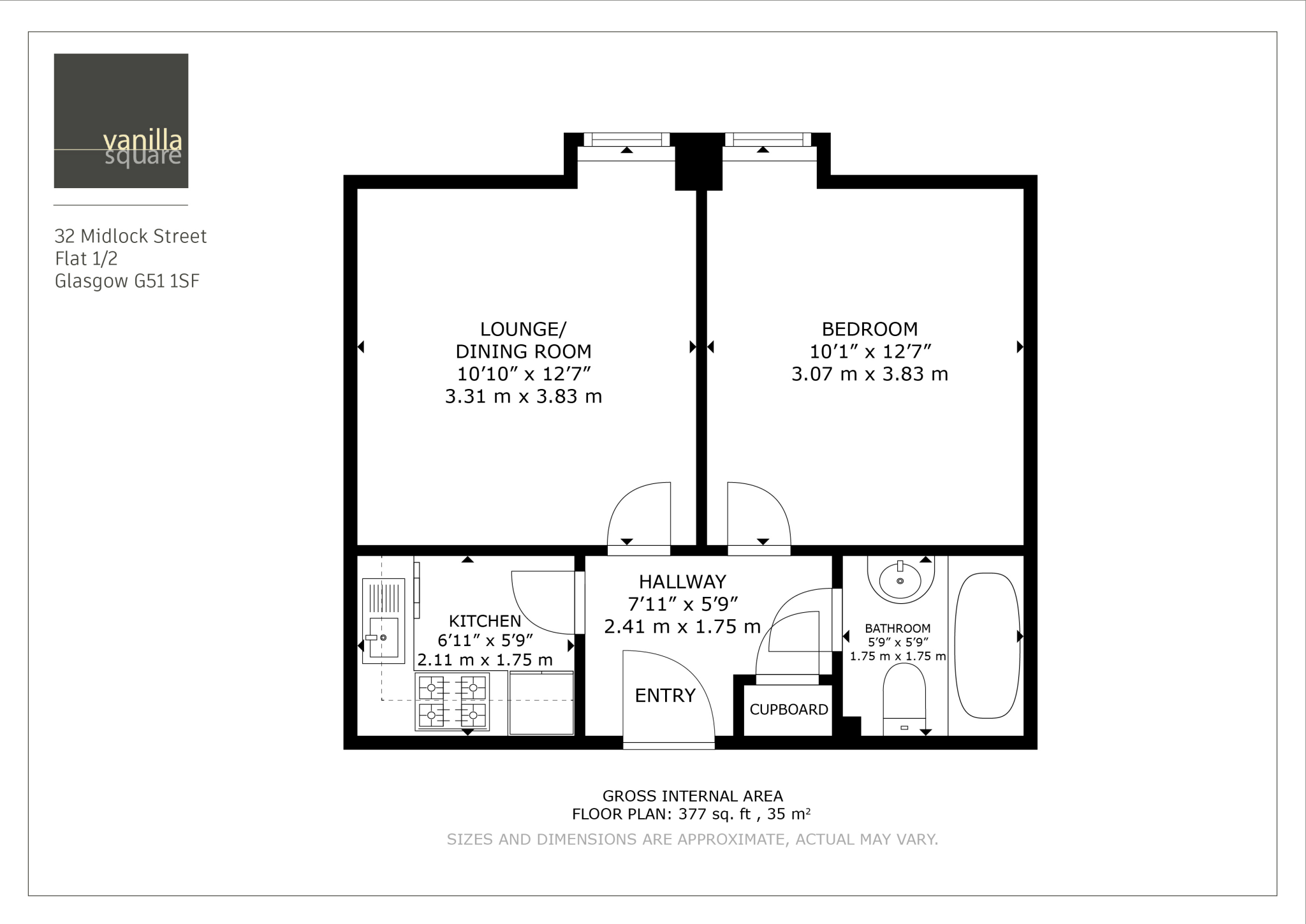
A well-presented one-bedroom tenement flat in Cessnock.

Property Oracle says ..

This property is a one-bedroom flat located on Midlock Street in the Cessnock area of Glasgow.The location benefits from being close to transportation links with Dumbreck station being less than 1km away.The internal condition of the property appears to be reasonable, although the bathroom looks a little dated. The kitchen could also benefit from modernisation. The communal areas could do with some attention.The property has access to a communal garden.At £70,000, the list price is significantly below the average price for the area of £142,423. The price per square foot is also lower than average for the area at £186 compared to £209. This could represent good value for money, especially given similar properties in the area are listed at a higher price.

Therefore, we give this property 6 / 10. *Disclaimer: This is our option and does constitute a recommendation or financial advice. Do your own research. *

Price
9
Condition
6
Location
7
Land
5
Bedrooms
1
Bathrooms
1
Sqft (est)
377.00

The heatmap indicates the level of crime in the area. The color of the heatmap indicates the crime severity and recency.

Metrics Year-on-Year

Average area value
142,423.00 £
Decreased by 11.64 %
from 161,184.00 £
Est sale value
78,793.00 £
Increased by 1.46 %
from 77,662.00 £
Average area rental value
1,376.00 £/mo
Increased by 33.59 %
from 1,030.00 £/mo
Est letting value
754.00 £/mo
Increased by 100.00 %
from 377.00 £/mo
Est rental Yield
11.59 %
Increased by 51.11 %
from 7.67 %
Crime Rate
0.00 %
from 0.00 %

Agent Activity

  • Vanilla Square created the listing.

Images

1-web-or-mls-32 M... 8-web-or-mls-32 M... 9-web-or-mls-32 M... 10-web-or-mls-32 ... 11-web-or-mls-32 ... 12-web-or-mls-32 ... 13-web-or-mls-32 ... 14-web-or-mls-32 ... 15-web-or-mls-32 ... 16-web-or-mls-32 ... 17-web-or-mls-32 ... 7-web-or-mls-32 M... 6-web-or-mls-32 M... 5-web-or-mls-32 M... 4-web-or-mls-32 M... 19-web-or-mls-32 ... 18-web-or-mls-32 ... 3-web-or-mls-32 M... 2-web-or-mls-32 M...

Nearby Streets

NameAverage PriceAverage SqftDistance
M8 £ 175,00000.00 KM
Elphinstone Place £ 000.00 KM
Ibroxholm Place £ 000.00 KM
Woodville Street £ 000.00 KM
Burndyke Square £ 110,00000.00 KM

Nearby Transport

NameNLCTLCDistance
Dumbreck9622DUM0.99 KM
Exhibition Centre (Glasgow)9914EXG1.94 KM
Maxwell Park9802MAX2.07 KM
Partick9917PTK2.14 KM
Crossmyloof9796CMY2.69 KM

Nearby Listings

AddressPriceTypeScoreDistance
Midlock Street, Cessnock £ 70,000BUY6 / 100.00 KM
Middleton Street, Cessnock , G51 £ 120,000BUYUnknown0.02 KM
Middleton Street, Cessnock, Glasgow, G51 £ 74,999BUYUnknown0.06 KM
Middleton Street, Ibrox, G51 1SQ £ 110,000BUY6 / 100.07 KM
29 Ibrox Street, Flat 3/1, Ibrox, Glasgow, G51 1SN £ 79,000BUYUnknown0.12 KM