Pearsons says ..
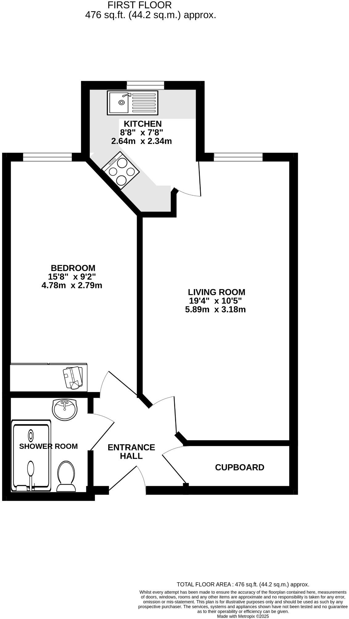
NO FORWARD CHAIN. A one bedroom first floor apartment set within this popular retirement development for the over 60's. The property's accommodation briefly comprises; communal entrance with security entrance system with stairs and lift to all floors. A private front door leads to an entrance hal...
Property Oracle says ..
This is a one-bedroom retirement property located in Fareham North. The property is in reasonable condition and benefits from communal gardens. It is located close to local amenities, schools, and transportation links. The price appears to be in line with similar properties in the area. The property is of traditional style.
Therefore, we give this property 7 / 10. *Disclaimer: This is our option and does constitute a recommendation or financial advice. Do your own research. *
- Price
- 8
- Condition
- 7
- Location
- 7
- Land
- 6
- Bedrooms
- 1
- Bathrooms
- 1
- Sqft (est)
- 1,427.29
The heatmap indicates the level of crime in the area. The color of the heatmap indicates the crime severity and recency.
Metrics Year-on-Year
- Average area value
- 316,146.00 £Decreased by 21.41 %
- Est sale value
- 535,233.75 £Increased by 22.15 %
- Average area rental value
- 2,250.00 £/moIncreased by 65.56 %
- Est letting value
- 2,854.58 £/moIncreased by 100.00 %
- Est rental Yield
- 8.54 %Increased by 110.86 %
- Crime Rate
- 22.00 %Unchanged by 0.00 %
Agent Activity
Pearsons created the listing.
Nearby Schools
| Name | Type | Ofsted | Distance |
|---|---|---|---|
| Harrison Primary School | Community School | Outstanding | 0.50 KM |
| Kingsgate School | Other Independent Special School | Good | 0.65 KM |
| Redlands Primary School | Community School | Outstanding | 0.99 KM |
| Uplands Primary School | Community School | Good | 1.09 KM |
| Fareham Academy | Academy Converter | Good | 1.63 KM |
Images
Nearby Streets
| Name | Average Price | Average Sqft | Distance |
|---|---|---|---|
| Trinity Street | £ 0 | 0 | 0.00 KM |
| Western Way | £ 75,000 | 0 | 0.00 KM |
| Moresby Court | £ 142,250 | 0 | 0.00 KM |
| Palmerston Avenue | £ 418,333 | 0 | 0.00 KM |
| Faregrove Court | £ 402,500 | 0 | 0.00 KM |
Nearby Transport
| Name | NLC | TLC | Distance |
|---|---|---|---|
| Fareham | 5900 | FRM | 0.94 KM |
| Portchester | 5928 | PTC | 6.60 KM |
| Swanwick | 5920 | SNW | 9.40 KM |
Nearby Listings
| Address | Price | Type | Score | Distance |
|---|---|---|---|---|
| ACACIA LODGE, FAREHAM | £ 105,000 | BUY | Unknown | 0.00 KM |
| ACACIA LODGE, FAREHAM | £ 110,000 | BUY | 7 / 10 | 0.00 KM |
| ACACIA LODGE, FAREHAM | £ 95,000 | BUY | 5 / 10 | 0.00 KM |
| Acacia Lodge, Trinity Street, Fareham | £ 99,950 | BUY | 7 / 10 | 0.03 KM |
| 49 Trinity Street, Fareham | £ 130,000 | BUY | 6 / 10 | 0.03 KM |
Nearby Properties
| Address | Price | Distance |
|---|---|---|
| 11 Trinity Street | £ 165,000 | 0.10 KM |
| 13 Trinity Street | £ 180,000 | 0.10 KM |
| 21 Trinity Street | £ 124,000 | 0.10 KM |
| 19 Trinity Street | £ 124,000 | 0.10 KM |
| 15 Trinity Street | £ 152,000 | 0.10 KM |