Nutfield Road, Leicester, LE3
By Move Places Limited
£ 160,000
Reviews
2 out of 5 stars
Move Places Limited says ..
PRICED TO SELL - WITH VACANT POSSESSION, Tenure – Freehold, EPC Rating – D (Potential - B), Council Tax Band - A, PERFECT FOR FIRST TIME BUYERS AND INVESTORS, CLOSE TO LOCAL SCHOOLS, CLOSE TO LOCAL SUPERMARKETS, CLOSE TO LEICESTER CITY FOOTBALL CLUB.
Property Oracle says ..
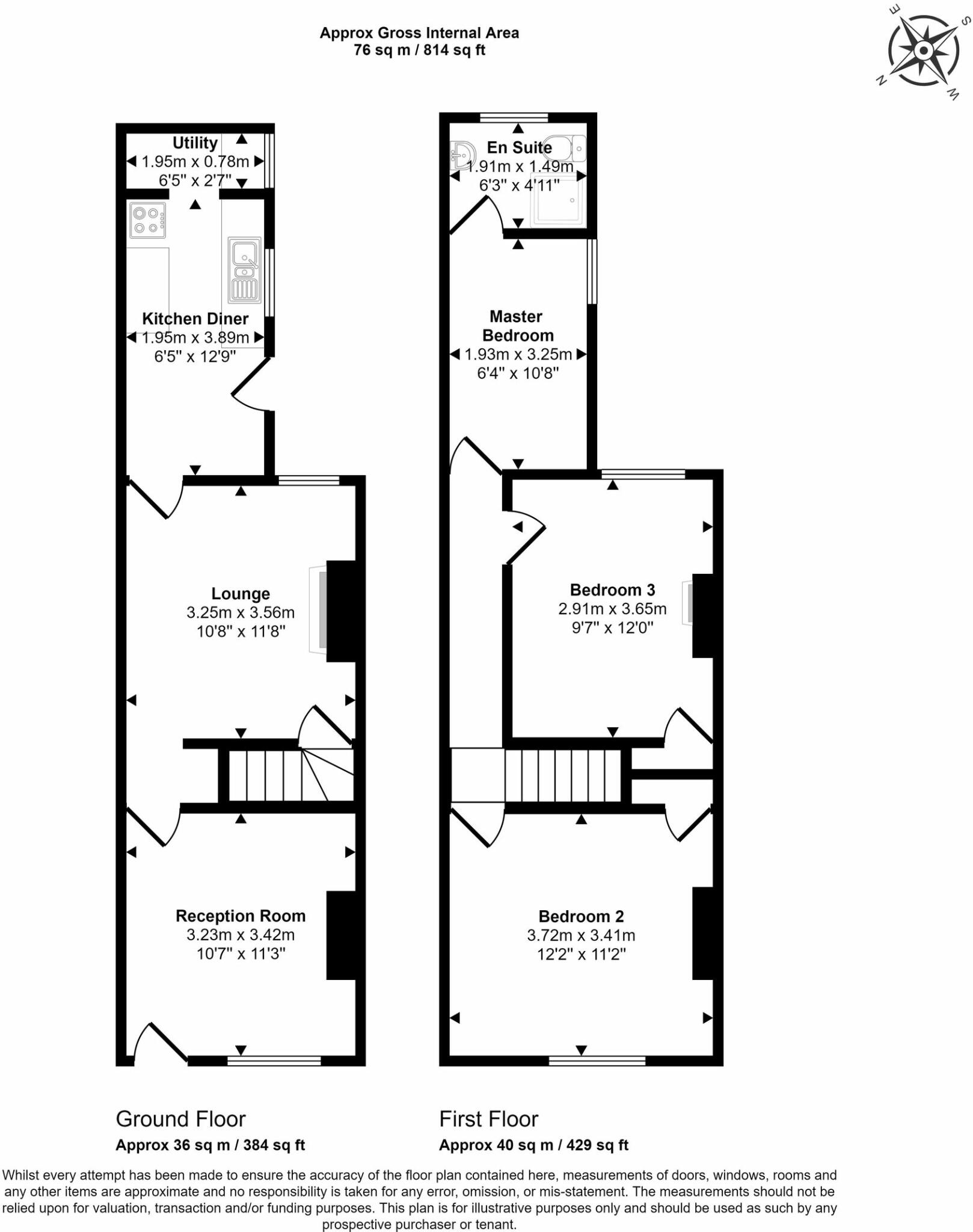
This three-bedroom, two-bathroom terraced house in Leicester’s Braunstone Park & Rowley Fields area presents a mixed picture. Its location scores positively due to its proximity to local schools and Leicester City Football Club, suggesting family-friendliness and potential for rental interest. However, the property’s condition is a major drawback. The photographs reveal a property in need of extensive renovation and modernisation throughout, impacting its immediate livability. The lack of any significant land is also a significant negative. The list price of £160,000 appears fairly priced considering comparable properties, but potential buyers must factor in the substantial cost of refurbishment to make it a comfortable home. Overall, this property presents itself as a project for a buyer willing to invest time, money, and effort, targeting either renovation for personal use or potential for rental income post-renovation.
Therefore, we give this property 4 / 10. *Disclaimer: This is our option and does constitute a recommendation or financial advice. Do your own research. *
- Price
- 7
- Condition
- 4
- Location
- 7
- Land
- 1
- Bedrooms
- 3
- Bathrooms
- 2
- Sqft (est)
- 818.06
The heatmap indicates the level of crime in the area. The color of the heatmap indicates the crime severity and recency.
Metrics Year-on-Year
- Average area value
- 237,000.00 £Increased by 5.55 %
- Est sale value
- 259,325.02 £Increased by 24.80 %
- Average area rental value
- 760.00 £/moDecreased by 4.16 %
- Est letting value
- 818.06 £/mo
- Est rental Yield
- 3.85 %Decreased by 9.20 %
- Crime Rate
- 12.00 %Unchanged by 0.00 %
Agent Activity
Move Places Limited marked this listing as sold.
Move Places Limited created the listing.
Nearby Schools
| Name | Type | Ofsted | Distance |
|---|---|---|---|
| Rowley Fields Sure Start Children'S Centre | Children's Centre Linked Site | 0.15 KM | |
| Fullhurst Community College | Foundation School | Good | 0.33 KM |
| Imperial Avenue Infant School | Community School | Good | 0.45 KM |
| Cherryleas Assessment Centre | Miscellaneous | 0.62 KM | |
| Avanti Fields School | Free Schools | 0.73 KM |
Images
Nearby Streets
| Name | Average Price | Average Sqft | Distance |
|---|---|---|---|
| Minehead Street | £ 172,500 | 0 | 0.00 KM |
| Beaufort Road | £ 225,000 | 0 | 0.00 KM |
| Narborough Road North | £ 0 | 0 | 0.00 KM |
| Sandhurst Close | £ 0 | 0 | 0.00 KM |
| Upperton Road | £ 0 | 0 | 0.00 KM |
Nearby Transport
| Name | NLC | TLC | Distance |
|---|---|---|---|
| Leicester | 1947 | LEI | 3.68 KM |
| South Wigston | 1949 | SWS | 5.39 KM |
| Narborough | 1881 | NBR | 7.77 KM |
Nearby Listings
| Address | Price | Type | Score | Distance |
|---|---|---|---|---|
| Nutfield Road, Leicester, LE3 | £ 160,000 | BUY | 4 / 10 | 0.00 KM |
| 10 Nutfield Road, Near Narborough Road, Leicester, LE3 1AN | £ 125,000 | BUY | 5 / 10 | 0.04 KM |
| Chartley Road, Leicester | £ 180,000 | BUY | 5 / 10 | 0.06 KM |
| Nutfield Road, Leicester | £ 190,000 | BUY | 6 / 10 | 0.07 KM |
| Nutfield Road, Leicester | £ 190,000 | BUY | 7 / 10 | 0.07 KM |
Nearby Properties
| Address | Price | Distance |
|---|---|---|
| 64 Winchester Avenue | £ 158,000 | 0.03 KM |
| 56 Winchester Avenue | £ 37,000 | 0.03 KM |
| 66 Winchester Avenue | £ 145,000 | 0.03 KM |
| 52 Winchester Avenue | £ 39,000 | 0.03 KM |
| 42 Winchester Avenue | £ 167,000 | 0.03 KM |