Woodville Gardens, London, W5
By Fine & Country
£ 4,350,000
Reviews
4 out of 5 stars
Fine & Country says ..
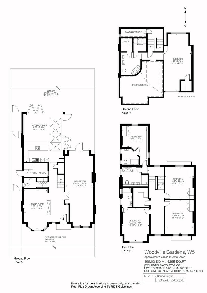
CONTRACTS EXCHANGED - A beautifully refurbished, detached, family home boasting five spacious bedrooms, luxurious interiors, and a stunning kitchen-family room opening to a 100ft + landscaped gardens with off street parking
Property Oracle says ..
This property is a 5 bedroom detached house located in the desirable Hanger Hill area of Ealing, London. The property benefits from a large garden and has been recently renovated to a high standard, with a modern, open-plan kitchen and living area. The location is excellent, with easy access to transport links and a number of highly-rated schools nearby. The asking price is high, but reflects the property’s size, condition, and location.
Therefore, we give this property 8 / 10. *Disclaimer: This is our option and does constitute a recommendation or financial advice. Do your own research. *
- Price
- 7
- Condition
- 9
- Location
- 9
- Land
- 8
- Bedrooms
- 5
- Bathrooms
- 4
- Sqft (est)
- 2,276.76
- Lot (est)
- 4,401.00
The heatmap indicates the level of crime in the area. The color of the heatmap indicates the crime severity and recency.
Metrics Year-on-Year
- Average area value
- 1,075,300.00 £Increased by 16.16 %
- Est sale value
- 1,529,982.72 £Decreased by 14.72 %
- Average area rental value
- 2,414.00 £/moIncreased by 17.53 %
- Est letting value
- 2,276.76 £/moUnchanged by 0.00 %
- Est rental Yield
- 2.69 %Increased by 1.13 %
- Crime Rate
- 1.00 %Unchanged by 0.00 %
Agent Activity
Fine & Country marked this listing as sold.
Fine & Country created the listing.
Nearby Schools
| Name | Type | Ofsted | Distance |
|---|---|---|---|
| Ada Lovelace Church Of England High School | Free Schools | 0.25 KM | |
| Blooming Tree Primary School | Other Independent Special School | 0.61 KM | |
| La Chouette School | Other Independent School | Good | 0.66 KM |
| St Augustine'S Priory | Other Independent School | 0.69 KM | |
| The Ellen Wilkinson School For Girls | Foundation School | Outstanding | 0.81 KM |
Images
Nearby Streets
| Name | Average Price | Average Sqft | Distance |
|---|---|---|---|
| Regency Close | £ 1,640,000 | 0 | 0.00 KM |
| Hillside Road | £ 784,500 | 0 | 0.00 KM |
| Station Road | £ 462,500 | 0 | 0.00 KM |
| Hamilton Court | £ 650,000 | 0 | 0.00 KM |
| Hogarth Close | £ 1,200,000 | 0 | 0.00 KM |
Nearby Transport
| Name | NLC | TLC | Distance |
|---|---|---|---|
| Ealing Broadway | 3190 | EAL | 0.81 KM |
| West Ealing | 3188 | WEA | 2.81 KM |
| Acton Main Line | 3000 | AML | 3.14 KM |
| Kew Bridge | 5593 | KWB | 3.30 KM |
| South Acton | 1452 | SAT | 3.44 KM |
Nearby Listings
| Address | Price | Type | Score | Distance |
|---|---|---|---|---|
| Woodville Gardens, London, W5 | £ 4,350,000 | BUY | 8 / 10 | 0.00 KM |
| Woodville Gardens, Ealing, W5 | £ 1,399,000 | BUY | 6 / 10 | 0.04 KM |
| Woodville Gardens, London, W5 | £ 1,595,000 | BUY | 8 / 10 | 0.04 KM |
| Woodville Gardens, London, W5 | £ 1,500,000 | BUY | 6 / 10 | 0.04 KM |
| Woodville Gardens, Ealing, W5 | £ 1,399,950 | BUY | 5 / 10 | 0.04 KM |
Nearby Properties
| Address | Price | Distance |
|---|---|---|
| 33 Woodville Gardens | £ 699,950 | 0.06 KM |
| 33a Woodville Gardens | £ 181,000 | 0.06 KM |
| 35 Woodville Gardens | £ 2,300,000 | 0.06 KM |
| 21 Woodville Gardens | £ 2,600,000 | 0.06 KM |
| 31 Woodville Gardens | £ 815,000 | 0.06 KM |