Hortons says ..
Immaculate & larger than average four bed detached family home with modern interior & landscaped garden. Ideal location near schools & green spaces, perfect for family living & remote work.
Property Oracle says ..
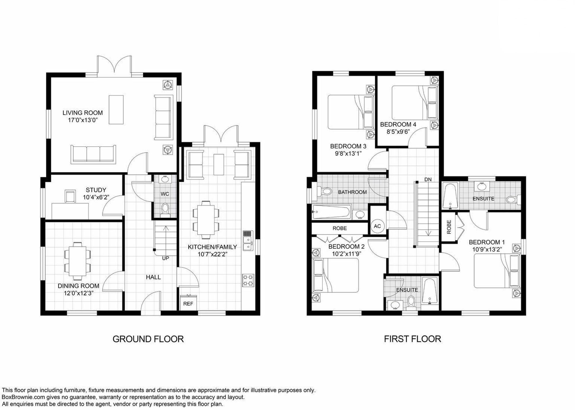
The property is a 4 bedroom detached house located in Banbury, Oxfordshire. The property is situated on Wardington Road, close to Cherry Fields Primary School (0.19km). Banbury train station is also relatively close by (2.93km), providing convenient access to other towns and cities. The property itself appears to be in excellent condition, with modern fixtures and fittings throughout. Images show a well-maintained interior and exterior, including a garden with a patio area, play equipment and a shed. The plot size is not specified, however the garden appears to be of a reasonable size for a family home.
Considering the average price per square foot in the area is £325, and this property is listed at £490,000 with 1,126.26 sqft, the price per sqft is approximately £435. This is higher than the average for the area, however, given the property’s apparent excellent condition, proximity to local amenities and schools, and the inclusion of a garden, the list price may be considered reasonable, although perhaps slightly on the higher end of the market. Nearby comparable properties show a range of prices, some significantly lower, and some higher, making it difficult to definitively state whether the list price is overpriced or not. More information on the size and features of comparable properties would be beneficial in making a more informed judgement.
Therefore, we give this property 8 / 10. *Disclaimer: This is our option and does constitute a recommendation or financial advice. Do your own research. *
- Price
- 7
- Condition
- 10
- Location
- 8
- Land
- 7
- Bedrooms
- 4
- Bathrooms
- 3
- Sqft (est)
- 1,126.26
The heatmap indicates the level of crime in the area. The color of the heatmap indicates the crime severity and recency.
Metrics Year-on-Year
- Average area value
- 257,215.00 £Decreased by 21.30 %
- Est sale value
- 413,337.42 £Increased by 11.89 %
- Average area rental value
- 1,509.00 £/moIncreased by 0.07 %
- Est letting value
- 2,252.52 £/moIncreased by 100.00 %
- Est rental Yield
- 7.04 %Increased by 27.08 %
- Crime Rate
- 60.00 %Unchanged by 0.00 %
Agent Activity
Hortons created the listing.
Nearby Schools
| Name | Type | Ofsted | Distance |
|---|---|---|---|
| Cherry Fields Primary School | Free Schools | 0.19 KM | |
| Hanwell Fields Community School | Academy Converter | Good | 1.59 KM |
| East Street Children And Family Centre | Children's Centre Linked Site | 2.31 KM | |
| St Mary'S Church Of England Primary School, Banbury | Academy Converter | 2.43 KM | |
| Hardwick Primary School | Academy Converter | 2.78 KM |
Images
Nearby Streets
| Name | Average Price | Average Sqft | Distance |
|---|---|---|---|
| Horton Drive | £ 0 | 0 | 0.00 KM |
| Burton Road | £ 525,000 | 0 | 0.00 KM |
| Chacombe Cresent | £ 0 | 0 | 0.00 KM |
| Lawrence Close | £ 280,000 | 0 | 0.00 KM |
| Southam Road | £ 0 | 0 | 0.00 KM |
Nearby Transport
| Name | NLC | TLC | Distance |
|---|---|---|---|
| Banbury | 4502 | BAN | 2.93 KM |
| Kings Sutton | 4508 | KGS | 9.28 KM |
Nearby Listings
| Address | Price | Type | Score | Distance |
|---|---|---|---|---|
| Wardington Road, Banbury, OX16 | £ 490,000 | BUY | 8 / 10 | 0.00 KM |
| Banbury, Oxfordshire, OX16 | £ 375,000 | BUY | 6 / 10 | 0.01 KM |
| Horley Drive, Banbury, OX16 | £ 387,500 | BUY | 7 / 10 | 0.07 KM |
| Banbury, Oxfordshire, OX16 | £ 350,000 | BUY | 6 / 10 | 0.07 KM |
| Banbury, Oxfordshire, OX16 | £ 270,000 | BUY | 7 / 10 | 0.09 KM |
Nearby Properties
| Address | Price | Distance |
|---|---|---|
| 22 Hardwick Hill | £ 325,000 | 0.23 KM |
| 24 Hardwick Hill | £ 392,000 | 0.23 KM |
| 40 Claydon Close | £ 280,000 | 0.27 KM |
| 2 Pinson Close | £ 209,000 | 0.82 KM |
| 5 Pinson Close | £ 241,000 | 0.82 KM |