BR
Butts Way, North Tawton, Devon
By Bradleys
£ 155,000
Bradleys says ..
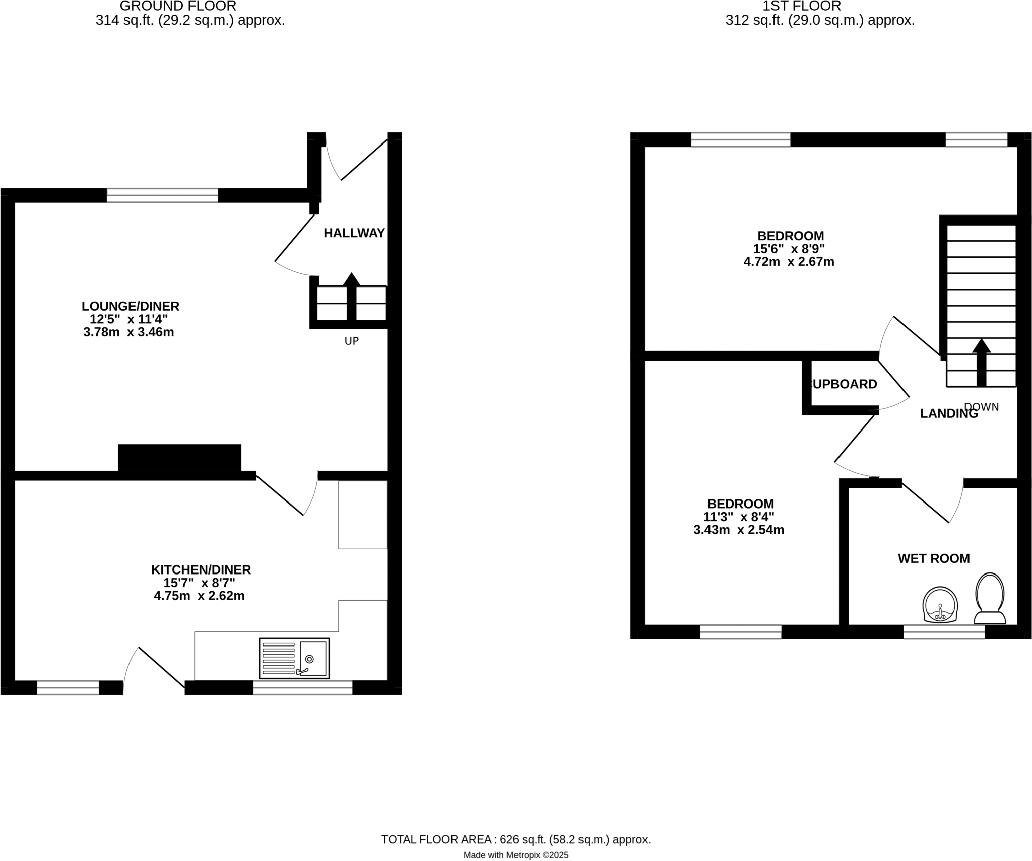
IDEAL FIRST TIME BUY WITH VIEWS OVER SURROUNDING FARMLAND! NO CHAIN. This semi detached would make an ideal first time buy with accommodation comprsing of 12'5 lounge, 15'7 kitchen/diner, two double bedrooms and a wet room. uPVC double glazing. Gas central heating with a condensing boil...
- Bedrooms
- 2
- Bathrooms
- 1
The heatmap indicates the level of crime in the area. The color of the heatmap indicates the crime severity and recency.
Metrics Year-on-Year
- Average area value
- 293,023.00 £Increased by 0.76 %
- Average area rental value
- 1,170.00 £/moIncreased by 31.61 %
- Est rental Yield
- 4.79 %Increased by 30.52 %
- Crime Rate
- 181.00 %Unchanged by 0.00 %
from 290,805.00 £
from 889.00 £/mo
from 3.67 %
from 181.00 %
Agent Activity
Bradleys created the listing.
Nearby Schools
| Name | Type | Ofsted | Distance |
|---|---|---|---|
| North Tawton Community Primary School And Nursery | Academy Converter | 0.46 KM | |
| Spreyton School | Foundation School | Good | 7.69 KM |
| Winkleigh Primary School | Foundation School | Good | 8.07 KM |
| South Tawton Primary School | Academy Converter | 8.14 KM | |
| Bow Community Primary School | Community School | Good | 9.30 KM |
Images
Nearby Streets
| Name | Average Price | Average Sqft | Distance |
|---|---|---|---|
| Stoat Mews | £ 180,000 | 0 | 0.00 KM |
| Orchard Court | £ 0 | 0 | 0.00 KM |
| Barton Close | £ 170,000 | 0 | 0.00 KM |
| Foxglove Court | £ 0 | 0 | 0.00 KM |
| Cornfield Way | £ 318,078 | 0 | 0.00 KM |
Nearby Transport
| Name | NLC | TLC | Distance |
|---|---|---|---|
| Sampford Courtenay | 8724 | SMC | 6.41 KM |
Nearby Listings
| Address | Price | Type | Score | Distance |
|---|---|---|---|---|
| Butts Way, North Tawton, Devon | £ 155,000 | BUY | Unknown | 0.00 KM |
| Orchard Court, North Tawton, Devon, EX20 | £ 117,000 | BUY | Unknown | 0.09 KM |
| North Tawton, Devon | £ 230,000 | BUY | Unknown | 0.14 KM |
| Fore Street, North Tawton, EX20 | £ 500,000 | BUY | Unknown | 0.16 KM |
| North Tawton, Devon | £ 230,000 | BUY | 6 / 10 | 0.17 KM |
Nearby Properties
| Address | Price | Distance |
|---|---|---|
| 29 Butts Way | £ 142,000 | 0.01 KM |
| 21 Butts Way | £ 159,000 | 0.01 KM |
| 22 Butts Way | £ 193,000 | 0.01 KM |
| 17 Butts Way | £ 185,000 | 0.01 KM |
| 7 Butts Way | £ 125,000 | 0.01 KM |