Glenhurst Road, North Finchley, London
By Excel Property Services
£ 550,000
Reviews
3 out of 5 stars
Excel Property Services says ..
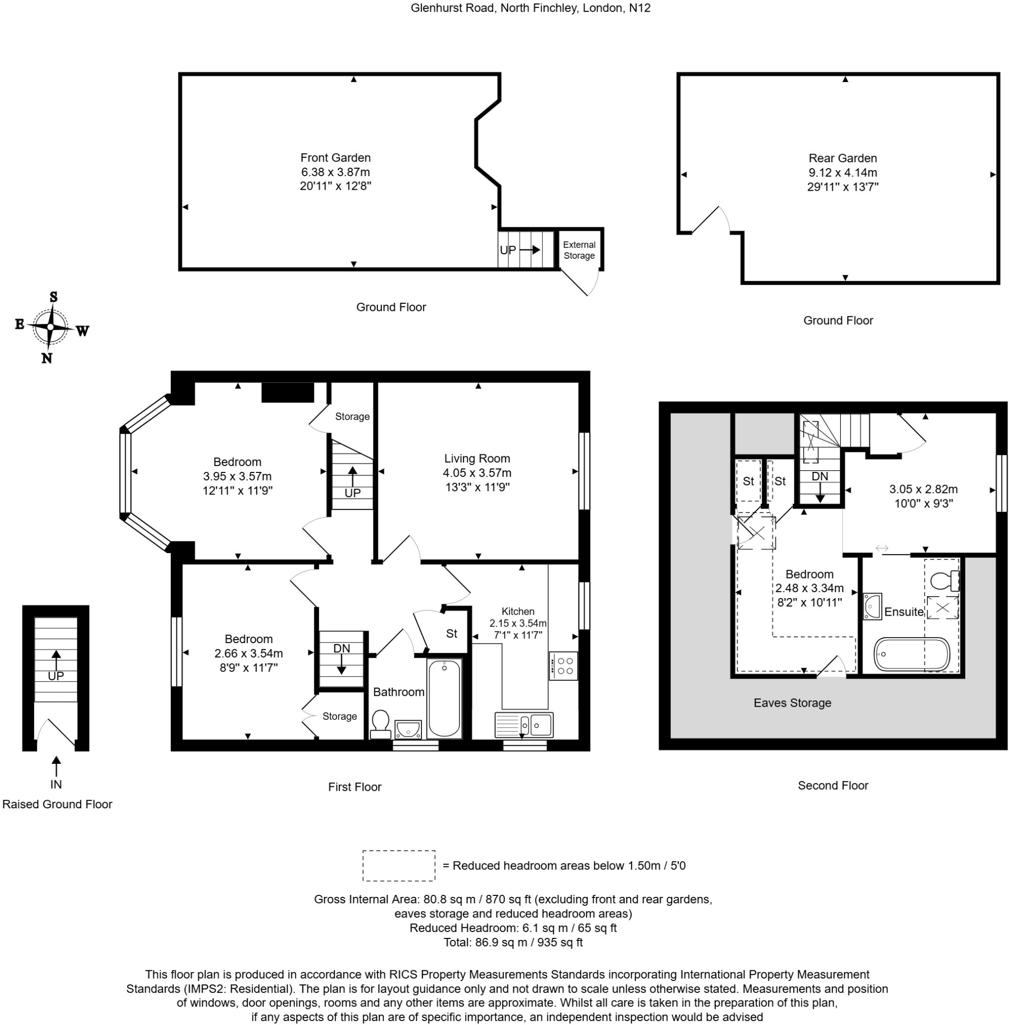
Open Day 18th January | Newly Refurbished & Extended | Share-of-Freehold | Three Double Bedroom Maisonette | Naturally Bright & Spacious | Stylish Fitted Kitchen | Share of Private Garden | Elegant Principle Bedroom | Bespoke Fitted Storage | Luxury En Suite Bathroom | Contemporary Family...
Property Oracle says ..
This three-bedroom maisonette in North Finchley, London, presents a compelling proposition for potential buyers. The property boasts a modern, updated interior, visible in high-quality photographs showcasing a newly refurbished kitchen and a stylish, contemporary bathroom. The open-plan living area and ample natural light contribute to a spacious and inviting atmosphere. While the property benefits from a private garden, it appears relatively small in size. However, it’s location in a desirable area is a considerable asset, with its proximity to highly-rated schools (Wren Academy Finchley and Woodhouse College, both rated Outstanding by Ofsted) making it particularly attractive to families. Transport links, while not immediately adjacent, offer reasonable commuting options to central London, though this might be a drawback for commuters prioritising quick travel times. The listing price of £550,000 requires further context. Lack of details on local average price per square foot makes an exact valuation impossible. However, in comparing to other properties in the nearby streets (many with less appealing descriptions or significantly different property types), it’s reasonable to assert that the list price is within the expected range for the market. In summary, this property offers a good balance of desirable features, but prospective buyers should carefully consider the transport links and conduct further research on the specific average price per square foot in this local area before making a decision. The garden, however, appears to be a smaller one than that which is often advertised, suggesting that one should not overestimate the size of the property overall.
Therefore, we give this property 6 / 10. *Disclaimer: This is our option and does constitute a recommendation or financial advice. Do your own research. *
- Price
- 7
- Condition
- 8
- Location
- 7
- Land
- 4
- Bedrooms
- 3
- Bathrooms
- 2
- Sqft (est)
- 870.00
The heatmap indicates the level of crime in the area. The color of the heatmap indicates the crime severity and recency.
Metrics Year-on-Year
- Average area value
- 461,429.00 £Increased by 13.94 %
- Est sale value
- 480,240.00 £Increased by 13.58 %
- Average area rental value
- 1,822.00 £/moIncreased by 0.77 %
- Est letting value
- 1,740.00 £/moUnchanged by 0.00 %
- Est rental Yield
- 4.74 %Decreased by 11.57 %
- Crime Rate
- 2.00 %Unchanged by 0.00 %
Agent Activity
Excel Property Services created the listing.
Nearby Schools
| Name | Type | Ofsted | Distance |
|---|---|---|---|
| Woodside School | Other Independent Special School | 0.46 KM | |
| Wren Academy Finchley | Academy Sponsor Led | Outstanding | 0.48 KM |
| Sacks Morasha Jewish Primary School | Academy Converter | 0.49 KM | |
| Woodhouse College | Academy 16-19 Converter | Outstanding | 0.57 KM |
| Summerside Primary Academy | Academy Sponsor Led | Good | 0.81 KM |
Images
Nearby Streets
| Name | Average Price | Average Sqft | Distance |
|---|---|---|---|
| Castle Mews | £ 0 | 0 | 0.00 KM |
| A1003 | £ 379,000 | 0 | 0.00 KM |
| High Road | £ 0 | 0 | 0.00 KM |
| Coleridge Road | £ 0 | 0 | 0.00 KM |
| Lawrence Campe Close | £ 0 | 0 | 0.00 KM |
Nearby Transport
| Name | NLC | TLC | Distance |
|---|---|---|---|
| Oakleigh Park | 6020 | OKL | 2.41 KM |
| New Southgate | 6019 | NSG | 3.02 KM |
| New Barnet | 6018 | NBA | 3.59 KM |
| Bowes Park | 6027 | BOP | 5.59 KM |
| Hadley Wood | 6075 | HDW | 5.83 KM |
Nearby Listings
| Address | Price | Type | Score | Distance |
|---|---|---|---|---|
| Glenhurst Road, London | £ 500,000 | BUY | 7 / 10 | 0.00 KM |
| Glenhurst Road, London, N12 | £ 500,000 | BUY | 8 / 10 | 0.02 KM |
| Beech Lawns, North Finchley, London, N12 | £ 330,000 | BUY | 6 / 10 | 0.04 KM |
| London, N12 | £ 340,000 | BUY | 4 / 10 | 0.04 KM |
| Beech Lawns, North Finchley, London, N12 | £ 330,000 | BUY | 5 / 10 | 0.04 KM |
Nearby Properties
| Address | Price | Distance |
|---|---|---|
| 27 Glenhurst Road | £ 245,000 | 0.00 KM |
| 58 Glenhurst Road | £ 6,000 | 0.00 KM |
| 49 Glenhurst Road | £ 165,000 | 0.00 KM |
| 50 Glenhurst Road | £ 143,000 | 0.00 KM |
| 47 Glenhurst Road | £ 425,000 | 0.00 KM |