Longmeadow, Frimley, Camberley, Surrey, GU16
By Michael Usher Sales and Lettings
£ 525,000
Reviews
3 out of 5 stars
Michael Usher Sales and Lettings says ..
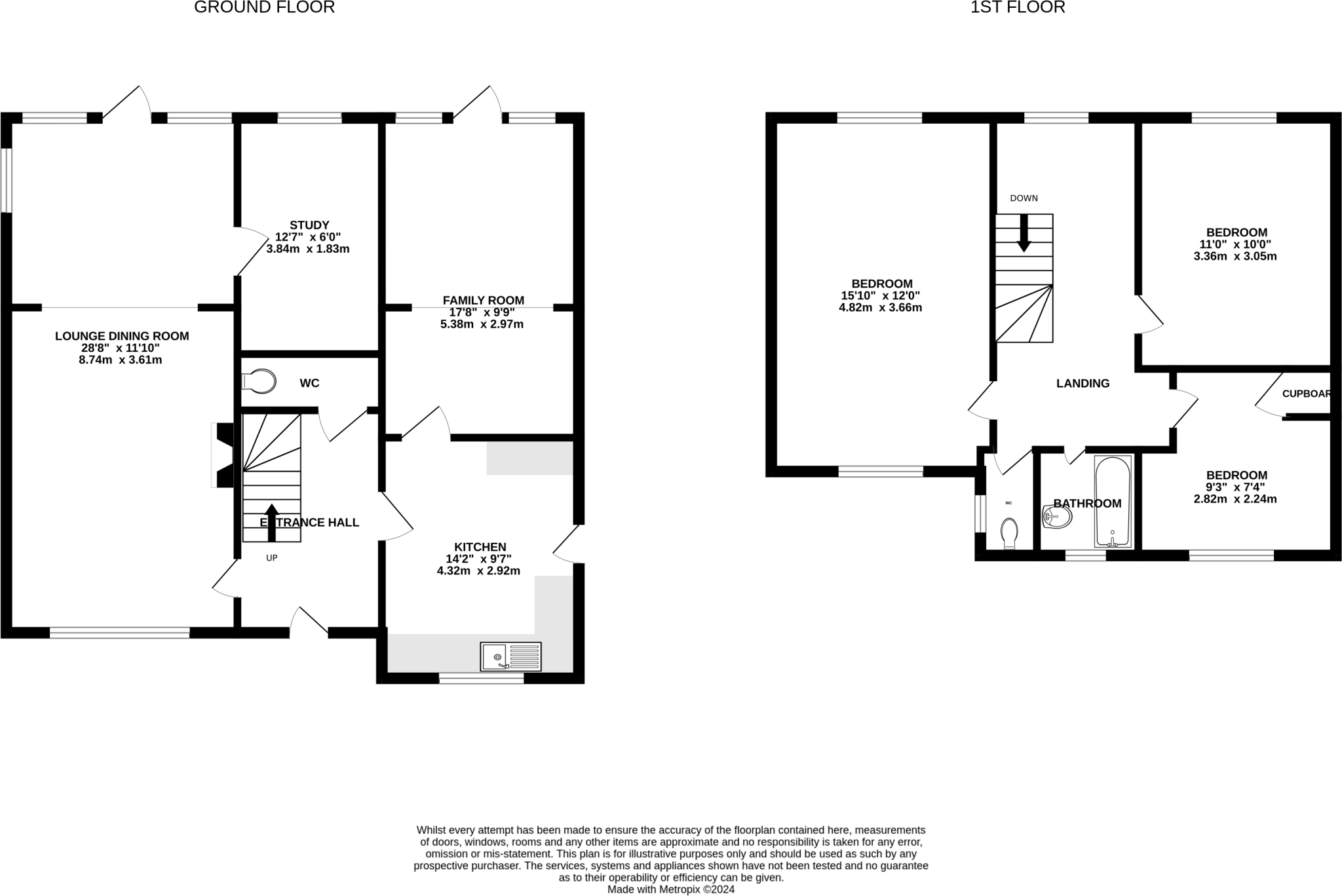
Michael Usher Sales - An extended three bedroom detached family home offering extensive living accommodation requiring modernisation and refurbishment throughout, set on a substantial plot and offered to the market with no onward chain complications. The property is located on a sought after resi...
Property Oracle says ..
This three-bedroom detached house in Frimley, Camberley, Surrey, is listed at £525,000. The property presents as needing a comprehensive refurbishment. The interior photographs showcase dated decor, indicating the need for modernisation throughout. The property has a sizeable garden as shown in several external photographs, this is a significant advantage, offering potential for expansion and family living. The listing mentions ‘no onward chain complications’, which could be a beneficial point for prospective buyers. The location is positive, with nearby schools and convenient access to train stations providing good transport links to London. However, potential buyers should budget for the substantial costs associated with renovation and modernisation. More information on the plot size and the condition of the property would enhance the property evaluation. The lack of sqft data for nearby properties makes a direct price comparison impossible.
Therefore, we give this property 6 / 10. *Disclaimer: This is our option and does constitute a recommendation or financial advice. Do your own research. *
- Price
- 7
- Condition
- 4
- Location
- 7
- Land
- 6
- Bedrooms
- 3
- Bathrooms
- 1
- Sqft (est)
- 1,158.95
The heatmap indicates the level of crime in the area. The color of the heatmap indicates the crime severity and recency.
Metrics Year-on-Year
- Average area value
- 563,842.00 £Increased by 75.09 %
- Est sale value
- 811,265.00 £Increased by 145.61 %
- Average area rental value
- 1,093.00 £/moDecreased by 30.87 %
- Est letting value
- 1,158.95 £/moUnchanged by 0.00 %
- Est rental Yield
- 2.33 %Decreased by 60.44 %
- Crime Rate
- 13.00 %Unchanged by 0.00 %
Agent Activity
Michael Usher Sales and Lettings marked this listing as sold.
Michael Usher Sales and Lettings created the listing.
Nearby Schools
| Name | Type | Ofsted | Distance |
|---|---|---|---|
| The Grove Primary Academy | Academy Converter | Good | 0.57 KM |
| Lakeside Nursery & Primary Academy | Academy Converter | Good | 0.97 KM |
| St Augustine'S Catholic Primary School | Academy Converter | 1.02 KM | |
| Tomlinscote School | Academy Converter | 1.07 KM | |
| Ravenscote Junior School | Academy Converter | 1.29 KM |
Images
Nearby Streets
| Name | Average Price | Average Sqft | Distance |
|---|---|---|---|
| Chobham Road Footpath | £ 1,000,000 | 0 | 0.00 KM |
| Martin Way | £ 0 | 0 | 0.00 KM |
| Beech Avenue | £ 0 | 0 | 0.00 KM |
| The Boulevard | £ 0 | 0 | 0.00 KM |
| Connaught Road | £ 662,500 | 0 | 0.00 KM |
Nearby Transport
| Name | NLC | TLC | Distance |
|---|---|---|---|
| Camberley | 5682 | CAM | 1.84 KM |
| Frimley | 5683 | FML | 2.34 KM |
| Farnborough North | 5688 | FNN | 2.96 KM |
| Farnborough (Main) | 5521 | FNB | 4.24 KM |
| Blackwater | 5625 | BAW | 5.06 KM |
Nearby Listings
| Address | Price | Type | Score | Distance |
|---|---|---|---|---|
| Longmeadow, Frimley, Camberley, Surrey, GU16 | £ 525,000 | BUY | 6 / 10 | 0.00 KM |
| Camberley, Surrey, GU15 | £ 280,000 | BUY | 6 / 10 | 0.12 KM |
| Portsmouth Road, Camberley, Surrey, GU15 | £ 250,000 | BUY | 7 / 10 | 0.12 KM |
| Camberley, Surrey, GU15 | £ 270,000 | BUY | Unknown | 0.12 KM |
| Cadogan Court, 100 Portsmouth Road, CAMBERLEY, GU15 | £ 249,950 | BUY | 6 / 10 | 0.12 KM |
Nearby Properties
| Address | Price | Distance |
|---|---|---|
| 65 Longmeadow | £ 232,000 | 0.03 KM |
| 67 Longmeadow | £ 355,000 | 0.03 KM |
| 69 Longmeadow | £ 302,000 | 0.03 KM |
| 20 Raleigh Way | £ 183,000 | 0.11 KM |
| 16 Raleigh Way | £ 217,500 | 0.11 KM |