Walpole Road, Slough, Berkshire
RO

Walpole Road, Slough, Berkshire

By Romans

£ 225,000

Reviews

2 out of 5 stars

Romans says ..

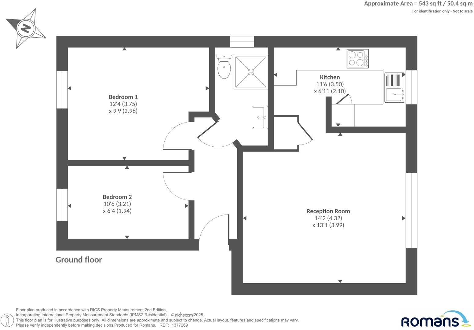
A two bedroom ground floor apartment sold with no onward chain. Accommodation comprises a living room, kitchen, 2 bedrooms and a bathroom suite. Perfectly located just short walk from Burnham station and local shops for essential needs, close by to motorway M4 and easy acce...

Property Oracle says ..

This is a two-bedroom apartment located in Slough. The property is in a location with access to nearby schools and transportation. The internal condition suggests that the property could benefit from modernisation. The apartment does not have a garden. Considering the location, condition and size, the price appears to be reasonable.

Therefore, we give this property 4 / 10. *Disclaimer: This is our option and does constitute a recommendation or financial advice. Do your own research. *

Price
7
Condition
5
Location
6
Land
1
Bedrooms
2
Bathrooms
1
Sqft (est)
126.80

The heatmap indicates the level of crime in the area. The color of the heatmap indicates the crime severity and recency.

Metrics Year-on-Year

Average area value
736,250.00 £
Increased by 72.69 %
from 426,349.00 £
Est sale value
71,642.00 £
Increased by 17.71 %
from 60,864.00 £
Average area rental value
1,963.00 £/mo
Increased by 6.51 %
from 1,843.00 £/mo
Est letting value
126.80 £/mo
Decreased by 50.00 %
from 253.60 £/mo
Est rental Yield
3.20 %
Decreased by 38.34 %
from 5.19 %
Crime Rate
2.00 %
Unchanged by 0.00 %
from 2.00 %

Agent Activity

  • Romans created the listing.

Nearby Schools

NameTypeOfstedDistance
Al-Madani Independent Grammar SchoolOther Independent SchoolGood0.12 KM
Orchard Avenue Children'S CentreChildren's Centre0.54 KM
St. Andrew'S Way Children'S CentreChildren's Centre0.57 KM
Cippenham Nursery SchoolLocal Authority Nursery SchoolGood0.58 KM
Priory SchoolFoundation SchoolGood0.61 KM

Images

1377269-18-691c42... 1377269-10-691c41... 1377269-11-691c41... 1377269-12-691c41... 1377269-13-691c41... 1377269-14-691c41... 1377269-16-691c42... 1377269-15-691c42... 1377269-19-691c43... 1377269-20-691c43... 1377269-1-691c410... 1377269-2-691c411... 1377269-3-691c412... 1377269-4-691c413... 1377269-5-691c414... 1377269-17-691c42... 1377269-6-691c414... 1377269-7-691c415... 1377269-8-691c416... 1377269-9-691c417...

Nearby Streets

NameAverage PriceAverage SqftDistance
St.Georges Crescent £ 375,00000.00 KM
Bosworth court £ 000.00 KM
Saint Andrews Way £ 427,47500.00 KM
Huntercombe Spur £ 600,00000.00 KM
Wyeth Close £ 600,00000.00 KM

Nearby Transport

NameNLCTLCDistance
Burnham3176BNM0.60 KM
Taplow3151TAP3.30 KM
Windsor And Eton Central3175WNC6.27 KM
Windsor And Eton Riverside5672WNR6.42 KM
Slough3172SLO6.74 KM

Nearby Listings

AddressPriceTypeScoreDistance
Walpole Road, Slough, Berkshire £ 225,000BUY4 / 100.00 KM
Walpole Road, Cippenham £ 230,000BUY5 / 100.05 KM
Walpole Road, Cippenham, SL1 £ 155,000BUY5 / 100.05 KM
Walpole Road, Cippenham, Berkshire, SL1 6PA £ 139,950BUY8 / 100.05 KM
Lowestoft Drive, Cippenham, Berkshire, SL1 £ 190,000BUY6 / 100.05 KM

Nearby Properties

AddressPriceDistance
198 Walpole Road £ 210,0000.00 KM
186 Walpole Road £ 99,9500.00 KM
100 Walpole Road £ 96,9500.00 KM
140 Walpole Road £ 155,0000.00 KM
160 Walpole Road £ 169,0000.00 KM