Portsdown Hill Road, Havant, Hampshire, PO9
By Beals
£ 565,000
Reviews
3 out of 5 stars
Beals says ..
This substantial detached home, which sits in a well-regarded Bedhampton location, this would make an ideal family home.
Property Oracle says ..
Therefore, we give this property 7 / 10. *Disclaimer: This is our option and does constitute a recommendation or financial advice. Do your own research. *
- Price
- 7
- Condition
- 9
- Location
- 8
- Land
- 7
- Bedrooms
- 3
- Bathrooms
- 1
- Sqft (est)
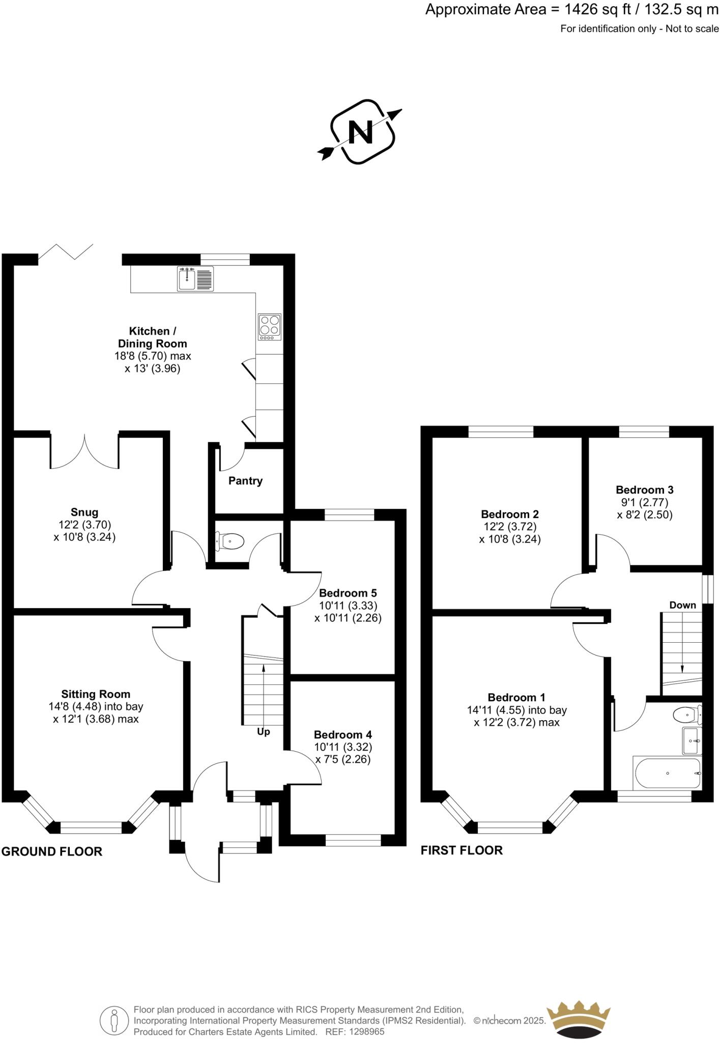
- 1,426.00
The heatmap indicates the level of crime in the area. The color of the heatmap indicates the crime severity and recency.
Metrics Year-on-Year
- Average area value
- 409,200.00 £Increased by 14.98 %
- Est sale value
- 556,140.00 £Increased by 11.11 %
- Average area rental value
- 1,400.00 £/moIncreased by 0.94 %
- Est letting value
- 1,426.00 £/moUnchanged by 0.00 %
- Est rental Yield
- 4.11 %Decreased by 12.18 %
- Crime Rate
- 2.00 %Unchanged by 0.00 %
from 355,873.00 £
from 500,526.00 £
from 1,387.00 £/mo
from 1,426.00 £/mo
from 4.68 %
from 2.00 %
Agent Activity
Beals created the listing.
Nearby Schools
| Name | Type | Ofsted | Distance |
|---|---|---|---|
| Bidbury Junior School | Community School | Good | 1.17 KM |
| Bidbury Infant School | Community School | Outstanding | 1.21 KM |
| St Thomas More'S Catholic Primary School, Havant | Voluntary Aided School | Good | 1.26 KM |
| Barncroft Primary School | Community School | Good | 1.35 KM |
| Releasing Potential School | Other Independent School | Good | 1.50 KM |
Images
Nearby Streets
| Name | Average Price | Average Sqft | Distance |
|---|---|---|---|
| The Dell | £ 0 | 0 | 0.00 KM |
| Anson Close | £ 319,750 | 0 | 0.00 KM |
| Cotton Way | £ 499,950 | 0 | 0.00 KM |
| Hazelwood Avenue | £ 455,000 | 0 | 0.00 KM |
| Applewood Road | £ 0 | 0 | 0.00 KM |
Nearby Transport
| Name | NLC | TLC | Distance |
|---|---|---|---|
| Bedhampton | 5538 | BDH | 1.38 KM |
| Havant | 5532 | HAV | 2.95 KM |
| Warblington | 5264 | WBL | 4.55 KM |
| Hilsea | 5539 | HLS | 6.30 KM |
| Cosham | 5896 | CSA | 6.68 KM |
Nearby Listings
| Address | Price | Type | Score | Distance |
|---|---|---|---|---|
| Portsdown Hill Road, Havant, Hampshire, PO9 | £ 565,000 | BUY | 7 / 10 | 0.00 KM |
| Portsdown Hill Road, Havant | £ 490,000 | BUY | Unknown | 0.04 KM |
| Portsdown Hill Road, Bedhampton | £ 400,000 | BUY | Unknown | 0.07 KM |
| Maylands Road, Bedhampton | £ 995,000 | BUY | 5 / 10 | 0.08 KM |
| Bedhampton Hill, Bedhampton, Havant | £ 500,000 | BUY | Unknown | 0.14 KM |
Nearby Properties
| Address | Price | Distance |
|---|---|---|
| 2 Portsdown Hill Road | £ 330,000 | 0.04 KM |
| 10 Portsdown Hill Road | £ 640,000 | 0.04 KM |
| 20 Maylands Road | £ 308,000 | 0.07 KM |
| 4 Maylands Road | £ 413,000 | 0.07 KM |
| 28 Maylands Road | £ 636,150 | 0.07 KM |