Purplebricks says ..
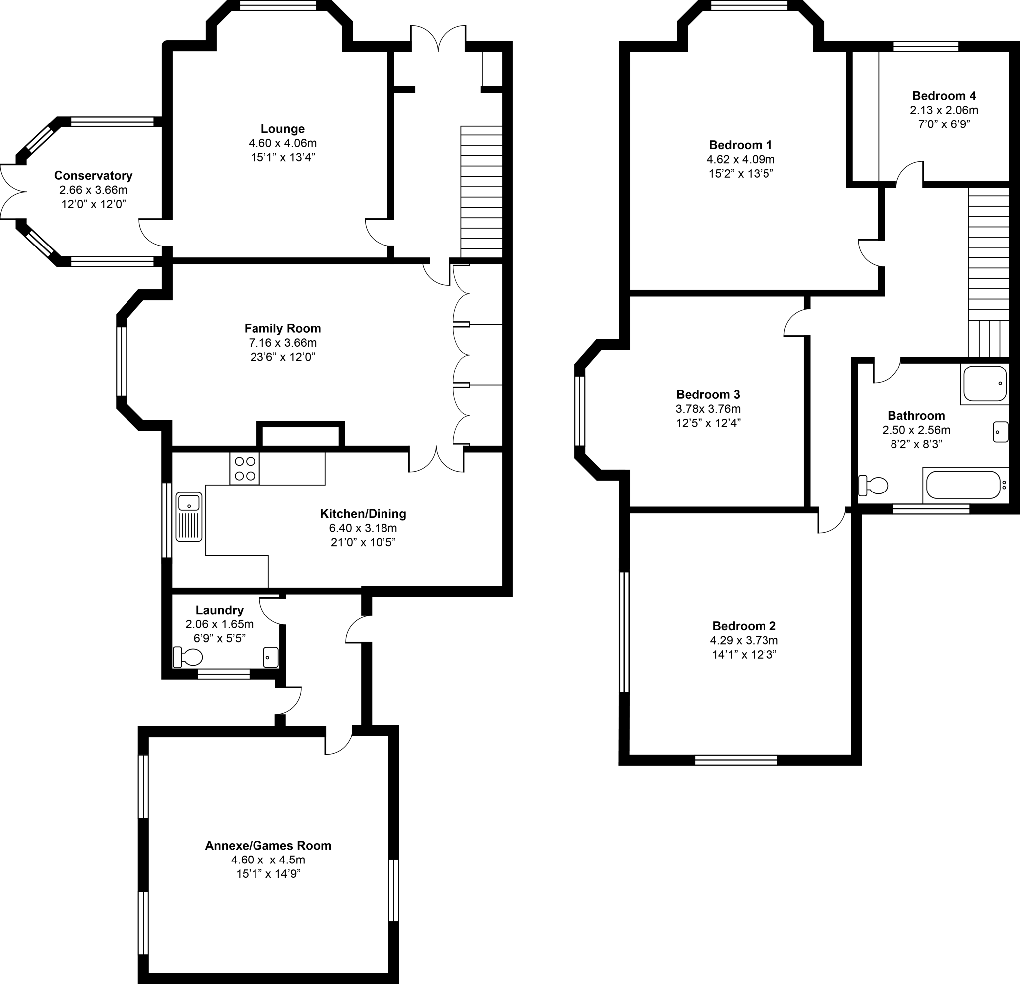
Spacious and extended 1930's semi-detached house set on an extensive corner plot in the much sought-after area of Broughton and is conveniently located for walking to local junior and high schools, Co-op, pub and restaurant, motorway connections and bus routes to Lancaster and Preston City Centre...
Property Oracle says ..
Therefore, we give this property 8 / 10. *Disclaimer: This is our option and does constitute a recommendation or financial advice. Do your own research. *
- Price
- 9
- Condition
- 8
- Location
- 9
- Land
- 7
- Bedrooms
- 4
- Bathrooms
- 1
- Sqft (est)
- 1,710.49
The heatmap indicates the level of crime in the area. The color of the heatmap indicates the crime severity and recency.
Metrics Year-on-Year
- Average area value
- 322,630.00 £Decreased by 7.75 %
- Est sale value
- 557,619.74 £Increased by 25.87 %
- Average area rental value
- 1,067.00 £/moDecreased by 13.67 %
- Est letting value
- 1,710.49 £/mo
- Est rental Yield
- 3.97 %Decreased by 6.37 %
- Crime Rate
- 11.00 %Unchanged by 0.00 %
from 349,734.00 £
from 443,016.91 £
from 1,236.00 £/mo
from 0.00 £/mo
from 4.24 %
from 11.00 %
Agent Activity
Purplebricks created the listing.
Nearby Schools
| Name | Type | Ofsted | Distance |
|---|---|---|---|
| Broughton High School | Community School | Outstanding | 0.13 KM |
| Broughton-In-Amounderness Church Of England Primary School | Voluntary Aided School | Outstanding | 0.45 KM |
| Our Lady And St Edward'S Catholic Primary School, Preston | Voluntary Aided School | Good | 1.49 KM |
| Harris Primary School | Community School | Good | 1.81 KM |
| St Mary And St Andrew'S Catholic Primary School, Barton Newsham | Voluntary Aided School | Good | 2.12 KM |
Images
Nearby Streets
| Name | Average Price | Average Sqft | Distance |
|---|---|---|---|
| Northway | £ 0 | 0 | 0.00 KM |
| Wentworth Drive | £ 0 | 0 | 0.00 KM |
| Sandy Gate Lane | £ 0 | 0 | 0.00 KM |
| Parkside Drive | £ 320,000 | 0 | 0.00 KM |
| James Towers Way | £ 0 | 0 | 0.00 KM |
Nearby Transport
| Name | NLC | TLC | Distance |
|---|---|---|---|
| Preston (Lancs) | 2753 | PRE | 6.12 KM |
Nearby Listings
| Address | Price | Type | Score | Distance |
|---|---|---|---|---|
| Broughton, Preston, PR3 | £ 400,000 | BUY | 8 / 10 | 0.00 KM |
| Woodplumpton Lane, Preston, PR3 | £ 295,000 | BUY | 7 / 10 | 0.01 KM |
| Woodplumpton Lane, Broughton, Preston, Lancashire, PR3 | £ 390,000 | BUY | 7 / 10 | 0.01 KM |
| Woodplumpton Lane, Broughton, Preston | £ 275,000 | BUY | 6 / 10 | 0.06 KM |
| Northway, Broughton, Preston, Lancashire, PR3 | £ 210,000 | BUY | 6 / 10 | 0.18 KM |
Nearby Properties
| Address | Price | Distance |
|---|---|---|
| 36 Woodplumpton Lane | £ 196,000 | 0.01 KM |
| 24 Woodplumpton Lane | £ 327,500 | 0.01 KM |
| 43 Woodplumpton Lane | £ 248,000 | 0.01 KM |
| 48 Woodplumpton Lane | £ 155,000 | 0.01 KM |
| 44 Woodplumpton Lane | £ 648,000 | 0.01 KM |