West Cliff Road , Bournemouth,
By Christopher Shaw Residential
£ 150,000
Reviews
3 out of 5 stars
Christopher Shaw Residential says ..
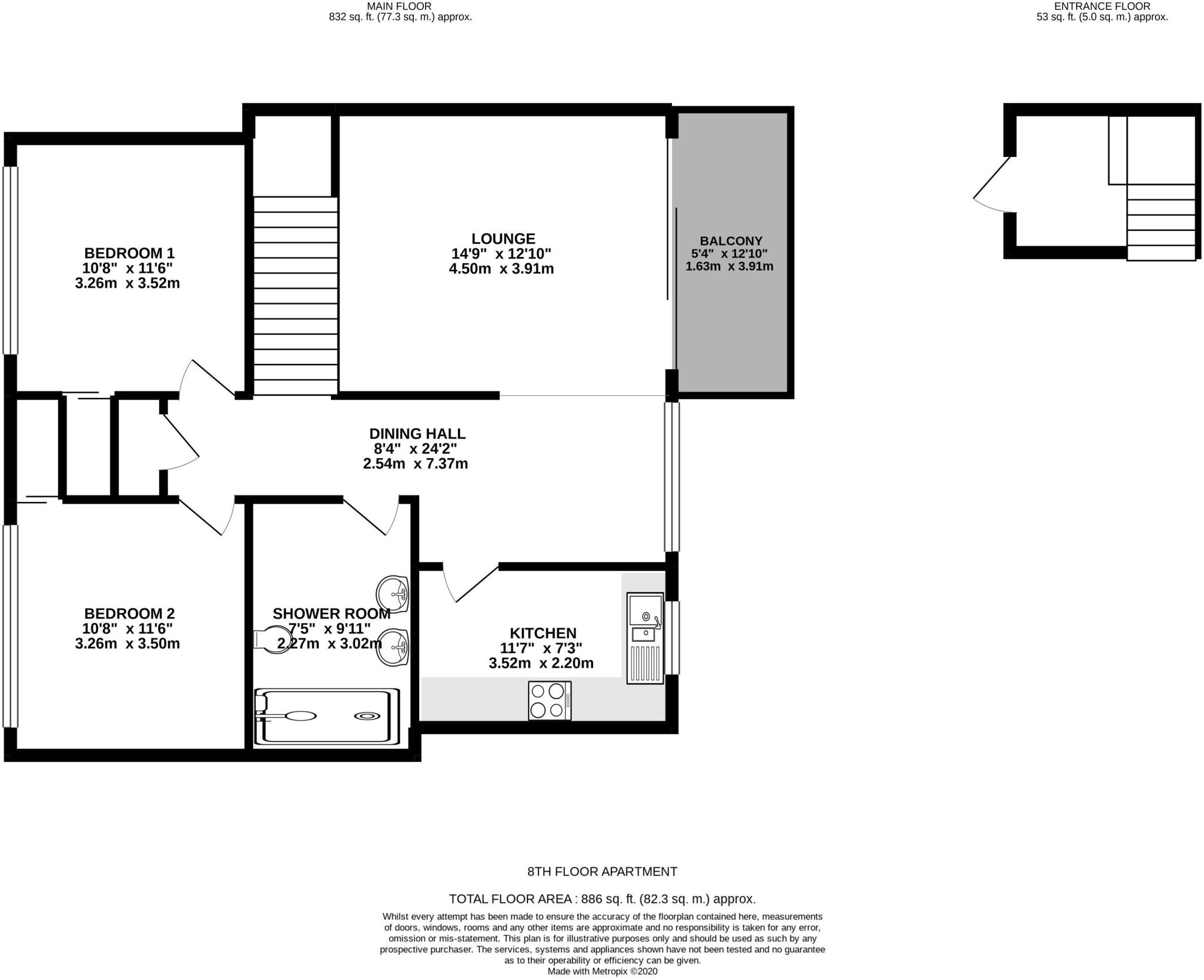
** For sale by online auction ** Pre-auction offers considered ** MRKT Property Experts are delighted to offer this two bedroom apartment on the 8th floor of this substantial block offering stunning sea views. **Watch our video viewing**
Property Oracle says ..
This is a two-bedroom flat in West Cliff, Bournemouth. The property benefits from its location, being close to the sea and local amenities. While the internal condition is adequate, there is room for modernisation which could increase its value. The flat has a balcony, offering views and outdoor space, which is a plus for a flat. The price appears competitive for the area.
Therefore, we give this property 6 / 10. *Disclaimer: This is our option and does constitute a recommendation or financial advice. Do your own research. *
- Price
- 8
- Condition
- 6
- Location
- 7
- Land
- 4
- Bedrooms
- 2
- Bathrooms
- 1
The heatmap indicates the level of crime in the area. The color of the heatmap indicates the crime severity and recency.
Metrics Year-on-Year
- Average area value
- 376,737.00 £Increased by 7.60 %
- Average area rental value
- 1,284.00 £/moDecreased by 2.65 %
- Est rental Yield
- 4.09 %Decreased by 9.51 %
- Crime Rate
- 17.00 %Unchanged by 0.00 %
Agent Activity
Christopher Shaw Residential created the listing.
Nearby Schools
| Name | Type | Ofsted | Distance |
|---|---|---|---|
| St Michael'S Church Of England Primary School | Academy Converter | Good | 0.60 KM |
| Kings Bournemouth | Other Independent School | Good | 1.34 KM |
| Bournemouth Christian School | Other Independent School | Good | 1.82 KM |
| Livingstone Academy Bournemouth | Free Schools | 1.85 KM | |
| St Martin'S School | Other Independent School | 2.21 KM |
Images
Nearby Streets
| Name | Average Price | Average Sqft | Distance |
|---|---|---|---|
| West Cliff Promenade | £ 0 | 0 | 0.00 KM |
| Durley Roundabout | £ 332,980 | 0 | 0.00 KM |
| Avenue Road | £ 200,000 | 0 | 0.00 KM |
| Bournemouth Square | £ 0 | 0 | 0.00 KM |
| St Stephen's Road | £ 0 | 0 | 0.00 KM |
Nearby Transport
| Name | NLC | TLC | Distance |
|---|---|---|---|
| Bournemouth | 5876 | BMH | 2.41 KM |
| Branksome | 5875 | BSM | 4.17 KM |
| Pokesdown | 5885 | POK | 6.65 KM |
| Parkstone (Dorset) | 5882 | PKS | 7.16 KM |
Nearby Listings
| Address | Price | Type | Score | Distance |
|---|---|---|---|---|
| West Cliff Road , Bournemouth, | £ 150,000 | BUY | 6 / 10 | 0.00 KM |
| 95 St Michaels Road, West Cliff, Bournemouth, BH2 | £ 170,000 | BUY | 6 / 10 | 0.04 KM |
| 95 St Michaels Road, West Cliff, Bournemouth, BH2 | £ 158,500 | BUY | 5 / 10 | 0.04 KM |
| St Michaels Road, West Cliff, Bournemouth, BH2 | £ 340,000 | BUY | 6 / 10 | 0.05 KM |
| St. Michaels Road, Bournemouth, Dorset, BH2 | £ 399,950 | BUY | Unknown | 0.06 KM |
Nearby Properties
| Address | Price | Distance |
|---|---|---|
| 121 West Hill Road | £ 245,000 | 0.13 KM |
| 30a Tregonwell Road | £ 765,000 | 0.22 KM |
| 44 St Michaels Road | £ 333,000 | 0.25 KM |
| 32 St Michaels Road | £ 320,000 | 0.25 KM |
| 30 St Michaels Road | £ 315,000 | 0.25 KM |