Tweed Street, Chopwell, Newcastle upon Tyne, Tyne and Wear, NE17
By YOUR MOVE Chris Stonock
£ 65,000
Reviews
2 out of 5 stars
YOUR MOVE Chris Stonock says ..
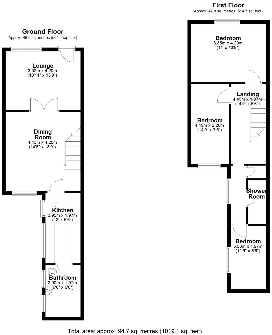
Offered to the market with no upper chain a three bedroom mid terrace property situated on Tweed Street in Chopwell. Viewing is essential to appreciate the accommodation on offer.
Property Oracle says ..
This three-bedroom mid-terraced house located on Tweed Street in Chopwell, Gateshead, is listed at £65,000. The property appears habitable and well-maintained, although showing signs of needing modernising. There is a small yard. The location benefits from proximity to Chopwell Primary School, a ‘Good’ rated Ofsted school, but the distance to train stations at Wylam and Prudhoe suggests reliance on private transport for commuting. Comparable properties in the area appear to support the list price; however, the relatively small size and lack of significant outdoor space may influence buyer interest. Overall, this property would appeal to first-time buyers or investors seeking a project that could be upgraded over time. The lack of detailed square footage information for the property and neighboring properties makes a fully comprehensive analysis challenging. The price per square foot can’t be adequately determined due to missing data in the nearby property listings. Potential buyers are recommended to carry out a thorough inspection and valuation to gauge its true market worth.
Therefore, we give this property 5 / 10. *Disclaimer: This is our option and does constitute a recommendation or financial advice. Do your own research. *
- Price
- 7
- Condition
- 6
- Location
- 6
- Land
- 2
- Bedrooms
- 3
- Bathrooms
- 2
- Sqft (est)
- 1,019.34
The heatmap indicates the level of crime in the area. The color of the heatmap indicates the crime severity and recency.
Metrics Year-on-Year
- Average area value
- 176,429.00 £Decreased by 14.37 %
- Est sale value
- 149,842.98 £Decreased by 30.00 %
- Average area rental value
- 675.00 £/moIncreased by 8.52 %
- Est letting value
- 0.00 £/mo
- Est rental Yield
- 4.59 %Increased by 26.80 %
- Crime Rate
- 0.00 %
Agent Activity
YOUR MOVE Chris Stonock created the listing.
Nearby Schools
| Name | Type | Ofsted | Distance |
|---|---|---|---|
| Chopwell And Highfield Children'S Centre | Children's Centre Linked Site | 1.18 KM | |
| Chopwell Primary School | Community School | Good | 1.18 KM |
| High Spen Primary School | Community School | Good | 2.80 KM |
| Bishop Ian Ramsey Cofe Primary School | Academy Sponsor Led | 3.81 KM | |
| Greenside Primary School | Community School | Outstanding | 4.43 KM |
Images
Nearby Streets
| Name | Average Price | Average Sqft | Distance |
|---|---|---|---|
| Thames Street | £ 0 | 0 | 0.00 KM |
| Owen Terrace | £ 0 | 0 | 0.00 KM |
| Hall Road | £ 0 | 0 | 0.00 KM |
| Prince Street | £ 0 | 0 | 0.00 KM |
| George Close | £ 0 | 0 | 0.00 KM |
Nearby Transport
| Name | NLC | TLC | Distance |
|---|---|---|---|
| Wylam | 7514 | WYM | 6.34 KM |
| Prudhoe | 7509 | PRU | 8.30 KM |
Nearby Listings
| Address | Price | Type | Score | Distance |
|---|---|---|---|---|
| Tweed Street, Chopwell, Newcastle upon Tyne, Tyne and Wear, NE17 | £ 65,000 | BUY | 5 / 10 | 0.00 KM |
| Tweed Street, Chopwell, Newcastle upon Tyne, Tyne and Wear, NE17 | £ 40,000 | BUY | 5 / 10 | 0.00 KM |
| 39 Tweed Street, Chopwell, Newcastle upon Tyne, Tyne and Wear NE17 7DL | £ 20,000 | BUY | 6 / 10 | 0.03 KM |
| 23 Tweed Street, Chopwell, Newcastle upon Tyne, Tyne and Wear NE17 7DL | £ 35,000 | BUY | 6 / 10 | 0.04 KM |
| 37 Tweed Street, Chopwell, Newcastle upon Tyne, Tyne and Wear NE17 7DL | £ 32,000 | BUY | 5 / 10 | 0.04 KM |
Nearby Properties
| Address | Price | Distance |
|---|---|---|
| 22 Tweed Street | £ 52,500 | 0.01 KM |
| 23 Tweed Street | £ 37,000 | 0.01 KM |
| 26 Tweed Street | £ 45,000 | 0.01 KM |
| 15 Tweed Street | £ 39,950 | 0.01 KM |
| 33 Tweed Street | £ 26,500 | 0.01 KM |