Panton Road, Hoole, Chester
UR

Panton Road, Hoole, Chester

By Urban Let (Chester) Ltd

£ 775,000

Reviews

3 out of 5 stars

Urban Let (Chester) Ltd says ..

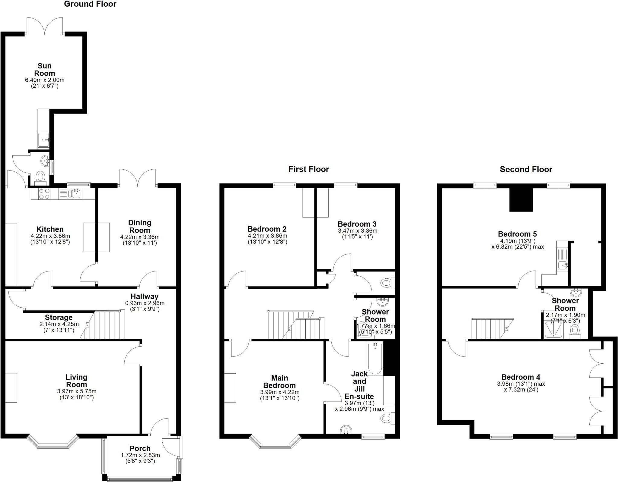
Step into the charm and elegance of 9 Panton Road, an impressive three-storey end-of-terrace Victorian home situated on one of Hoole´s most desirable residential streets. This beautifully maintained property offers the perfect combination of original period features, versatile living spaces,...

Property Oracle says ..

Therefore, we give this property 6 / 10. *Disclaimer: This is our option and does constitute a recommendation or financial advice. Do your own research. *

Price
3
Condition
7
Location
9
Land
7
Bedrooms
5
Bathrooms
3

The heatmap indicates the level of crime in the area. The color of the heatmap indicates the crime severity and recency.

Metrics Year-on-Year

Average area value
350,231.00 £
Increased by 10.96 %
from 315,634.00 £
Average area rental value
1,215.00 £/mo
Increased by 15.28 %
from 1,054.00 £/mo
Est rental Yield
4.16 %
Increased by 3.74 %
from 4.01 %
Crime Rate
5.00 %
Unchanged by 0.00 %
from 5.00 %

Agent Activity

  • Urban Let (Chester) Ltd created the listing.

Nearby Schools

NameTypeOfstedDistance
St Martin'S Academy ChesterFree SchoolsOutstanding0.23 KM
St Werburgh'S And St Columba'S Catholic Primary SchoolVoluntary Aided SchoolGood0.42 KM
Maple Grove SchoolOther Independent Special School0.65 KM
Hoole Church Of England Primary SchoolVoluntary Controlled SchoolGood0.66 KM
Kingsway And Upton Children'S CentreChildren's Centre Linked Site0.78 KM

Images

9 Panton Road, CH... 9 Panton Road, CH... 9 Panton Road, CH... 9 Panton Road, CH... 9 Panton Road, CH... 9 Panton Road, CH... 9 Panton Road, CH... 9 Panton Road, CH... 9 Panton Road, CH... 9 Panton Road, CH... 9 Panton Road, CH... 9 Panton Road, CH... 9 Panton Road, CH... 9 Panton Road, CH... 9 Panton Road, CH... 9 Panton Road, CH... 9 Panton Road, CH... 9 Panton Road, CH... 9 Panton Road, CH... 9 Panton Road, CH... 9 Panton Road, CH... 9 Panton Road, CH... 9 Panton Road, CH... 9 Panton Road, CH... 9 Panton Road, CH... 9 Panton Road, CH... 9 Panton Road, CH... 9 Panton Road, CH... 9 Panton Road, CH... 9 Panton Road, CH... 9 Panton Road, CH... 9 Panton Road, CH...

Nearby Streets

NameAverage PriceAverage SqftDistance
Crawfords Walk £ 000.00 KM
Law Street £ 000.00 KM
Cross Street £ 000.00 KM
Tollemarche Terrace £ 285,00000.00 KM
Station Road £ 000.00 KM

Nearby Transport

NameNLCTLCDistance
Chester2412CTR0.84 KM
Bache2187BAC2.36 KM
Stanlow And Thornton2159SNT9.40 KM
Ellesmere Port2121ELP9.58 KM

Nearby Listings

AddressPriceTypeScoreDistance
Panton Road, Hoole, Chester £ 775,000BUY6 / 100.00 KM
Panton Road, Hoole, Chester £ 395,000BUY8 / 100.03 KM
Vicarage Road, Hoole, Chester £ 475,000BUY7 / 100.07 KM
Hewitt Street, Chester, CH2 £ 325,000BUY6 / 100.08 KM
Panton Road, Hoole, Chester, Cheshire, CH2 £ 260,000BUY5 / 100.12 KM

Nearby Properties

AddressPriceDistance
26 Panton Road £ 500,0000.00 KM
8 Panton Road £ 207,0000.00 KM
10 Panton Road £ 344,0000.00 KM
16 Panton Road £ 300,0000.00 KM
4 Panton Road £ 229,0000.00 KM