Bradleys Mill, Speldhurst, Kent, TN3 0NE
By BidX1
£ 850,000
Reviews
3 out of 5 stars
BidX1 says ..
N/A
Property Oracle says ..
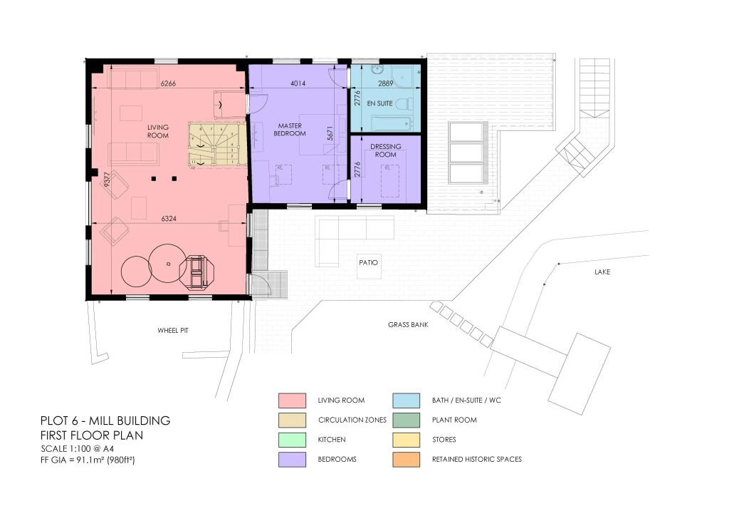
Bradleys Mill presents a unique opportunity to acquire a period property in a sought-after Kent location. Currently undergoing renovation, the detached house offers three bedrooms and three bathrooms, set within a generous plot that includes a mill pond. The property’s location benefits from proximity to highly-rated schools and the charm of Speldhurst village. However, the ongoing renovations mean that significant additional investment is required to complete the project. The listing price reflects both the potential of the finished property and the work required to bring it to completion.
Therefore, we give this property 6 / 10. *Disclaimer: This is our option and does constitute a recommendation or financial advice. Do your own research. *
- Price
- 6
- Condition
- 3
- Location
- 7
- Land
- 8
- Bedrooms
- 3
- Bathrooms
- 3
The heatmap indicates the level of crime in the area. The color of the heatmap indicates the crime severity and recency.
Metrics Year-on-Year
- Average area value
- 655,000.00 £Decreased by 40.52 %
- Average area rental value
- 2,442.00 £/moDecreased by 15.27 %
- Est rental Yield
- 4.47 %Increased by 42.36 %
- Crime Rate
- 0.00 %
Agent Activity
BidX1 created the listing.
Nearby Schools
| Name | Type | Ofsted | Distance |
|---|---|---|---|
| Speldhurst Church Of England Voluntary Aided Primary School | Voluntary Aided School | Outstanding | 0.86 KM |
| Broomhill Bank School | Foundation Special School | Good | 1.39 KM |
| Bidborough Church Of England Voluntary Controlled Primary School | Voluntary Controlled School | Good | 1.90 KM |
| Rusthall St Paul'S Cofe Va Primary School | Voluntary Aided School | Good | 1.99 KM |
| Harmony Children'S Centre | Children's Centre | 1.99 KM |
Images
Nearby Streets
| Name | Average Price | Average Sqft | Distance |
|---|---|---|---|
| Broomhill Road | £ 0 | 0 | 0.00 KM |
| Greenfield Close | £ 0 | 0 | 0.00 KM |
| Penshurst Road | £ 0 | 0 | 0.00 KM |
| Mill Court | £ 1,000,000 | 0 | 0.00 KM |
| Spring Lane | £ 0 | 0 | 0.00 KM |
Nearby Transport
| Name | NLC | TLC | Distance |
|---|---|---|---|
| Tunbridge Wells | 5230 | TBW | 4.77 KM |
| Leigh (Kent) | 5294 | LIH | 4.87 KM |
| High Brooms | 5235 | HIB | 5.65 KM |
| Tonbridge | 5229 | TON | 6.52 KM |
| Hildenborough | 5236 | HLB | 6.83 KM |
Nearby Listings
| Address | Price | Type | Score | Distance |
|---|---|---|---|---|
| Bradleys Mill, Speldhurst, Kent, TN3 0NE | £ 850,000 | BUY | 6 / 10 | 0.00 KM |
| Stockland Green Road, Speldhurst, Tunbridge Wells, Kent, TN3 0TU | £ 140,000 | BUY | 8 / 10 | 0.39 KM |
| Speldhurst Hill, Tunbridge Wells | £ 795,000 | BUY | 7 / 10 | 0.54 KM |
| Lower Church Farm, Speldhurst Hill | £ 650,000 | BUY | 6 / 10 | 0.57 KM |
| Speldhurst Hill, Tunbridge Wells | £ 1,200,000 | BUY | Unknown | 0.57 KM |
Nearby Properties
| Address | Price | Distance |
|---|---|---|
| The Mill House | £ 964,500 | 0.26 KM |
| Shawlands | £ 725,000 | 0.38 KM |
| 1 Wallers | £ 535,000 | 0.57 KM |
| 2 Wallers | £ 610,000 | 0.57 KM |
| 5 Wallers | £ 592,000 | 0.57 KM |