Warrior Square, Manor Park, E12
By Stonebridge Estates
£ 350,000
Reviews
3 out of 5 stars
Stonebridge Estates says ..
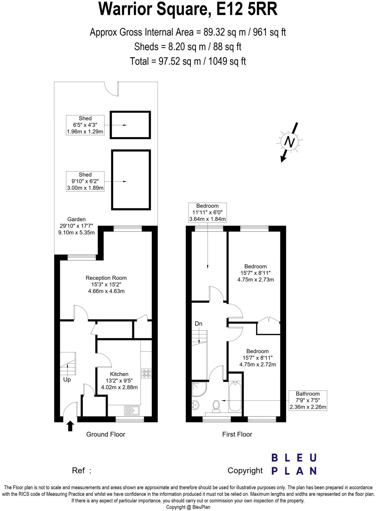
Stonebridge is delighted to present this immaculate three bedroom maisonette with Garden in a Gated Community No Chain Located within a secure and well maintained gated community, this beautifully presented property offers spacious living, generous storage, and a private garden. A
Property Oracle says ..
This maisonette is located in Manor Park, Newham, a diverse area in East London. The property itself is a 3-bedroom, 2-bathroom maisonette. While the provided square footage is missing, the plot size is a significant 1,049 sqft, offering a considerable garden space. The listing price is £350,000, which is slightly below the average price of £396,930 for the area. Nearby properties on Warrior Square show a range of prices, suggesting some variation in value within the street. The presence of several schools within a short distance, including those rated as “Outstanding” or “Good” by Ofsted, is a positive aspect for families. Transport links to Ilford, Manor Park, and other areas are also relatively close. The condition of the property appears to be generally good, although some minor updates or cosmetic improvements might enhance its appeal. The garden appears to be a key feature, offering additional space and potential for outdoor living. Overall, the property presents a reasonable value proposition considering its location, features, and the current market conditions in the area.
Therefore, we give this property 7 / 10. *Disclaimer: This is our option and does constitute a recommendation or financial advice. Do your own research. *
- Price
- 7
- Condition
- 7
- Location
- 7
- Land
- 8
- Bedrooms
- 3
- Bathrooms
- 2
- Lot (est)
- 1,049.00
The heatmap indicates the level of crime in the area. The color of the heatmap indicates the crime severity and recency.
Metrics Year-on-Year
- Average area value
- 382,857.00 £Decreased by 8.39 %
- Average area rental value
- 1,800.00 £/moDecreased by 4.41 %
- Est rental Yield
- 5.64 %Increased by 4.25 %
- Crime Rate
- 10.00 %Unchanged by 0.00 %
Agent Activity
Stonebridge Estates created the listing.
Nearby Schools
| Name | Type | Ofsted | Distance |
|---|---|---|---|
| Sheringham Nursery School & Children'S Centre | Local Authority Nursery School | Outstanding | 0.28 KM |
| Sheringham Primary School | Academy Converter | 0.36 KM | |
| Manor Park Community Children'S Centre | Children's Centre | 0.36 KM | |
| Dersingham Primary School | Community School | Good | 0.37 KM |
| Sir John Heron Primary School | Community School | Good | 0.87 KM |
Images
Nearby Streets
| Name | Average Price | Average Sqft | Distance |
|---|---|---|---|
| Warrior Square | £ 312,000 | 0 | 0.00 KM |
| Jack Cornwell Street | £ 253,143 | 0 | 0.00 KM |
| Church Road | £ 272,500 | 0 | 0.00 KM |
| Gloucester Road | £ 0 | 0 | 0.00 KM |
| Chapel Road | £ 0 | 0 | 0.00 KM |
Nearby Transport
| Name | NLC | TLC | Distance |
|---|---|---|---|
| Ilford | 6881 | IFD | 0.97 KM |
| Manor Park | 6883 | MNP | 1.82 KM |
| Woodgrange Park | 7467 | WGR | 2.09 KM |
| Barking | 7492 | BKG | 2.57 KM |
| Seven Kings | 6893 | SVK | 3.97 KM |
Nearby Listings
| Address | Price | Type | Score | Distance |
|---|---|---|---|---|
| Warrior Square, Manor Park, E12 | £ 350,000 | BUY | 7 / 10 | 0.00 KM |
| Grantham Road, London, E12 | £ 300,000 | BUY | 6 / 10 | 0.09 KM |
| Grantham Road, Manor Park, E12 | £ 280,000 | BUY | 5 / 10 | 0.10 KM |
| Grantham Road, Manor Park, London, E12 | £ 250,000 | BUY | 7 / 10 | 0.11 KM |
| Walton Road, LONDON, London, E12 | £ 300,000 | BUY | Unknown | 0.18 KM |
Nearby Properties
| Address | Price | Distance |
|---|---|---|
| 167 Warrior Square | £ 54,995 | 0.01 KM |
| 85 Warrior Square | £ 147,500 | 0.01 KM |
| 117 Warrior Square | £ 149,000 | 0.01 KM |
| 175 Warrior Square | £ 155,000 | 0.01 KM |
| 159 Warrior Square | £ 156,000 | 0.01 KM |