Butters John Bee says ..
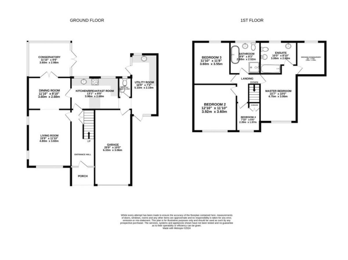
This characteristic 4/5 bedroom detached character home offers a large amount of versatile and multigenerational living. Located in the popular village of Shavington
Property Oracle says ..
Therefore, we give this property 7 / 10. *Disclaimer: This is our option and does constitute a recommendation or financial advice. Do your own research. *
- Price
- 7
- Condition
- 8
- Location
- 8
- Land
- 7
- Bedrooms
- 4
- Bathrooms
- 1
- Sqft (est)
- 1,509.85
The heatmap indicates the level of crime in the area. The color of the heatmap indicates the crime severity and recency.
Metrics Year-on-Year
- Average area value
- 251,044.00 £Decreased by 14.29 %
- Est sale value
- 363,873.85 £Increased by 33.89 %
- Average area rental value
- 1,013.00 £/moIncreased by 4.54 %
- Est letting value
- 0.00 £/mo
- Est rental Yield
- 4.84 %Increased by 21.91 %
- Crime Rate
- 47.00 %Unchanged by 0.00 %
from 292,911.00 £
from 271,773.00 £
from 969.00 £/mo
from 0.00 £/mo
from 3.97 %
from 47.00 %
Agent Activity
Butters John Bee created the listing.
Nearby Schools
| Name | Type | Ofsted | Distance |
|---|---|---|---|
| Shavington Primary School | Academy Converter | Good | 0.37 KM |
| Shavington Academy | Academy Converter | Good | 1.00 KM |
| The Berkeley Academy | Academy Converter | Good | 1.39 KM |
| The Brooks Children'S Centre | Children's Centre | 2.08 KM | |
| Pebble Brook Primary School | Foundation School | Good | 2.08 KM |
Images
Nearby Streets
| Name | Average Price | Average Sqft | Distance |
|---|---|---|---|
| Lime Grove | £ 0 | 0 | 0.00 KM |
| Delves Close | £ 0 | 0 | 0.00 KM |
| Highclere Way | £ 0 | 0 | 0.00 KM |
| Enfield Close | £ 200,000 | 0 | 0.00 KM |
| Nursery Close | £ 230,000 | 0 | 0.00 KM |
Nearby Transport
| Name | NLC | TLC | Distance |
|---|---|---|---|
| Crewe | 1243 | CRE | 3.39 KM |
| Nantwich | 1247 | NAN | 7.68 KM |
Nearby Listings
| Address | Price | Type | Score | Distance |
|---|---|---|---|---|
| Osborne Grove, Crewe | £ 375,000 | BUY | 7 / 10 | 0.00 KM |
| Osborne Grove, Shavington, Crewe, Cheshire, CW2 | £ 150,000 | BUY | 6 / 10 | 0.04 KM |
| Osborne Grove, Shavington, Cheshire | £ 177,950 | BUY | 7 / 10 | 0.05 KM |
| Osborne Grove, Shavington, Crewe | £ 155,000 | BUY | 7 / 10 | 0.06 KM |
| Osborne Grove, Shavington, Crewe, Cheshire, CW2 | £ 300,000 | BUY | Unknown | 0.06 KM |
Nearby Properties
| Address | Price | Distance |
|---|---|---|
| 10 Osborne Grove | £ 132,500 | 0.04 KM |
| 7 Osborne Grove | £ 99,950 | 0.04 KM |
| 45 Osborne Grove | £ 258,500 | 0.04 KM |
| 12 Osborne Grove | £ 97,000 | 0.04 KM |
| 4 Osborne Grove | £ 140,000 | 0.08 KM |