Rash & Rash says ..
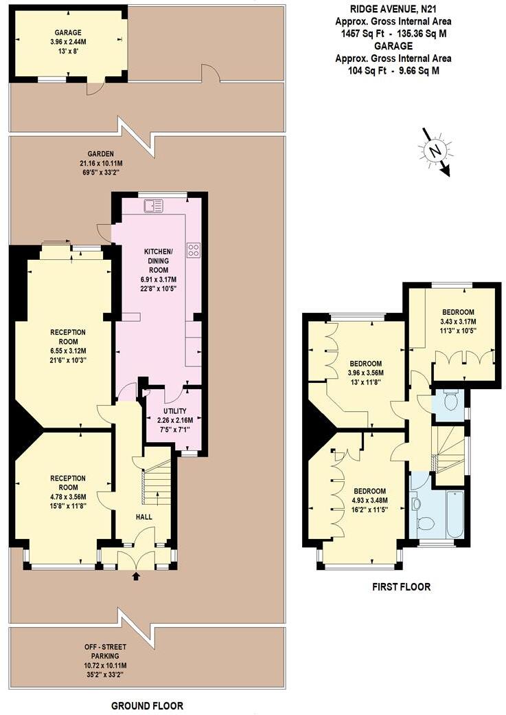
** Chain Free ** A wonderful opportunity to make this spacious three bedroom semi-detached house your own with 1,457 sq. ft. of generous living space offering plenty of room for family life and entertaining. This corner plot is full of charm and has the potential to extend further to the side, re...
Property Oracle says ..
This is a 3-bedroom semi-detached house in London. The property is in a good location, with good access to schools and transportation. The property is in need of some renovation, but it has a good-sized garden. The property is listed for sale at £700,000, which is in line with the average price for similar properties in the area.
Therefore, we give this property 6 / 10. *Disclaimer: This is our option and does constitute a recommendation or financial advice. Do your own research. *
- Price
- 6
- Condition
- 4
- Location
- 7
- Land
- 7
- Bedrooms
- 3
- Bathrooms
- 1
The heatmap indicates the level of crime in the area. The color of the heatmap indicates the crime severity and recency.
Metrics Year-on-Year
- Average area value
- 681,429.00 £Increased by 14.18 %
- Average area rental value
- 1,986.00 £/moDecreased by 15.60 %
- Est rental Yield
- 3.50 %Decreased by 26.00 %
- Crime Rate
- 6.00 %Unchanged by 0.00 %
Agent Activity
Rash & Rash created the listing.
Nearby Schools
| Name | Type | Ofsted | Distance |
|---|---|---|---|
| Winchmore School | Community School | Good | 0.98 KM |
| Highfield Primary School | Community School | Outstanding | 0.99 KM |
| Edmonton County School | Academy Converter | Good | 1.06 KM |
| Grange Park Preparatory School | Other Independent School | 1.07 KM | |
| St Paul'S Cofe Primary School | Voluntary Aided School | Outstanding | 1.34 KM |
Images
Nearby Streets
| Name | Average Price | Average Sqft | Distance |
|---|---|---|---|
| Kent Road | £ 825,000 | 0 | 0.00 KM |
| Clarendon Way | £ 950,000 | 0 | 0.00 KM |
| New River Path | £ 0 | 0 | 0.00 KM |
| York Road | £ 799,995 | 0 | 0.00 KM |
| Crossways | £ 765,000 | 0 | 0.00 KM |
Nearby Transport
| Name | NLC | TLC | Distance |
|---|---|---|---|
| Grange Park | 6029 | GPK | 1.35 KM |
| Winchmore Hill | 6024 | WIH | 1.52 KM |
| Enfield Chase | 6010 | ENC | 1.99 KM |
| Enfield Town | 6959 | ENF | 2.02 KM |
| Bush Hill Park | 6913 | BHK | 2.10 KM |
Nearby Listings
| Address | Price | Type | Score | Distance |
|---|---|---|---|---|
| Ridge Avenue, London, N21 | £ 700,000 | BUY | 6 / 10 | 0.00 KM |
| Ridge Avenue, Winchmore Hill | £ 750,000 | BUY | Unknown | 0.00 KM |
| Percy Road, London | £ 825,000 | BUY | 8 / 10 | 0.04 KM |
| Ridge Avenue, London, N21 | £ 700,000 | BUY | 6 / 10 | 0.06 KM |
| Ridge Avenue, Winchmore Hill | £ 675,000 | BUY | 7 / 10 | 0.09 KM |
Nearby Properties
| Address | Price | Distance |
|---|---|---|
| 31 Ridge Avenue | £ 390,000 | 0.09 KM |
| 39 Ridge Avenue | £ 635,000 | 0.09 KM |
| 29 Ridge Avenue | £ 430,000 | 0.09 KM |
| 3 Colne Road | £ 550,000 | 0.12 KM |
| 15 Colne Road | £ 550,000 | 0.12 KM |