Lime Tree House, Hook, Hampshire, RG27
By So Resi
£ 82,500
Reviews
3 out of 5 stars
So Resi says ..
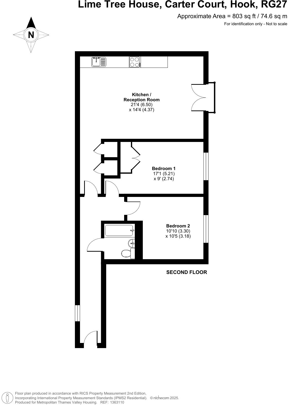
This bright, modern two-bedroom apartment is now available in Hook through Shared Ownership. The property on the second floor comprises an entrance hall, a spacious living room with an open-plan kitchen, two good-sized bedrooms, and a bathroom. Outside, there is allocated p...
Property Oracle says ..
This is a two-bedroom flat in Hook, Hampshire. The property is in good condition and benefits from a modern kitchen and bathroom. The location is desirable, with good schools and transport links. The flat is 803 sqft, which is a good size for a two-bedroom property. The list price of £82,500 reflects the shared ownership scheme.
Therefore, we give this property 6 / 10. *Disclaimer: This is our option and does constitute a recommendation or financial advice. Do your own research. *
- Price
- 8
- Condition
- 7
- Location
- 7
- Land
- 3
- Bedrooms
- 2
- Bathrooms
- 0
- Sqft (est)
- 803.00
The heatmap indicates the level of crime in the area. The color of the heatmap indicates the crime severity and recency.
Metrics Year-on-Year
- Average area value
- 309,833.00 £Decreased by 41.90 %
- Est sale value
- 391,061.00 £Increased by 35.28 %
- Average area rental value
- 1,358.00 £/moDecreased by 12.33 %
- Est letting value
- 1,606.00 £/moIncreased by 100.00 %
- Est rental Yield
- 5.26 %Increased by 50.72 %
- Crime Rate
- 3.00 %Unchanged by 0.00 %
Agent Activity
So Resi created the listing.
Nearby Schools
| Name | Type | Ofsted | Distance |
|---|---|---|---|
| Hook Junior School | Community School | Outstanding | 0.40 KM |
| Hook Infant School | Community School | Outstanding | 0.40 KM |
| Robert May'S School | Academy Converter | Good | 3.02 KM |
| Whitewater Church Of England Primary School | Voluntary Controlled School | Requires improvement | 3.41 KM |
| Wisteria Children'S Centre | Children's Centre Linked Site | 3.58 KM |
Images
Nearby Streets
| Name | Average Price | Average Sqft | Distance |
|---|---|---|---|
| St Johns Close | £ 0 | 0 | 0.00 KM |
| Durley Place | £ 0 | 0 | 0.00 KM |
| Beaulieu Place | £ 0 | 0 | 0.00 KM |
| The Orchard | £ 0 | 0 | 0.00 KM |
| A287 | £ 0 | 0 | 0.00 KM |
Nearby Transport
| Name | NLC | TLC | Distance |
|---|---|---|---|
| Hook | 5523 | HOK | 0.42 KM |
| Winchfield | 5528 | WNF | 5.65 KM |
Nearby Listings
| Address | Price | Type | Score | Distance |
|---|---|---|---|---|
| Lime Tree House, Hook, Hampshire, RG27 | £ 82,500 | BUY | 6 / 10 | 0.00 KM |
| Hewett Lane, Hook, Hampshire, RG27 | £ 650,000 | BUY | 8 / 10 | 0.02 KM |
| Benham Drive, Spencers Wood, Reading, Berkshire, RG7 | £ 210,000 | BUY | 6 / 10 | 0.02 KM |
| Bramshott Drive, Hook, Hampshire, RG27 | £ 550,000 | BUY | 7 / 10 | 0.14 KM |
| Compton Close, Hook, Hampshire, RG27 | £ 300,000 | BUY | 7 / 10 | 0.25 KM |
Nearby Properties
| Address | Price | Distance |
|---|---|---|
| 44 Bramshott Drive | £ 535,000 | 0.12 KM |
| 23 Bramshott Drive | £ 375,000 | 0.12 KM |
| 7 Bramshott Drive | £ 425,000 | 0.12 KM |
| 2 Bramshott Drive | £ 380,000 | 0.12 KM |
| 35 Bramshott Drive | £ 218,000 | 0.12 KM |