5 Willow Close, Ryall Grove, Upton upon Severn, Worcestershire, WR8
By John Goodwin FRICS
£ 475,000
Reviews
3 out of 5 stars
John Goodwin FRICS says ..
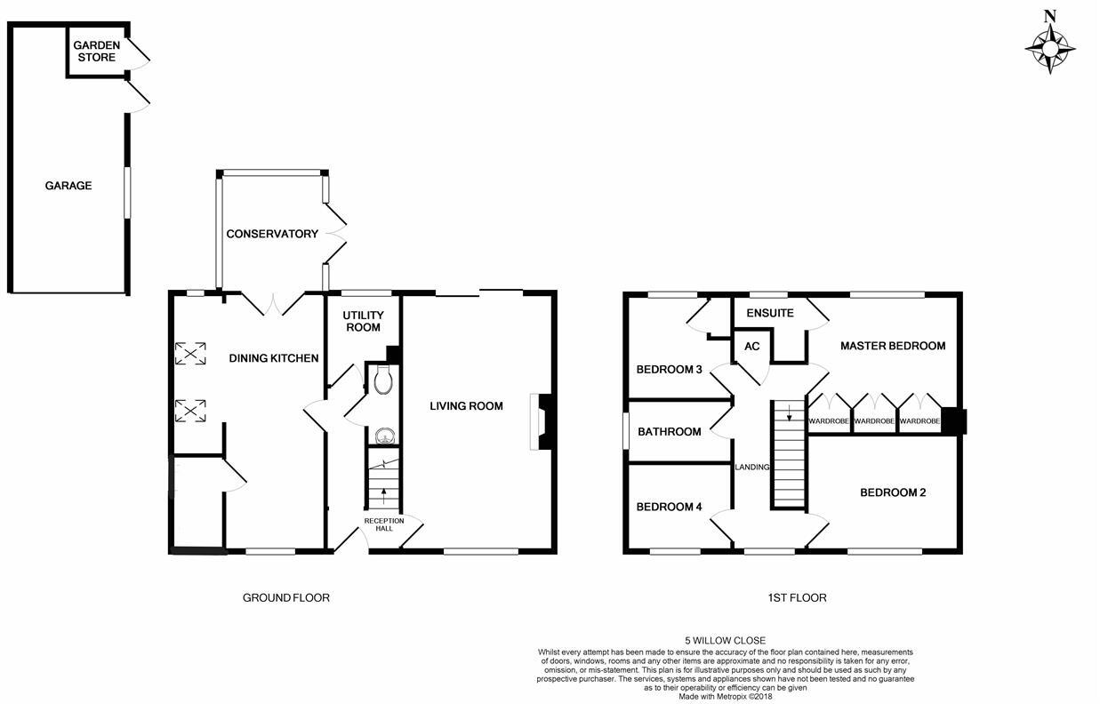
Extremely Well Appointed And Attractive Four Bedroom Detached Family Home. Located In A Desirable And Sought After Area At The End Of A Small Cul De Sac In The Hamlet Of Ryall Grove. Open Plan Living With A Kitchen/Dining Room Flowing Into The Conservatory. Spacious Dual Aspect Living Room With P...
Property Oracle says ..
Therefore, we give this property 7 / 10. *Disclaimer: This is our option and does constitute a recommendation or financial advice. Do your own research. *
- Price
- 8
- Condition
- 7
- Location
- 7
- Land
- 7
- Bedrooms
- 4
- Bathrooms
- 2
- Sqft (est)
- 1,908.00
The heatmap indicates the level of crime in the area. The color of the heatmap indicates the crime severity and recency.
Metrics Year-on-Year
- Average area value
- 306,316.00 £Increased by 32.78 %
- Est sale value
- 667,800.00 £Increased by 28.21 %
- Average area rental value
- 1,226.00 £/moDecreased by 2.93 %
- Est letting value
- 1,908.00 £/moUnchanged by 0.00 %
- Est rental Yield
- 4.80 %Decreased by 26.94 %
- Crime Rate
- 90.00 %Unchanged by 0.00 %
from 230,688.00 £
from 520,884.00 £
from 1,263.00 £/mo
from 1,908.00 £/mo
from 6.57 %
from 90.00 %
Agent Activity
John Goodwin FRICS created the listing.
Nearby Schools
| Name | Type | Ofsted | Distance |
|---|---|---|---|
| Riverboats Children'S Centre | Children's Centre | 2.35 KM | |
| Upton-Upon-Severn Cofe Primary And Pre School | Voluntary Controlled School | Good | 2.48 KM |
| Bredon School | Other Independent School | 4.66 KM | |
| Hanley Castle High School | Academy Converter | Good | 4.75 KM |
| Twyning School | Community School | Good | 6.52 KM |
Images
Nearby Streets
| Name | Average Price | Average Sqft | Distance |
|---|---|---|---|
| Blue Bell Close | £ 0 | 0 | 0.00 KM |
| Orchard Close | £ 0 | 0 | 0.00 KM |
| Copperfields | £ 0 | 0 | 0.00 KM |
| A4104 | £ 0 | 0 | 0.00 KM |
| Green Lane | £ 0 | 0 | 0.00 KM |
Nearby Listings
| Address | Price | Type | Score | Distance |
|---|---|---|---|---|
| 5 Willow Close, Ryall Grove, Upton upon Severn, Worcestershire, WR8 | £ 475,000 | BUY | 7 / 10 | 0.00 KM |
| The Crescent, Grove Crescent, Ryall, Upton Upon Severn, Worcestershire, WR8 | £ 750,000 | BUY | 7 / 10 | 0.10 KM |
| 3 Grove Cottage, Grove Crescent, Ryall, Upton Upon Severn, Worcestershire | £ 525,000 | BUY | 7 / 10 | 0.10 KM |
| Orchard Close, Upton Upon Severn, Worcestershire, WR8 0QH | £ 460,000 | BUY | 6 / 10 | 0.55 KM |
| Pershore Road, Earls Croome, Worcester | £ 600,000 | BUY | Unknown | 0.55 KM |
Nearby Properties
| Address | Price | Distance |
|---|---|---|
| 4 Willow Close | £ 390,000 | 0.01 KM |
| 5 Willow Close | £ 305,000 | 0.01 KM |
| 8 Willow Close | £ 250,000 | 0.01 KM |
| 3 Willow Close | £ 455,000 | 0.01 KM |
| The Crescent | £ 185,000 | 0.10 KM |