Providence Park, Princess Elizabeth Way
By Martin & Co
£ 154,500
Reviews
2 out of 5 stars
Martin & Co says ..
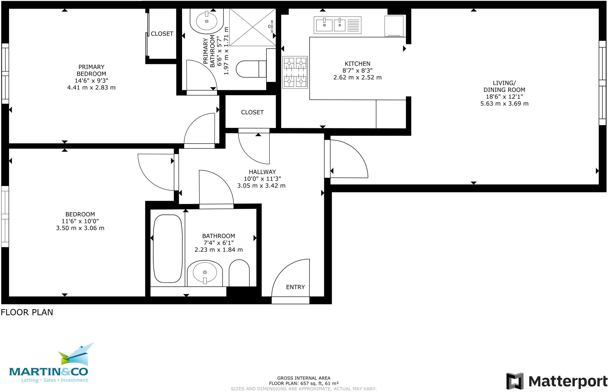
VIEW OUR 3D VIRTUAL TOUR: A third floor modern two bedroom apartment with garage, ensuite shower room and family bathroom, offered to the market with no onward chain.
Property Oracle says ..
This two-bedroom, two-bathroom apartment in Cheltenham’s Providence Park development presents a potentially attractive proposition for first-time buyers or investors. The property boasts a convenient location, with relatively easy access to Cheltenham Spa train station and several schools. The interior is clean and well-maintained, although the finishes appear somewhat dated and could benefit from modernisation. The property includes a garage, a definite plus. However, the lack of outdoor space, typical of apartment living, may be a drawback for some buyers. The apartment’s price seems to fall within the range of comparable properties in the area, making it reasonably priced, though further analysis of local average price per sqft would be needed to more fully confirm this. Overall, the property represents a sound investment with minor improvements adding considerable value.
Therefore, we give this property 5 / 10. *Disclaimer: This is our option and does constitute a recommendation or financial advice. Do your own research. *
- Price
- 7
- Condition
- 6
- Location
- 7
- Land
- 1
- Bedrooms
- 2
- Bathrooms
- 2
- Sqft (est)
- 656.60
The heatmap indicates the level of crime in the area. The color of the heatmap indicates the crime severity and recency.
Metrics Year-on-Year
- Average area value
- 489,766.00 £Increased by 6.36 %
- Est sale value
- 455,023.80 £Increased by 54.34 %
- Average area rental value
- 2,264.00 £/moIncreased by 11.14 %
- Est letting value
- 1,969.80 £/moIncreased by 200.00 %
- Est rental Yield
- 5.55 %Increased by 4.52 %
- Crime Rate
- 5.00 %Unchanged by 0.00 %
Agent Activity
Martin & Co marked this listing as sold.
Martin & Co created the listing.
Nearby Schools
| Name | Type | Ofsted | Distance |
|---|---|---|---|
| Rowanfield Children'S Centre | Children's Centre | 0.59 KM | |
| Rowanfield Infant School | Academy Converter | 0.64 KM | |
| Rowanfield Junior School | Academy Converter | Good | 0.76 KM |
| All Saints' Academy, Cheltenham | Academy Sponsor Led | Good | 0.93 KM |
| Cheltenham And Tewkesbury Alternative Provision School | Pupil Referral Unit | Good | 1.03 KM |
Images
Nearby Streets
| Name | Average Price | Average Sqft | Distance |
|---|---|---|---|
| O'Brien Road | £ 250,000 | 0 | 0.00 KM |
| Brook Road | £ 205,000 | 0 | 0.00 KM |
| Bedford Avenue | £ 263,333 | 0 | 0.00 KM |
| Brooklyn Road | £ 426,889 | 0 | 0.00 KM |
| Russet Road | £ 270,000 | 0 | 0.00 KM |
Nearby Transport
| Name | NLC | TLC | Distance |
|---|---|---|---|
| Cheltenham Spa | 4731 | CNM | 1.58 KM |
| Ashchurch For Tewkesbury | 4700 | ASC | 9.76 KM |
Nearby Listings
| Address | Price | Type | Score | Distance |
|---|---|---|---|---|
| Providence Park, Princess Elizabeth Way | £ 154,500 | BUY | 5 / 10 | 0.00 KM |
| Providence Park, Princess Elizabeth Way | £ 220,000 | BUY | 7 / 10 | 0.01 KM |
| Princess Elizabeth Way, Cheltenham, GL51 | £ 160,000 | BUY | 6 / 10 | 0.03 KM |
| Providence Park, Princess Elizabeth Way, Cheltenham | £ 155,000 | BUY | 7 / 10 | 0.03 KM |
| Providence Park, Princess Elizabeth Way, Cheltenham, Gloucestershire, GL51 | £ 72,500 | BUY | 6 / 10 | 0.03 KM |
Nearby Properties
| Address | Price | Distance |
|---|---|---|
| 234 Arle Road | £ 62,495 | 0.12 KM |
| 236 Arle Road | £ 75,000 | 0.12 KM |
| 238 Arle Road | £ 175,000 | 0.12 KM |
| 240 Arle Road | £ 175,000 | 0.12 KM |
| 230 Arle Road | £ 215,000 | 0.12 KM |